EasyManua.ls Logo

Panasonic TH-42PA60A

Panasonic TH-42PA60A
162 pages
To Next Page IconTo Next Page
To Next Page IconTo Next Page
To Previous Page IconTo Previous Page
To Previous Page IconTo Previous Page
Loading...
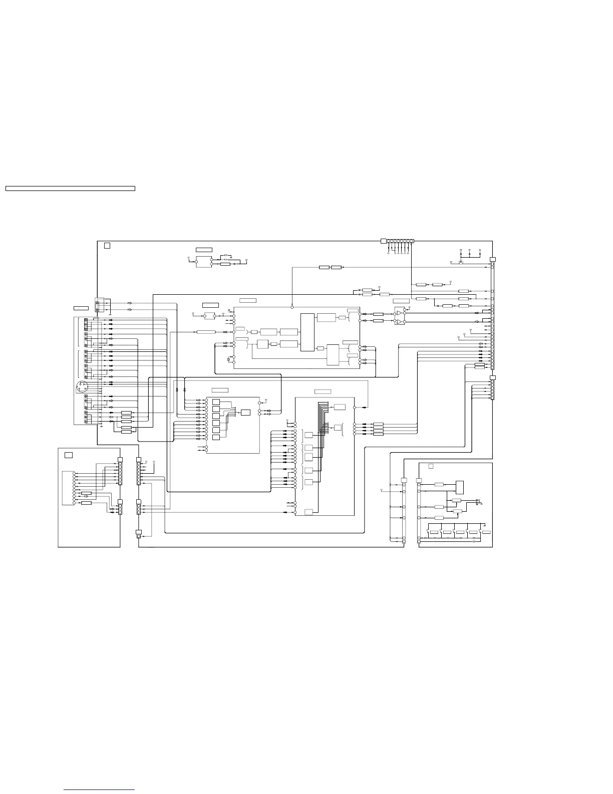
14.20. H, K and TA-Board Block Diagram
PR
PB
Y
PR
AV2
V
L
C
R
R
L
Y
R
L
V
AV3
R
V
V
AV1
L
MONITOR OUT
PB
Y
G
R
AV1_ R
AV1_YSW
AV2C_PR
AV2_ R
AV4_V
AV1_ L
AV2C_Y
AV2C_PB
AV2C_YSW
AV4_L
AV2_L
AV4C_YSW
AV1_V
AV1_C
AV4_R
AV4C_PR
AV4C_PB
AV4C_Y
AV2_V
AV1_Y
RIN
LIN
AV3C-YSW
MAIN_R
AV3C_PR
TV_R
AV2_L
AV3C_PB
RIN
HDMI_L
HDMI_R
MAIN_R
AV2_ R
TV_L
AV1_ L
AV2C_PB
AV3_ R
AV2C_PR
AV2C_YSW
AV2_V
R_OUT
AV1_YSW
L_OUT
AV3_L
MAIN_L
R_OUT
AV1_C
AV1_ R
L_OUT
AV1_Y
LIN
MAIN_L
AV1_V
TV_R
TV_L
RMCN
KEY1
HDMI_SR
STBY_LED
HDMI_SL
G_LED
KEY_EDGE
M_SW2
M_SW1
M_SW2
AFC1
M_SW1
MAIN_Y
MAIN_CVBS
MAIN_PR
MAIN_PB
MAIN_PR
MAIN_Y
MAIN_CVBS
MAIN_PB
AFT1
AV3_V
AV3C_Y
AV2C_Y
G_LED
KEY1
KEY_EDGE
RMIN
STBY_LED
JK3100
Y-S W
Y
G
PB
PR
V
L
R-SW
R
G
Y-S W
Y
G
PB
PR
V
L
R-SW
R
G
C
Y
G
Y-G
C-G
G
V
L
R-SW
R
G
V
L
R
G
D3022
SUB5V_MSP
SUB5V
BT30V
SUB8V
D3021
Q3008
D3023
BT30V SUB5V
SUB5V
SUB9V
SUB9V
D2530
SUB9V
MAIN_SW2
RFAGC1
SIF
SDA0B
TV_V1
AFT1
SCL0B
BT30V
MAIN_SW1
SUB5V
1
TA5
8
9
11
13
14
15
2
TA6
6
8
S-DATA
MAIN TUNER
AFAGC
5
17
8
12
AFT
14
SIF
TU001
VIDEO
TA
SW1
TUNER
11
6
SW2
10
S-CLOCK
3
BM
15
BTL
Q002
Q003
AV TERMINAL
H
AUDIO VIDEO SWICTHING MSP
PC_L
PC_R
JK2003
Q2103
Q2102
AUDIO IN
Q3002
Q2001
Q2002
H6
6
8
9
1
14
H5
15
11
2
8
13
STB 5V
5
MAIN 3.3V
SUB 9V
TO PA30
1373
SUB 9V
SUB 5V
11
SUB 3.3V
MAIN 9V
STB 5V
SUB 3.3V
159
MAIN 3.3V
SUB 5V
A_MUTE
MAIN 9V
SUB 5V
1
H40
9
R5
OUT
48
IN
HDMI
SDA
SCL
IN
56
IC3005
35
9
SELECT
36
DAC
C/PBOUT1
SC1IL
IC2105
MAIN
AUDIO SW
10
PROCESSING
SDA0B
25
SCL0B
24
+
ANA IN+
-
IN
22
SC2OR
VOUT5
PB2
33
IN
42
AV1
L4
34
SC2OL
R4
-
VIDEO SW
PR2
5
CY2
3
Q2105
SOURCE
53
1
56
Q3015
Q2104
LOUDSPEAKER
DACM R
Q3014
V4
V1
7
Y1
Q3011
+
Q3017
3
DAC
57
54
R
C1
IN
L
Q2106,Q2108
SIF TRAP
55
ADC
S-1
TV OUT
37
SUB9V
AVR 8V
VAO
13
19
IC2103
CY1
SELECT
IN
16
OUT
MAIN IN
17
SUB8V
SC1OL
36
14
21
15
RESETQ
IC2106
1
SC1OR
DACM L
2
AUDIO OUT
PR1
SELECT
PB1
3
SP OUT
4
20
17
28
32
SC1IR
33
ADC
SOUND
L8
DE-
MODULATOR
R8
S-2
60
L7
2
R7
27
TV(M)
L1
XIN
R1
72
PRE-
PROCESSING
L2
67
AV2 C
R2
XOUT
IN
71
3
INPUT
X2101
SDA0B
V7
14
IC2104
TV IN
AUDIO
OUTPUT
IN
V2
TV
58
IN
V/YOUT1
AV1
AV3
SCL0B
IN
IN
MSP
SDA
AV2
AV2
PRESCALE
50
IN
AV3 C
PDD1
AV3
SCL
IN
PROUT1
11
MAIN
OUT
10
ROUT2
L5
LOUT2
49
SUB 3.3V
SDA0B
14
9
SOS
SCL0B
KEY_EDGE
SDA0B
MSP_RESET
TO DG1
4
52
STB 3.3V
SCL0B
HDMI_SL
20
8
3
65
66
MAIN Y/CVBS
G_LED
76
KEY1
SR
8
SR
TO DG2
7
12
H2
54
STB 3.3V
18
7
STBY_LED
MAIN PR
1
SL
13
MAIN PB
RMCN
16
6
80
H1
HDMI_SR
AFC1
SUB 3.3V
SL
73
49
+8V
MAIN_CVBS
68
69
MAIN_SW1
MAIN_SW2
STB 5V
78
STB 5V
Q2113Q2114
SHORT SOS DET
AGC1
1
FOR
USE
FACTORY
H15
SCL0B
SDA0B
Q5614
EXT
SUB 9V
AVR BT30V
1
BT30V
VDD
IC5603
5
2
VOUT
Q3204
Q3205
+5V
MUTE CCT
Q2301
AUDIO MUTE
Q2302Q2314
Q2315
77
RESET
Q2316
Q2300
74
SP MUTE
STB 5V
75
MUTE CCT
V DET
MUTE SW
Q2317
Q2012Q2011
Q2013
STB5V
H53
STB 3.3V
2
4
Y4
Y2
59
5
VCC
VCC
8
ON/OFF
K1
12
Q2520
RM2510
Q2511
8
GON/OFF
REMOTE RECEIVER
Q2510
REMOCON RECEIVER
/STBY_LED
K
VOUT
Q2513
RM_IN
KEY EDGE
1
2
STB3.3V
KEY1
Q2519
7
R_LED_ON
R
KEY SWITCH/LED
POWER LED
SW3752SW3755
F
SW3753SW3754
TV/AV
SW3751
(LED_G)
10
-
STR
+
VCC
ON_LED
7
VCC
VCC
SDA0B
35
SDA
39
SCL0B
36
SCL
10
1
12
8
7
38
MONITOR
VOUT4
OUT
TH-42PA60A/H/M/MT, TH-37PA60H/M
H, K and TA-Board Block Diagram
TH-42PA60A/H/M/MT, TH-37PA60H/M
H, K and TA-Board Block Diagram
TH-37PA60H / TH-37PA60M / TH-42PA60A / TH-42PA60H / TH-42PA60M / TH-42PA60MT
90

Table of Contents

Related product manuals