EasyManua.ls Logo

Panasonic TH-42PA60A

Panasonic TH-42PA60A
162 pages
To Next Page IconTo Next Page
To Next Page IconTo Next Page
To Previous Page IconTo Previous Page
To Previous Page IconTo Previous Page
Loading...
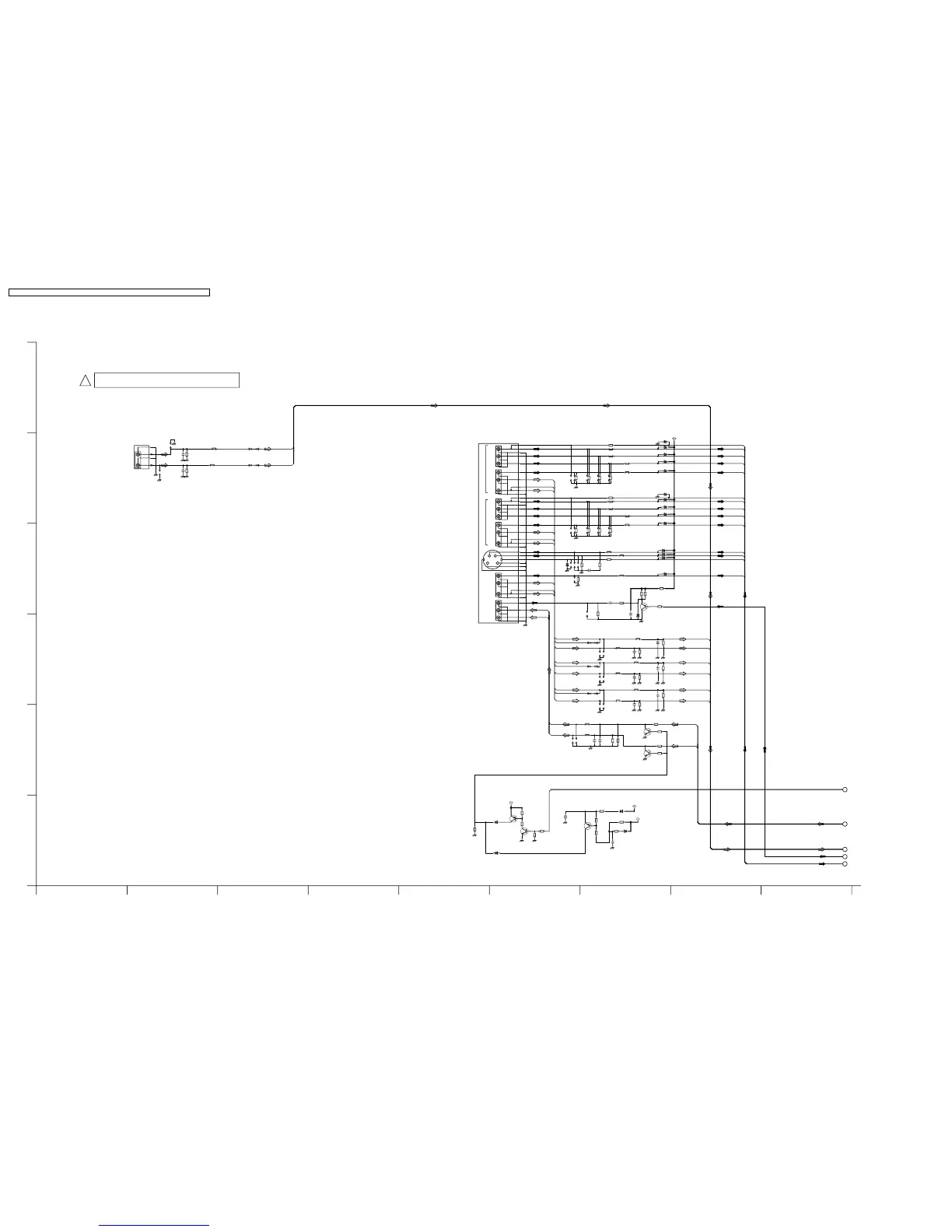
14.22. H-Board (1 of 3) Schematic Diagram
RED
WHITE
+
PR
PB
Y
PR
AV2
V
L
C
R
R
L
Y
R
L
V
AV4
R
V
V
AV1
L
MONITOR OUT
PB
Y
+
+
PC_RIN
AUDIO_MUTE
A_AV3_L
A_AV2_L
A_AV1_L
AV3_R
AV2C_Y
A_AV2_R
AV2C_YSW
A_AV1_RSW
AV3_L
AV3_V
AV1_R
A_LOUT
A_AV3_L
AV3C_PR
AV1_V
A_ROUT
A_AV3_R
AV3C_PB
AV3C_YSW
A_AV1_L
AV3C_Y
A_AV2_L
A_AV1_R
A_AV3_RSW
AV1_S
A_AV2_RSW
A_AV2_R
AV1_Y
AV2_V
AV1_L
A_LOUT
A_AV3_R
AV1_C
AV2_R
A_AV3_RSW
AV2C_PR
A_AV2_RSW
A_AV1_R
AV2_L
A_AV1_RSW
AV2C_PB
A_ROUT
AUDIOOUT_L
AUDIOOUT_R
PC_LIN
NET0011725
R2006
22k
D3043
MAZ81400ML
L2016
J0JCC0000100
JS2022
Q2002
B1ABDF000034
R2049
10k
C3060
16V
1u
R2042
1M
C2022
560p
50V
D3049
MAZ81400ML
SUB5V
JS3011
0
L2001
J0JCC0000364
R3408
360
Q3002
2SA207700L
1%
R3002
75
R2046
10k
Q2013
2SA207700L
C2010
50V
560p
D3017
MAZ81400ML
L2012
J0JCC0000100
L3001
J0JCC0000100
L2015
J0JCC0000100
L2008
J0JCC0000100
1%
R3012
75
JS3010
0
R2054
10k
D2011
MA2J11100L
C2005
50V
560p
R2012
100k
JS3014
0
C2014
50V
560p
JS2033
1%
R3001
75
Q2012
B1ABDF000034
D2014
MA2J11100L
1%
R3010
75
JK2003
K2HA204A0038
R2009
22k
JS3015
0
STB+5V
Q2001
B1ABDF000034
R2050
10k
D3042
MAZ81400ML
R2048
470
L2007
J0JCC0000100
L2004
J0JCC0000100
R3022
10k
D2012
MA2J11100L
D3048
MAZ81400ML
D2013
MA2J11100L
JS2021
D3100
MAZ81400ML
D3006
MAZ81400ML
R2043
47k
R2044
1k
1%
R3007
75
JS2032
L3003
J0JCC0000100
R2051
180k
L2003
J0JCC0000100
L2002
J0JCC0000364
STB+5V
1%
R3008
75
C2016
50V
560p
R2045
10k
C2006
50V
560p
R2014
2.2k
R3409
360
D3047
MAZ81400ML
R2015
330
C2021
560p
50V
R2016
330
R3039
220
R2005
100k
D3040
MAZ81400ML
1%
R3004
75
D3046
MAZ81400ML
R2007
22k
1%
R3020
22k
SUB9V_VIDEO
D3005
MAZ81400ML
JS3013
0
1%
R3005
75
C2013
50V
560p
D3003
MAZ81400ML
C2017
50V
560p
1%
R3027
75
L3013
J0JCC0000100
1%
R3003
75
D3041
MAZ81400ML
R2010
22k
L3002
J0JCC0000100
D3039
MAZ81400ML
C3005
50V
0.1u
JS3012
0
L3010
J0JCC0000100
D3045
MAZ81400ML
Q2011
2SA207700L
R3011
0
1%
R3006
75
R2011
22k
R2008
22k
R2013
2.2k
JS2031
C2019
16V
220u
R3021
10k
JK3100
TJB0A639
Y-S W
Y
G
PB
PR
V
L
R-SW
R
G
Y-S W
Y
G
PB
PR
V
L
R-SW
R
G
C
Y
G
Y-G
C-G
G
V
L
R-SW
R
G
V
L
R
G
C2020
50V
22u
C2011
50V
560p
D3038
MAZ81400ML
R3134
100k
L2011
J0JCC0000100
C3069
25V
470u
R2053
470
R2052
180k
1%
R3009
75
AUDIO IN
H-BOARD TNPA3760AC (1/3)
!
96873
A
D
E
F
5
B
421
C
4
1
3
5
2
TH-42PA60A/H/M/MT, TH-37PA60H/M H-Board (1 of 3) Schematic Diagram TH-42PA60A/H/M/MT, TH-37PA60H/M H-Board (1 of 3) Schematic Diagram
TH-37PA60H / TH-37PA60M / TH-42PA60A / TH-42PA60H / TH-42PA60M / TH-42PA60MT
92

Table of Contents

Related product manuals