EasyManua.ls Logo

Panasonic TH-42PV80M

Panasonic TH-42PV80M
126 pages
To Next Page IconTo Next Page
To Next Page IconTo Next Page
To Previous Page IconTo Previous Page
To Previous Page IconTo Previous Page
Loading...
19
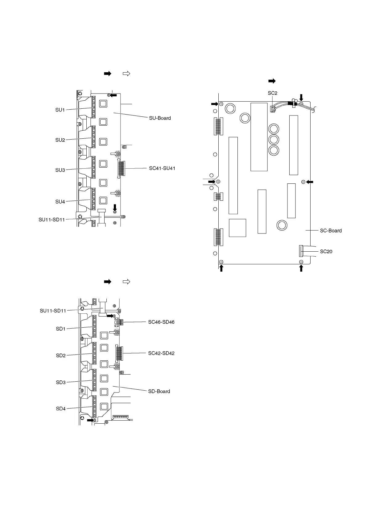
7.6. Remove the SU-Board
1. Remove the flexible cables (SU1, SU2, SU3 and SU4)
connected to the SU-Board.
2. Remove the flexible cable (SU11-SD11) and the bridge
connector (SC41-SU41).
3. Remove the screws (×2 , ×2 ) and remove the SU-
Board.
7.7. Remove the SD-Board
1. Remove the flexible cables (SD1, SD2, SD3 and SD4)
connected to the SD-Board.
2. Remove the flexible cable (SU11-SD11) and the bridge
connectors (SC42-SD42 and SC46-SD46).
3. Remove the screws (×2 , ×2 ) and remove the SD-
Board.
7.8. Remove the SC-Board
1. Remove the SU-Board and SD-Board. (See section 7.6.
and 7.7.)
2. Unlock the cable clampers to free the cable.
3. Disconnect the connector (SC2).
4. Disconnect the flexible cable (SC20).
5. Remove the screws (×6 ) and remove the SC-Board.

Table of Contents

Related product manuals