EasyManua.ls Logo

Panasonic TH-42PV80P

Panasonic TH-42PV80P
157 pages
To Next Page IconTo Next Page
To Next Page IconTo Next Page
To Previous Page IconTo Previous Page
To Previous Page IconTo Previous Page
Loading...
45
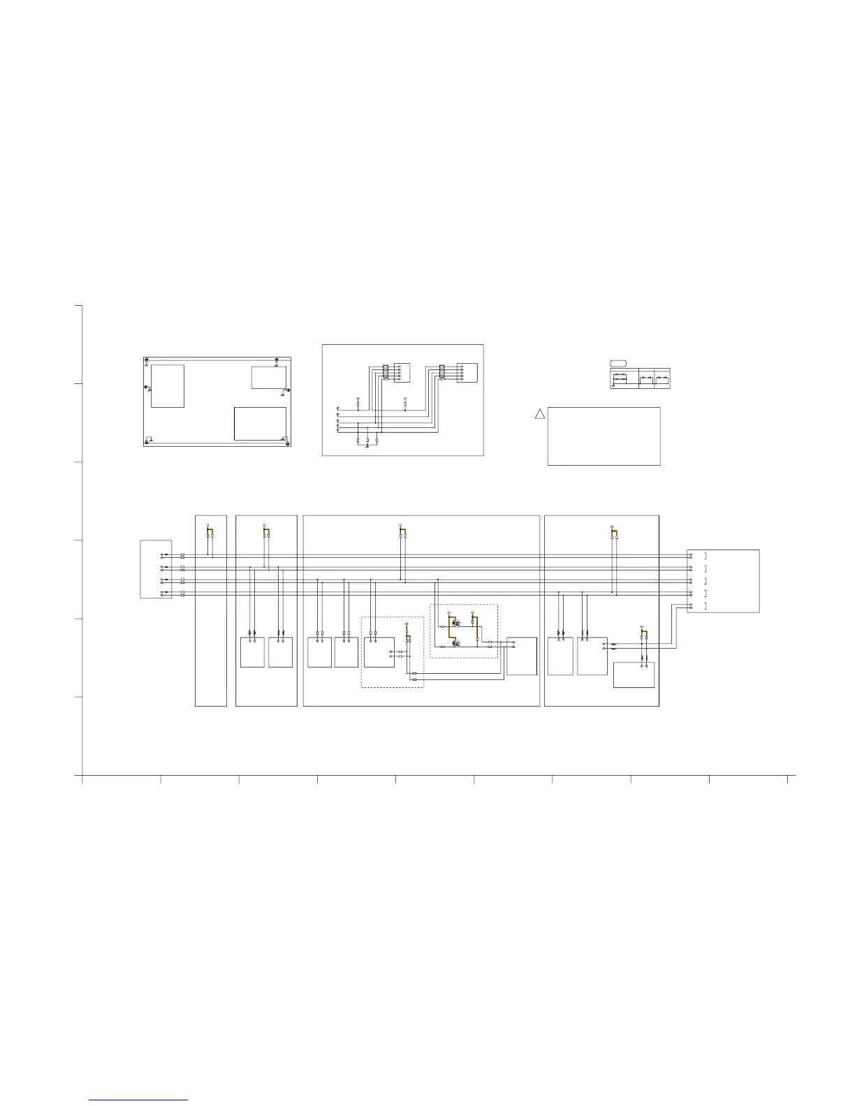
11.9. A-Board (1/19) Schematic Diagram
S
S
S
S
S
S
S
S
S
S
S
STB D3 3V SUB3 3V
SUB3 3V
STB3 3V
SUB5V
MAIN3 3V
P3 3V
SUB3 3V
R8601
R1205
R8602
R1183
R4820
R4657
R1206
R4658
R1174
R1184
R1175
R4819
ZA0001
K4AZ01D00004
ZA0004
K4AZ01D00004
ZA0003
K4AZ01D00004
ZA0008
K4AZ01D00004
ZA0002
K4AZ01D00004
ZA0007
K4AZ01D00004
TP0190
TP0193
TP0192
TP0194
TP0191
AD SCL3
AD SDA1
PD2M TDI
ADAV_SDA
SBT0
ADV_SDA
ADAV_SCL
FE_SCL
AV-SW_SCL
GENX EEP_SCL
L TE2 EEP_SCL
TDO
SDA0
AD SDA3
SDA
AA SDA0
AD SCL2
SCL
SBT2
XECS5
XECS3
AA SCL0
GENX_SDA0
FE_SDA
PD2M TDO
AD SDA2
TUNER SDA
SCL0
AD SCL1SCL1
PD2M TCK
GENX_SCL0
TRST
PD2M TMS
L TE2-EEP_SDA
GENX SCL1
TMS
FE OUT SCL
GENX SDA1
AV-SW_SDA
GENX-EEP_SDA
TCK
TUNER SCL
SDA1
PD2M TRST
TMP SENS_SCL
ADV_SCL
FE OUT SDA
TMP SENS_SDA
TDI
R005
EXB28V680JX
R002
EXB28V680JX
*JS1106
*JS1101
*R8311
22
*R8315
0
R8922
4 7k
*R8306
4 7k
R1200
4 7k
R8917
68
*R8310
22
R8916
68
*R8314
0
R8919
4 7k
R8923
3 3k
*R2169
0
*R8307
4 7k
R8926
4 7k
R8915
68
R007
10k
R004
68
R006
10k
R003
10k
R001
68
R009
10k
R008
10k
R8924
3 3k
R8914
68
R8921
4 7k
R8920
4 7k
R8911
68
R8912
68
R8925
4 7k
R8913
68
R8918
68
R1201
4 7k
R2000
22
R2001
22
R3130
22
R3131
22
*R2170
0
*R8359
0
*R2178
0
*R2146
0
*Q2029
B1CBHD000002
*R2149
6 8k
*R2177
0
*R2147
0
SUB3 3V
*R2148
6 8k
*Q2028
B1CBHD000002
*JS1119
SUB5V
JS1100
Location of Earth Rag
SUFFIX
P P
SUFFIX UPPER SUFFIX LOWER
B B/E
CI
Pin Jack
TDI
TMS
TDO
TCK
TRST
PD2M
JTAG
JTAG Connection
IIC Connection
ADV/TMP-SENS
TUI8301
IC2106
ADAV4622
Dig/Ana Tu.
16k
IC3001
TMP_SENSOR
IIC2 Line
SDA2
AV-SW
Ana Tu.
IIC3 Line
PeaksLite2p
ADV7495
GenX5 E2PROM LINE
LITE2p-EEP
IC4510
FE
IC8301
SCL3
GenX5
SDA3
IC1100
SCL2
Lite2p E2PROM LINE
IC8601
to IIC SW
8k
ADAV/AVSW/Tuner/FE etc.
GenX-EEP
IC8001
IIC0 Line IIC1 Line
IC4800
I2C
Tuner
C 42inch
B 37inch
P ONLY
B/E ONLY
TO 2/19
TO 14/19
PeaksLite2p
TO 2/19
TO 7/19
TO 9/19
TO 18/19 TO 11/19
TO 3/19
TO 18/19
TO 18/19 TO 6/19
TO 6/19
TO 9/19
8
F
5
A
B
E
9673
D
4
C
12
!
TZTNP01RSTD (37PX80E)
A-BOARD (1/19)
TZTNP01RSTE (37PV80P)
TZTNP01RSTB (37PX80B)
TZTNP01RRTB (42PX80B)
TZTNP01RRTE (42PV80P)
TZTNP01RRTD (42PX80E)
TH-37/42PV80P, PX80B/E
A-Board (1/19) Schematic Diagram
TH-37/42PV80P, PX80B/E
A-Board (1/19) Schematic Diagram

Table of Contents

Other manuals for Panasonic TH-42PV80P

Related product manuals