EasyManua.ls Logo

Panasonic TH-L42E6S - 10 Wiring Connection Diagram; Wire Dressing

Panasonic TH-L42E6S
70 pages
Print Icon
To Next Page IconTo Next Page
To Next Page IconTo Next Page
To Previous Page IconTo Previous Page
To Previous Page IconTo Previous Page
Loading...
TH-L42E6S
30
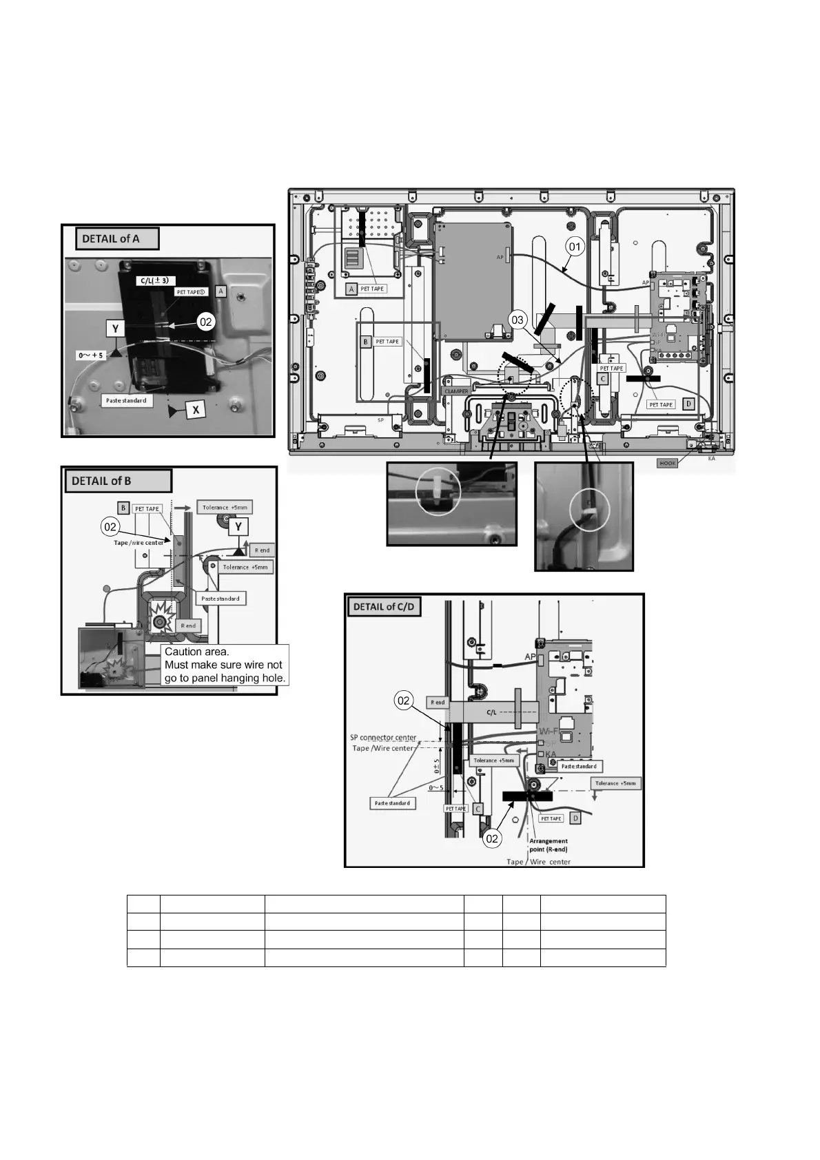
10 Wiring Connection Diagram
10.1. Wire Dressing
1. Install wire.
2. Install PET TAPE.
3. Install AL+PET TAPE.
No. Item Description QTY UOM Remarks
01 TXJA02SHUA A02-P2 1 PC
02 T4FP1505J PET TAPE 0.28 PC 70mm 4pcs
03 TXJA12SHUA A12-SP WF 1 PC

Table of Contents

Related product manuals