EasyManua.ls Logo

Panasonic WR-201E - Page 38

Panasonic WR-201E
41 pages
Print Icon
To Next Page IconTo Next Page
To Next Page IconTo Next Page
To Previous Page IconTo Previous Page
To Previous Page IconTo Previous Page
Loading...
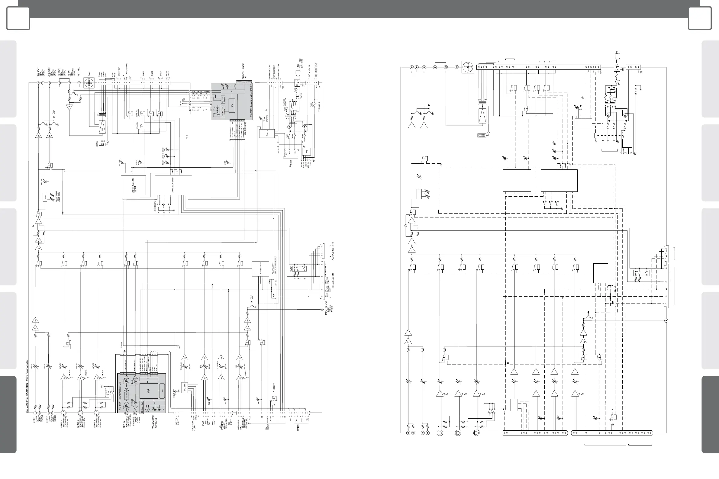
CONCEPTSYSTEM EXAMPLESCONNECTIONSPRODUCTSBLOCK DIAGRAMS
75
5
BLOCK DIAGRAMS
WA-MA120N/WA-MA240N
CONCEPT SYSTEM EXAMPLES CONNECTIONS PRODUCTS BLOCK DIAGRAMS
74
5
BLOCK DIAGRAMS
SYSTEM
P
0dBV
10kohm
UNBAL
LINE OUT
0dBV
10kohm
UNBAL
REC OUT
0dBV
10kohm
UNBAL
INS OUT
0dBV
100kohm
UNBAL
INS IN
INS THRU
K1(H)
K2(C)
SP100V
SP70V
SP4ohm
SP0V
DIRECT OUT
ATT OVERRIDE
ZONE 1
CALL IN
ZONE 1
ZONE 2
ZONE 3
FAN
OUT
IN A
IN B
H
C
H
H
H
C
H
C
ZONE SEL
C
C
OPERATE ON CONT
OPERATE OFF CONT
OPERATE LINK CONT
G
G
G
FUSE
POWER
FUSE
AC
110-120V/
220-240V
VOLTAGE
SELECTOR
PT
DC +24V IN
+
-
OPERATE
DC +24V OUT
+
-
FUSE
(REAR)
VCC24V(F)
FUSE
+VH
+VL
for
PA BLOCK
DC24V
OPERATE
CONT
FUSE
FUSE
EMG OPERATE ON CONT
VCC24V
+16V
VCC 18V
VCC 5V
Control
DC24V
Reg.
ZONE 1
ON
CALL
ZONE 2
ON
ZONE 3
ON
ZONE 1
METER
0
-8
-15
-20
-30
PA
OT
CALL SEL
ALL CALL
Power
Mute
MASTER
INV
CONTINPUT 1
CONT
CONT
ALL CALL BUS IN
0dBV
10kohm
UNBAL
INPUT D-OUT
ALL CALL BUS THRU
ZONE SEL SW
ZONE SEL Control
ZONE1 CALL SEL
Control
BASS
TREBLE
100Hz
+/-10dB
10kHz
+/-10dB
BA
BA
TONE
EMGTEL/RM SIGNAL
H
C
UNITS SET
(REAR)
1
2
10
Priority Control
ALL CALL CONT
INV
Power
Mute
(REAR)
CALL SIGN
EMG
(REAR)
TEL PAGING
(REAR)
RM
(REAR)
RM/MIC
BA
BA
BA
BA
EMG
TEL
RM
+16V
INPUT 1
-65dBV(MIC)/
-22dBV(LINE)
5kohm BAL
HA
HA
INPUT 2
Phantom SW
INPUT 3
INPUT 1
CONT
-65dBV(MIC)/
-22dBV(LINE)
5kohm BAL
-65dBV(MIC)/
-22dBV(LINE)
5kohm BAL
CALL SIGN
CALL SIGN
CONT
DOWN
TEL
CONT
EMG
CONT
EMG
0dBV
10kohm
BAL
TEL
PAGING
-22dBV
10kohm BAL
MIC/LINE
OFF
ON
D-OUT
MIC/LINE
HA
MIC/LINE
REMOTE
MIC
INPUT 3
INPUT 1
INPUT 2
2 TONE
-22dBV(RM)/
-65dBV(MIC)
10kohm BAL
HA
HA
HA
+
G
UP
G
+
G
+
G
H
C
G
H
C
G
BC
CALL
H
C
G
LINE 1
-22dBV
10kohm
UNBAL
(MONO)
LINE 2
-22dBV
10kohm
UNBAL
(MONO)
DC+24V
ALL CALL
Z1
Z2
Z3
MSG
EMG 1
EMG 2
CLK
ADJ.
RM
CONT
+
G
+
G
+
G
+
G
G
OPTION
VCC24V(F)
INV
LINE 1
LINE 2
1
2
3

Related product manuals