EasyManua.ls Logo

Parker ViX500AE - Supply Wiring; Appendix A

Parker ViX500AE
136 pages
Print Icon
To Next Page IconTo Next Page
To Next Page IconTo Next Page
To Previous Page IconTo Previous Page
To Previous Page IconTo Previous Page
Loading...
APPENDIX A
117
Appendix A
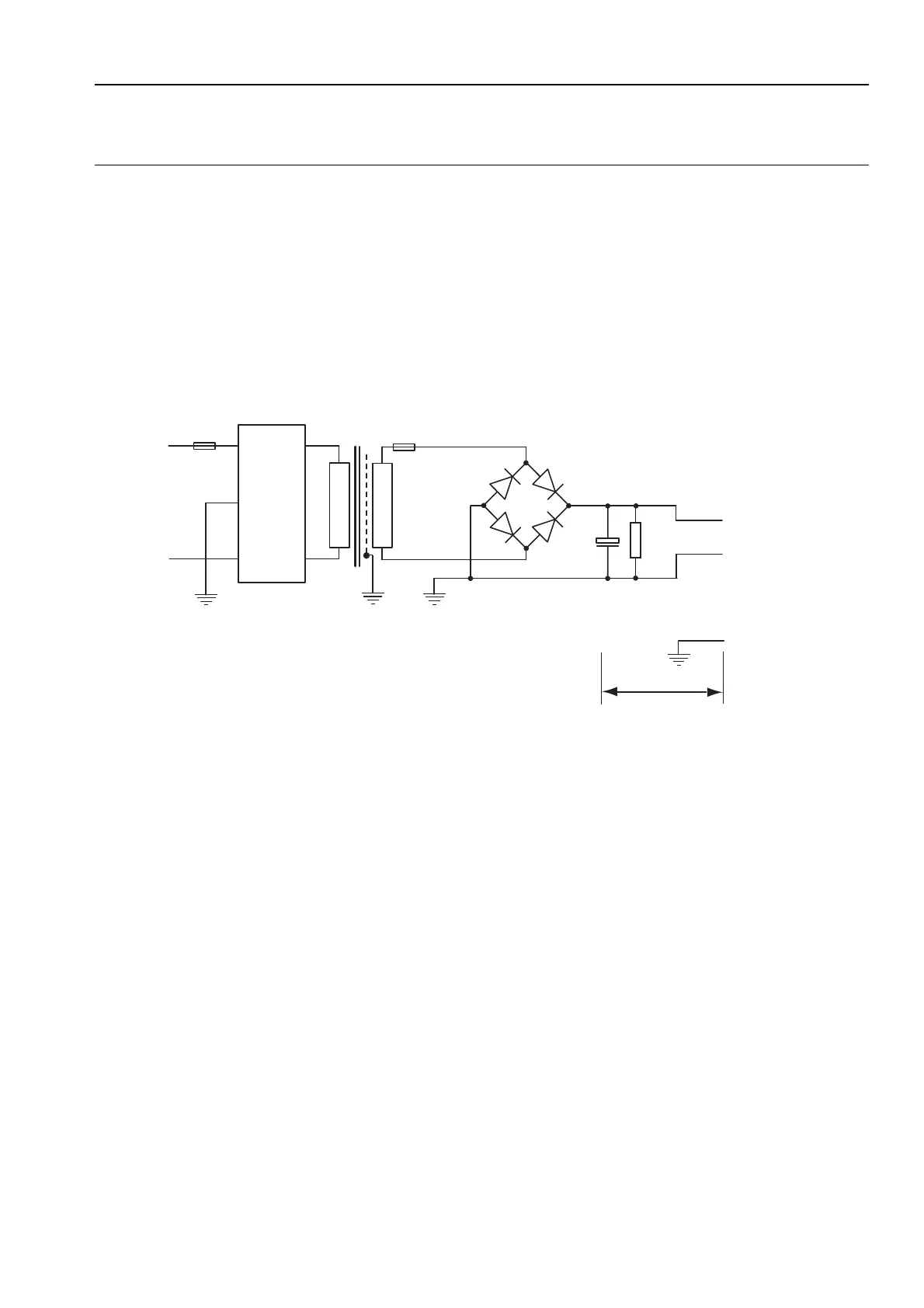
Discrete Power Supply Recommendations
If the XL_PSU is not being used individual ViX drives can be powered from
transformer/bridge rectifier power supplies of the type shown in Figure A-1. This design
suggests suitable component values for powering particular drive types, but can be adapted
to power more than one drive provided component power ratings are not exceeded.
X1.10
+
1metre max. from
capacitor to drive
Bridge rectifier
must have adequate cooling
6K8 2.5W HV bleed resistor
WARNING this will run hot
Capacitor 3300µF for ViX250
6600µF for ViX500
AC Fuse
TD/HBC
Bridge rectifier rated at
4A min. for ViX250 drive
8A min. for ViX500 drive
EMC
filter
Line Fuse
TD/HBC
Isolating
transformer
with screen
X1.9
X1.8
Figure A-1. Drive Power Supply
Note: The saftey earth must be reliably earthed at X1.8. The DC input should also be
connected to earth at a convenient point.
Supply Wiring
Use approved mains cable (at least 0.75mm
2
) for primary wiring and route it away from
secondary and signal wiring. Power input wiring must have a voltage withstanding rating of
at least 1000V AC RMS. Note this figure is a test voltage, not the rated working voltage of
the cable. Power input and motor wiring must be kept separate from signal wiring and
insulated from operator access.
Note: secondary wiring must have a current rating in excess of the AC fuse rating.
Transformer Sizing for the DC Supply
A DC input is required by the drive, which can be generated by rectifying and smoothing the
secondary voltage of a transformer. This is an unregulated supply so do not select a
secondary voltage which generates a DC output greater than 80V.