EasyManua.ls Logo

PEERLESS MI-e Series - Page 6

PEERLESS MI-e Series
44 pages
Print Icon
To Next Page IconTo Next Page
To Next Page IconTo Next Page
To Previous Page IconTo Previous Page
To Previous Page IconTo Previous Page
Loading...
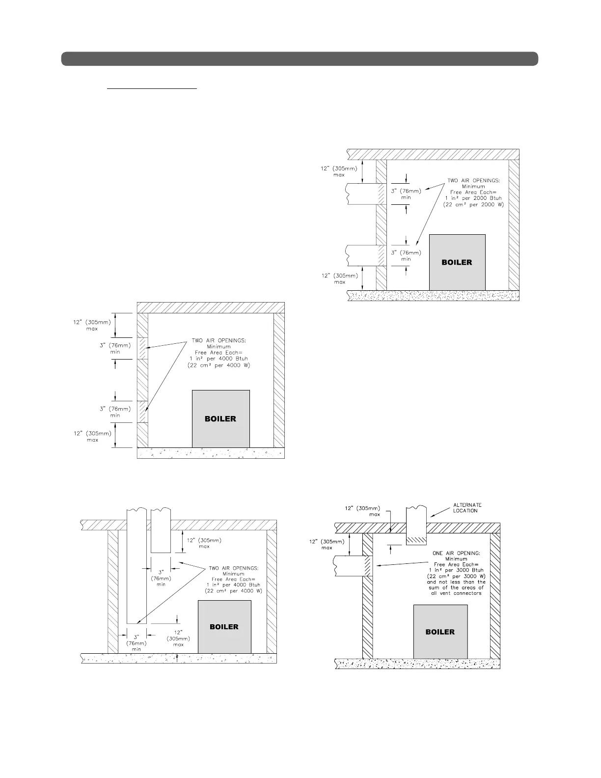
4. Outdoor Combustion Air: Outdoor combustion air
is to be provided through one or two permanent
openings. The minimum dimension of these air
openings is 3 inches (76 mm).
a. Two Permanent Opening Method: Provide
two permanent openings. One opening is to
begin within 12 inches (305 mm) of the top of
the space and the other is to begin within 12
inches (305 mm) of the floor. The openings are
to communicate directly or by ducts with the
outdoors or with spaces that freely communicate
with the outdoors. The size of the openings shall
be determined as follows:
i. Where communicating directly or through
vertical ducts with the outdoors each opening
shall have a minimum free area of 1 in
2
per 4000 Btu/hr (22 cm
2
per 4000 W) of
total input rating for all equipment in the
space. See Figure 1.3 for openings directly
communicating with the outdoors or Figure
1.4 for openings connected by ducts to the
outdoors.
ii. Where communicating with the outdoors
through horizontal ducts, each opening shall
have a minimum free area of 1 in
2
per 2000
Btu/hr (22 cm
2
per 2000 W) of total rated
input for all appliances in the space. See
Figure 1.5.
b. One Permanent Opening Method: Provide
one permanent opening beginning within 12
inches (305 mm) of the top of the space. The
opening shall communicate directly with the
outdoors, communicate through a vertical or
horizontal duct, or communicate with a space
that freely communicates with the outdoors.
The opening shall have a minimum free area
of 1 in
2
per 3000 Btu/hr of total rated input for
all appliances in the space and not less than
the sum of the cross-sectional areas of all vent
connectors in the space. The gas-fired equipment
shall have clearances of at least 1 inch (25 mm)
from the sides and back and 6 inches (150 mm)
from the front of the appliance. See Figure 1.6
for this arrangement.
PREINSTALLATION
Figure 1.4: Air Openings All Air from Outdoors
through Vertical Ducts
Figure 1.5: Air Openings All Air from Outdoors
through Horizontal Ducts
Figure 1.6: Air Openings All Air from Outdoors
through One Opening
4
Figure 1.3: Air Openings All Air Directly from
Outdoors

Related product manuals