EasyManua.ls Logo

PEERLESS PSC II Series - Page 12

PEERLESS PSC II Series
40 pages
Print Icon
To Next Page IconTo Next Page
To Next Page IconTo Next Page
To Previous Page IconTo Previous Page
To Previous Page IconTo Previous Page
Loading...
10
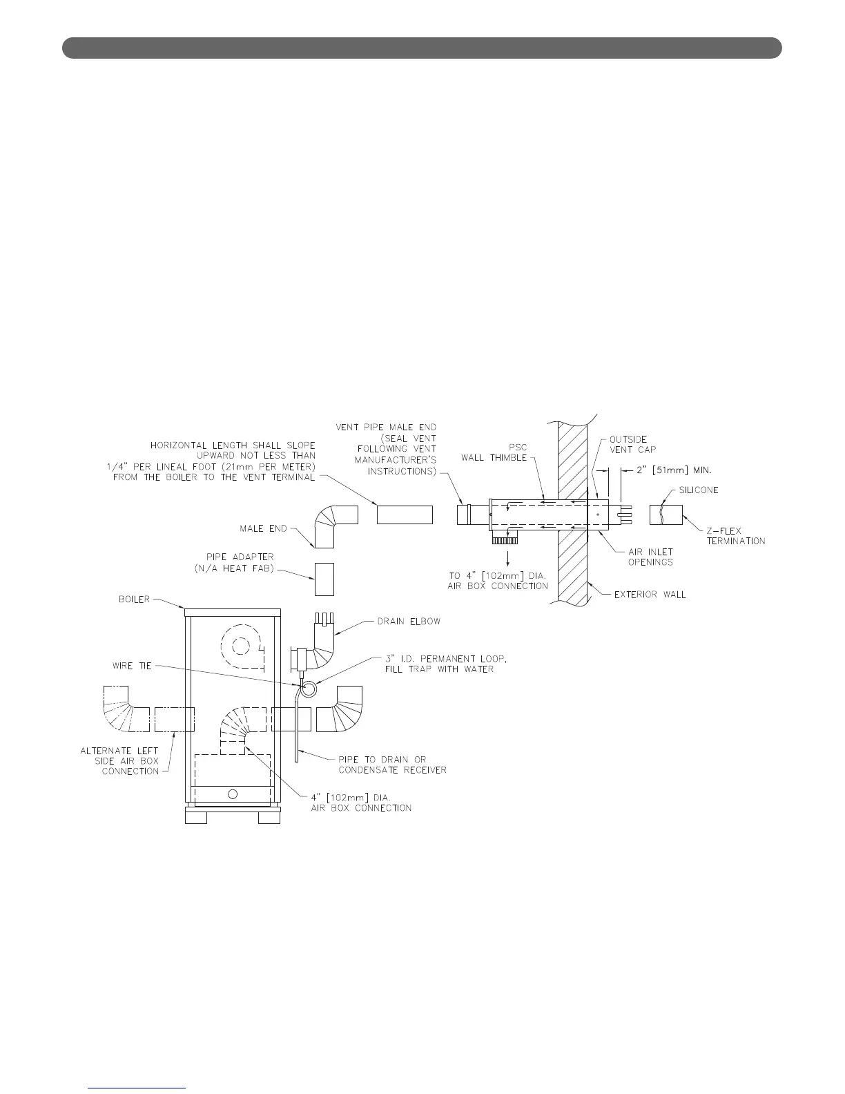
5. Slide Stainless Steel Collar over vent pipe and slide to
end of pipe.
6. Insert pipe with collar through Outside Vent Cap and
slide 3" (76 mm) diameter hose clamp over collar.
7. Leave at least 2" (51 mm) of vent pipe protruding
beyond face of Vent Cap and secure hose clamp and
collar to vent pipe.
8. Place Outside Vent Cap over Wall Thimble with air
openings in Vent Cap facing down. Secure Cap to
Thimble with #10 sheet metal screws.
9. Place 3" (76 mm) diameter hose clamp over pipe
protruding through inside of Wall Thimble.
10. Place Inside Thimble Cap and Collar onto Wall
Thimble. Access hose clamp through 4" (102 mm)
diameter collar on bottom of Thimble and secure hose
clamp over collar and vent pipe as per step 7 above.
11. Secure Inside Thimble cap to Wall Thimble with #10
screws. Seal Thimble Cap perimeter with silicone.
12. Seal all openings between Wall and Thimble and
around the 3" (76 mm) diameter stainless steel vent
pipe that protrudes through inside and outside of Wall
Thimble.
13. Add any bracing that may be needed to support Wall
Thimble on inside of wall structure.
14. Secure Outside Vent Cap to exterior wall with four
#10 sheet metal screws provided.
15. Attach Z-Flex #2SVSTPF03 terminal to protruding
vent pipe. Refer to Figure 4.2. To attach to HEAT-FAB
pipe, insert into pipe end and fold over tabs to secure.
Otherwise, silicone terminal to vent pipe.
VENTING, VENTILATION AND AIR INLET
Figure 4.2: Side Wall Venting System

Related product manuals