EasyManua.ls Logo

PEERLESS PSC II Series - 10 Boiler Dimensions & Ratings

PEERLESS PSC II Series
40 pages
Print Icon
To Next Page IconTo Next Page
To Next Page IconTo Next Page
To Previous Page IconTo Previous Page
To Previous Page IconTo Previous Page
Loading...
31
BOILER DIMENSIONS & RATINGS
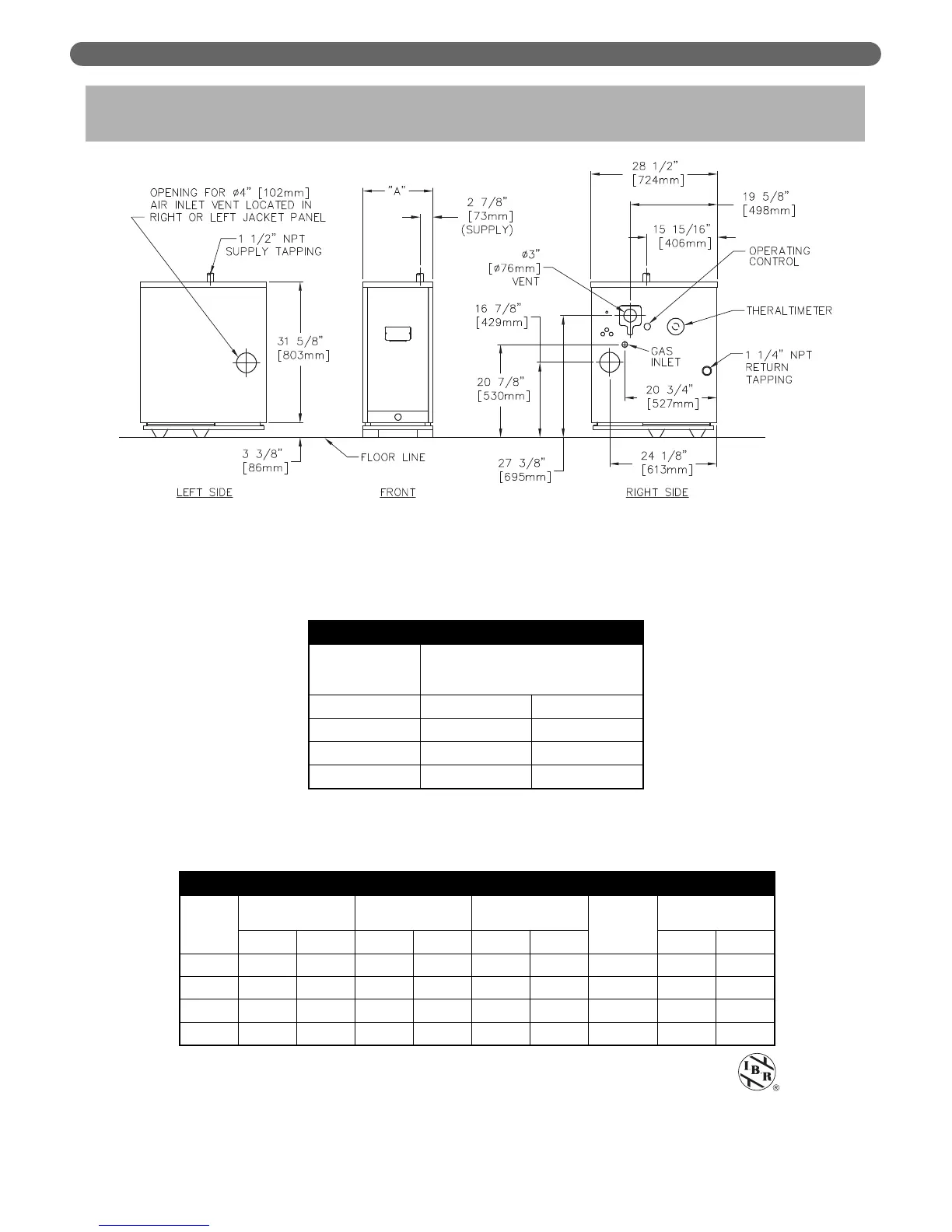
10. BOILER DIMENSIONS & RATINGS
Figure 10.1: Boiler Views
Table 10.1: Series PSC II™ Boiler Dimensions
Table 10.2: Series PSC II™ Boiler Ratings
1 Net I=B=R water ratings based on an allowance of 1.15.
2 Consult factory before selecting a boiler for installations having unusual piping and pickup
requirements, such as intermittent system operation, extensive piping systems, etc.
3 Heating Capacity and Annual Fuel Utilization Efficiency (AFUE) ratings are based on U.S.
Government test.
SERIES PSC II™ BOILER DIMENSIONS
Boiler
Model
Number
Jacket Width “A
PSCII-03 12-1/2" 318 mm
PSCII-04 15-7/8" 403 mm
PSCII-05 19-1/4" 489 mm
PSCII-06 22-5/8" 575 mm
SERIES PSC II™ BOILER RATINGS
Boiler
Model
Number
Input
DOE Heating
Capacity
3
Net I=B=R
Ratings Water
1,2
Seasonal
Efficiency
3
(AFUE)%
Water Content
MBH kW MBH kW MBH kW Gallon Liter
PSCII-03 65 19 56 16 49 14 86.0 4.72 17.87
PSCII-04 90 26 77 23 67 20 85.0 6.00 22.71
PSCII-05 120 35 102 30 89 26 85.0 7.28 27.56
PSCII-06 150 44 128 37 111 32 85.1 8.56 32.40

Related product manuals