EasyManua.ls Logo

PEERLESS PSC II Series - Roof Terminations; Condensate Trap Installation

PEERLESS PSC II Series
40 pages
Print Icon
To Next Page IconTo Next Page
To Next Page IconTo Next Page
To Previous Page IconTo Previous Page
To Previous Page IconTo Previous Page
Loading...
11
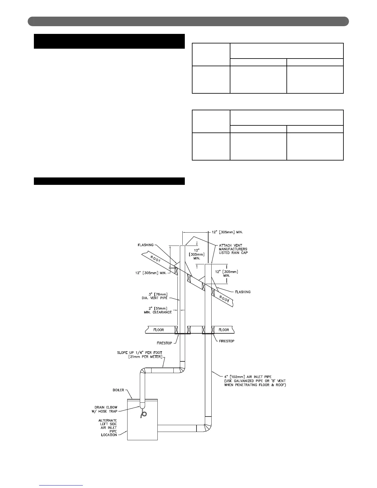
C. ROOF TERMINATIONS (VERTICAL
VENTING)
1. Vent pipe and air inlet terminations must be within the
maximum and minimum vent and air intake lengths
shown in Tables 4.1 and 4.2.
2. Vent pipe and air inlet pipe must terminate 12"
(305 mm) above expected snow lines. Vent pipe must
be a minimum 12" (305 mm) above and 12" (305
mm) horizontally from air inlet pipe. See Figure 4.3.
3. Attach a vent manufacturer's listed rain cap to both
the vent pipe and air inlet pipe.
4. Provide 2" (51 mm) clearance between vent pipe and
combustible construction. No clearance is required
between air inlet pipe and combustible construction.
5. See vertical venting section in vent manufacturer's
instructions for recommendations for penetration
through roof.
D . CONDENSATE TRAP INSTALLATION
Locate condensate hose and cable tie in Accessory
Carton. Connect hose to drain fitting on condensate
elbow. Form a 3" diameter loop and secure with cable tie.
Fill loop with water. Pipe to drain or condensate receiver.
See Figure 4.2.
VENTING, VENTILATION AND AIR INLET
Table 4.1
Table 4.2
Figure 4.3: Vertical Venting System
* Each 90° elbow equals 5 feet (1.5 meters) of equivalent
length.
Boiler Model
*Equivalent Length of 4" (102 mm) Diameter
Aluminum/Galvanized Air Inlet Pipe
Minimum Length Maximum Length
PSCII-03
PSCII-04
PSCII-05
PSCII-06
12 feet (4.0 m)
12 feet (4.0 m)
12 feet (4.0 m)
12 feet (4.0 m)
70 feet (21.0 m)
70 feet (21.0 m)
63 feet (19.0 m)
63 feet (19.0 m)
Boiler Model
*Equivalent Length of 3" (76 mm) Diameter
Stainless Steel Vent Pipe
Minimum Vent Length Maximum Vent Length
PSCII-03
PSCII-04
PSCII-05
PSCII-06
8 feet (2.5 m)
8 feet (2.5 m)
8 feet (2.5 m)
8 feet (2.5 m)
52 feet (15.5 m)
52 feet (15.5 m)
45 feet (13.5 m)
45 feet (13.5 m)

Related product manuals