EasyManua.ls Logo

Pentair MasterTemp 300 - Page 141

Pentair MasterTemp 300
172 pages
Print Icon
To Next Page IconTo Next Page
To Next Page IconTo Next Page
To Previous Page IconTo Previous Page
To Previous Page IconTo Previous Page
Loading...
Rev. 10 10/2018 MASTERTEMP Chauffe-eau pour piscine et spa guide d’installation et d’utilisation
27
1 pi Min.
4 pi Min.4 pi Min.
4 pi Min.
4 pi Min.
Terminaison de
la ventilation
Terminaison de
la ventilation
Terminaison de
la ventilation
Max. 12 po
Min. 3 po
Minimum de 1 po
au-dessus de la
neige ou du niveau
définitif du sol
(le plus élevé)
Prise d’air
Compteur à gaz
Le dégagement doit être un
minimum de 3 pi si la course
horizontale à la sortie d'air se
trouve à moins de 10 pi.
Un minimum
de 7 pi (2,1 m)
au-dessus d’un
passage public
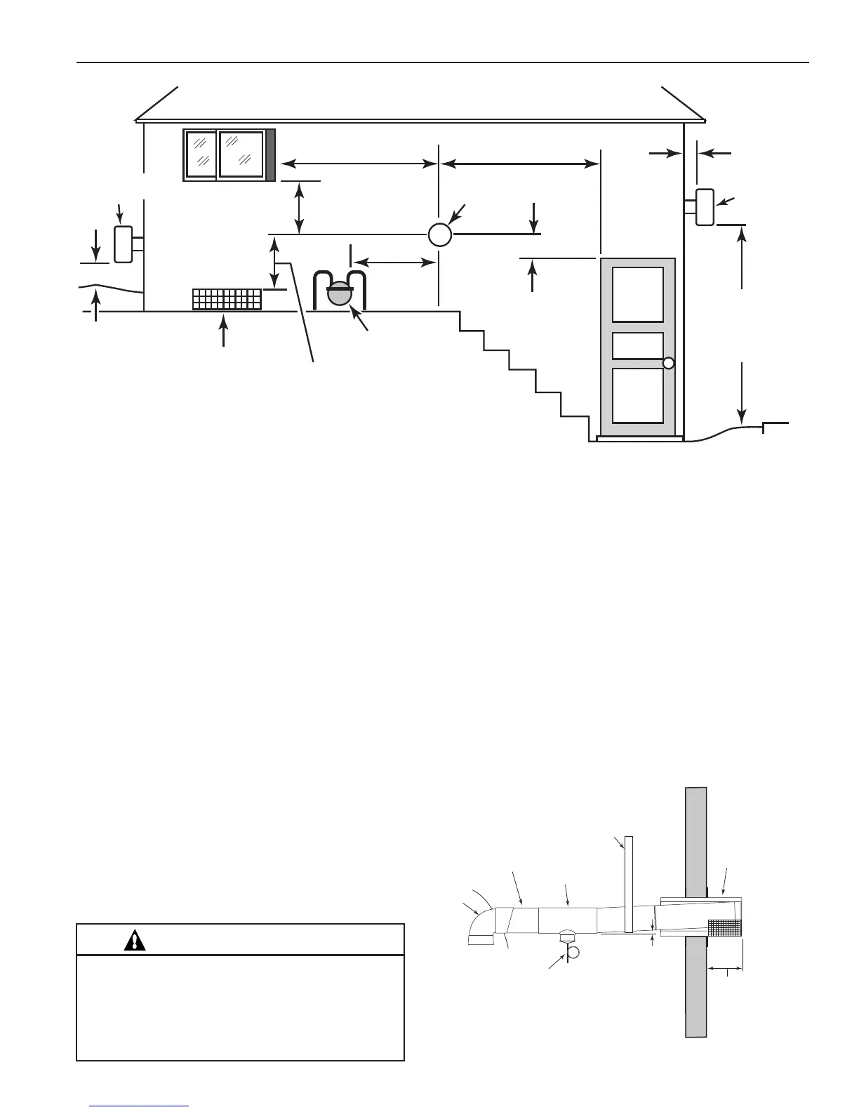
Figure 16.
8. Terminaison de la ventilation – Horizontale
La terminaison doit être située (É.-U. - Voir la figure 16) :
à au moins 3 po et à un maximum de 12 po à l'extérieur du mur (voir la figure 17), suivant les directives du fabricant
à au moins 12 po au dessus du niveau d'accumulation de neige normalement prévu ou du niveau définitif du sol, le plus haut des deux
à au moins 4 pi en dessous ou à l'horizontale de, ou 1 pi au-dessus, de toutes portes, fenêtres ou entrées gravitationnelles
du bâtiment
à au moins 3 pi d'une quelconque prise d'air extérieure située dans un rayon de 10 pi
à un minimum de 4 pieds de compteurs électriques, compteur du gaz, régulateurs et soupapes de sécurité
à au moins 7 pieds au-dessus des trottoirs publics.
La terminaison doit être située (Canada - Voir la figure 16) :
à au moins à 10 pi (3,3 m) d'une quelconque ouverture du bâtiment
à au moins 12 po (0,3 m)au dessus du niveau d'accumulation de neige normalement prévu ou du niveau définitif du sol, le plus
haut des deux
à un minimum de 4 pieds (1,2 m) de compteurs électriques, compteur du gaz, régulateurs et soupapes de sécurité
à au moins 7 pieds (2,1 m) au dessus des trottoirs publics.
Allouer au moins trois pieds (1 m) de dégagement vertical pour une terminaison lorsque celle-ci est située en dessous du surplomb
ou un deck.
Éviter de placer le chauffe-eau dans les coins ou les alcôves,
là où la neige ou le vent pourraient entraver à son bon
fonctionnement. Le système d'évacuation pourrait
endommager les plantes ou le recouvrement de bâtiment.
S'assurer que la terminaison n'est pas près de plantes. Afin
d'éviter la décoloration ou la détérioration, les surfaces
exposées peuvent nécessiter d'être protégées.
AVERTISSEMENT
Risque d'incendie. Ne pas raccorder la conduite
d'évacuation du chauffe-eau à une conduite d'un autre
appareil. Ne pas raccorder le tuyau de ventilation de
gaz spécial directement ou dans une conduite active
comme une cheminée en maçonnerie.
Corps de
l’évent
métallique
Tuyau de ventilation
de gaz spécial
requiert une pièce
d'ajustage pour
appareils
Té à
condensation
Supporte
le poids
du tuyau
Plaque à
borne
homologuée
Drain des
condensats
avec clapet
(facultatif)
La course horizontale
doit être inclinée de
1/4 po par pied
(2 cm par mètre)
vers le drains de
condensation
3 pi (7,6 cm) min.,
12 pi (30,5 cm) max.
Dégagement
Figure 17.
Section 3. Installation

Table of Contents

Related product manuals