EasyManua.ls Logo

Perkins 4006 - Wiring Diagram Cav Starter, Without Repeater Relay

Perkins 4006
59 pages
Print Icon
To Next Page IconTo Next Page
To Next Page IconTo Next Page
To Previous Page IconTo Previous Page
To Previous Page IconTo Previous Page
Loading...
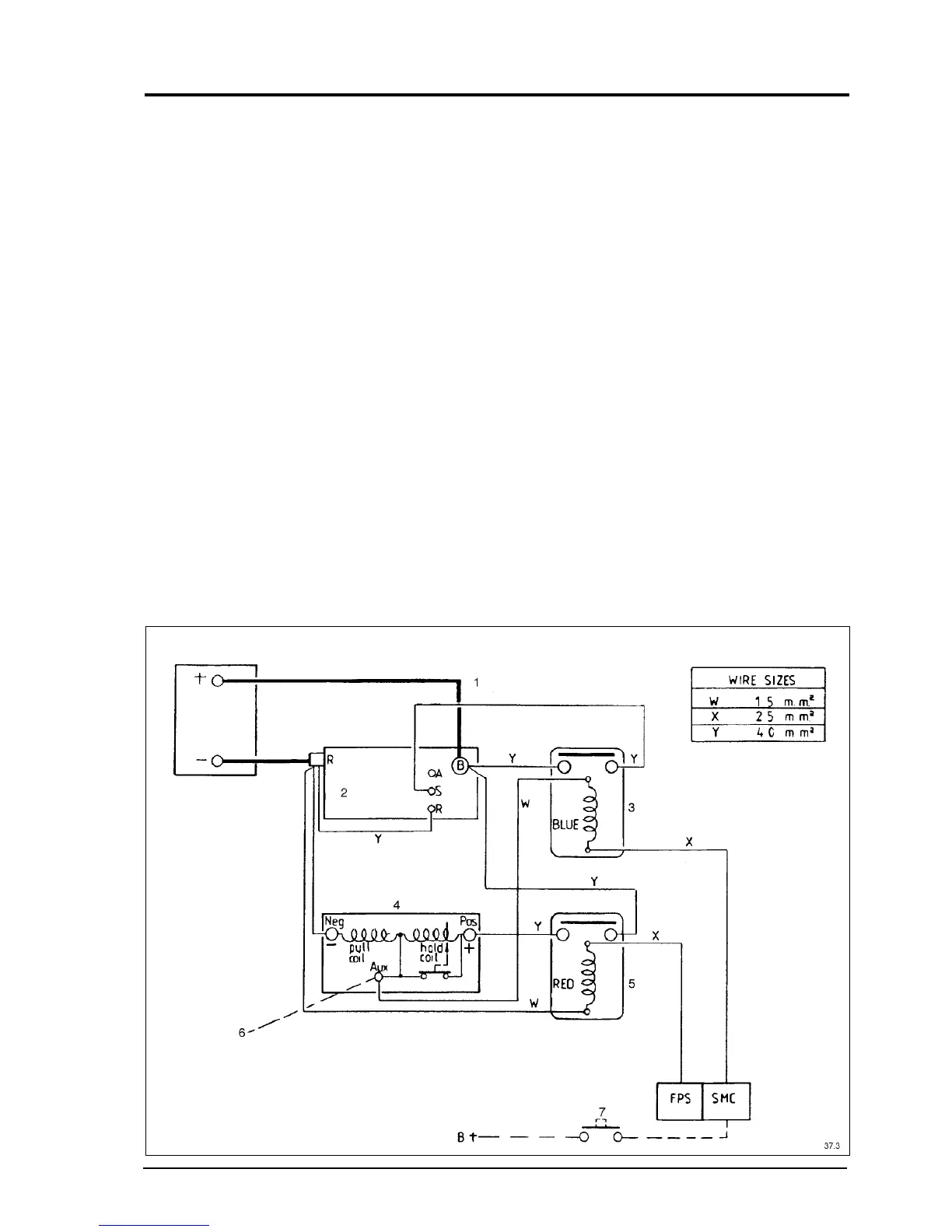
WIRING DIAGRAM, CAV STARTER WITHOUT REPEATER RELAY
4006/8 Diesel, May 1998 49
Key
(Fig. 48)
1. 24 volt starting batteries
2. CAV Starter motor
3. Start relay
4. Fuel stop solenoid
35.0 Amps inrush
0.75 Amps holding
Energised to run
5. Fuel stop solenoid relays
6. NOTE: Aux terminal gives a battery
negative signal when solenoid is fully
energised. To enable engine to run
immediately on depressing start button
F.P.S. must be fed positive +ve
7. Start button
Fig. 48

Related product manuals