EasyManua.ls Logo

phase II+ SRG-4000 - Surface Preparation and Tester Placement; Surface Preparation Steps; Tester Placement Guidelines

phase II+ SRG-4000
12 pages
Print Icon
To Next Page IconTo Next Page
To Next Page IconTo Next Page
To Previous Page IconTo Previous Page
To Previous Page IconTo Previous Page
Loading...
Machine Accessories Precision Tools Cutting Tools Material Testing Instruments
(201)962-7373
WWW.PHASE2PLUS.COM
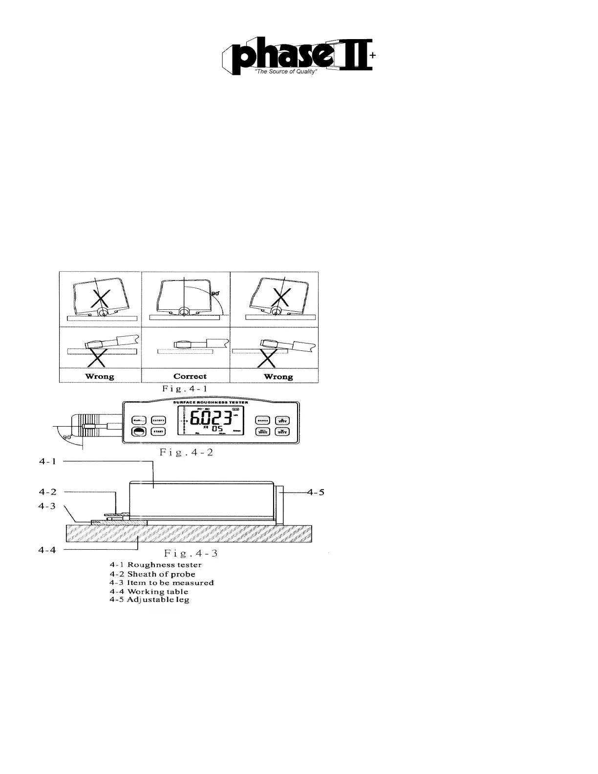
Surface Preparation:
Be sure to clean surface from any liquids, viscous fluids, metal
chips, dust and rust. Any paint type coatings should be removed
prior to test.
Placement of Tester:
a) Be sure to set the unit flat as seen in
Figure 4-1. The built in level indicator
on the display will help you get set to
“0”.
b) The sliding trail of the stylus must be
vertical to the direction of the process
line (“across the grain”) of the measured
surface. See Figure 4-2
c) When the measured surface is smaller
than the bottom surface of the instrument,
the stylus sheath and adjustable leg can
be used as auxiliary support to complete
the measurement. See Figure 4-3

Related product manuals