EasyManua.ls Logo

Philips 36PW9618 - 6.4 Supply Lines Overview

Philips 36PW9618
172 pages
Print Icon
To Next Page IconTo Next Page
To Next Page IconTo Next Page
To Previous Page IconTo Previous Page
To Previous Page IconTo Previous Page
Loading...
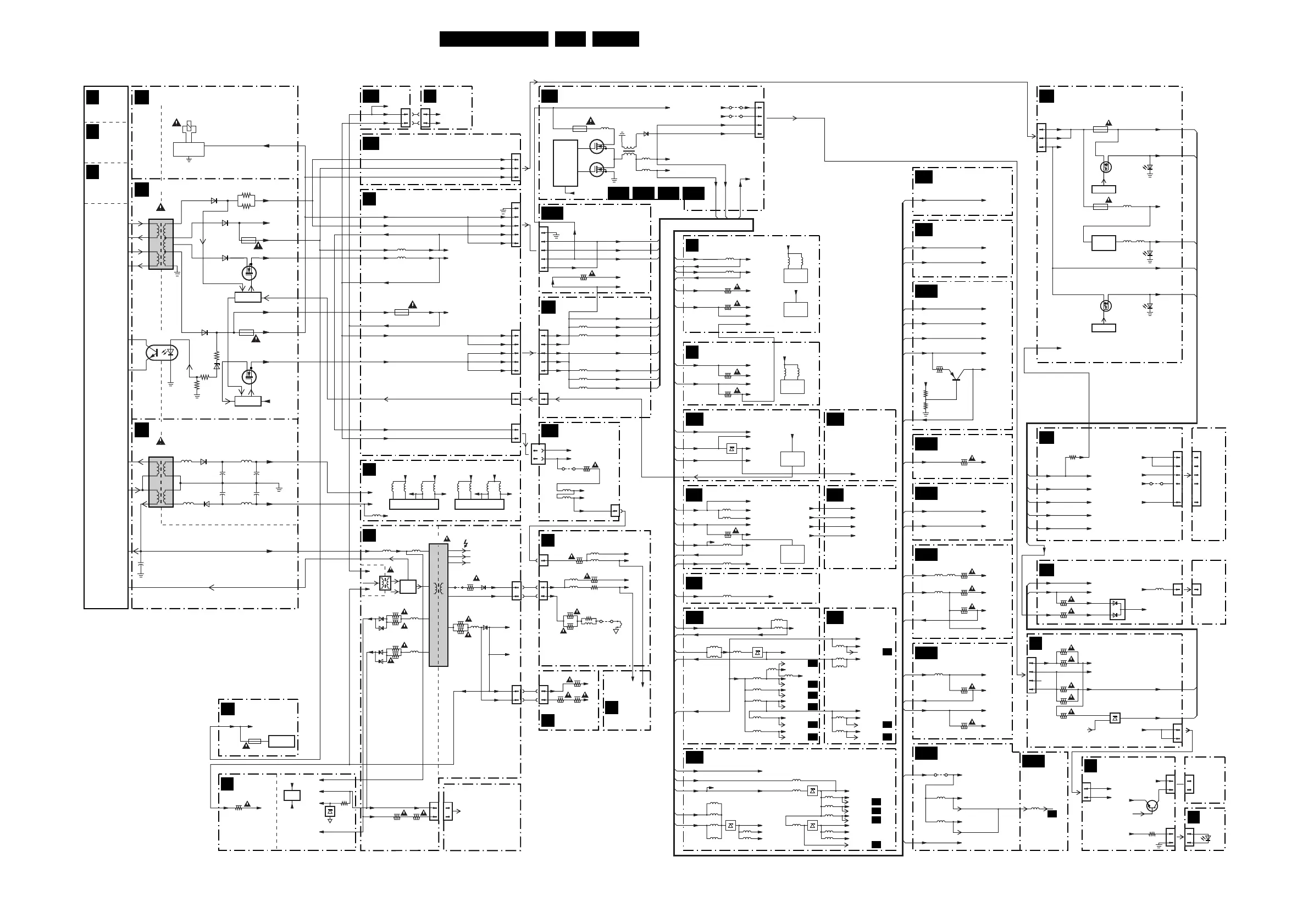
Wiring Diagram, Block Diagrams and Overviews
43EM6E 6.
Supply Lines Overview
MAIN SUPPLY
MAIN
SUPPLY
A1
MAINS
SWITCH
E
A1
STAND-BY SUPPLY
MAIN SUPPLY
A2
A1
1
4
1550
COLDHOT
7501
7528
ACTIVATING
CIRCUIT
1601
125mA
+11V_ROT
1
7680
TDA7052
4
99
4
1946 0241
6
1940
6
3600
5600
5601
3IK7
A8
AUDIO AMPLIFIER
A6
FRONT
A10
DC/DC CONVERTER
B12
B14A
B15C B14AB3CB3A
T1
L
B1
A2
ROTATING
CIRCUITRY
A5
MAINS
SWITCH
E
AUTOSCAVEM
SC1
+5V STANDBY
+11V
+11V
+3V3_SIM
+3V3_SIM
+3V3_LINK
+5V
+5V
+3V3_SIM
+3V3_LINK
+11V
+8V6
+11V
+8V6
5303
5308
5309
5310
1440
+8V_+12V
+8V
+8V
1
9002
9U03
+5V
9U08
+16V+19V
4
-Vf1
-VS
-Vf11
22 1 2 24
5712 5708 5711 5707
5735
-16V-19V
7700
TDA7490
+16V+19V
4
-Vf2
-Vf21
22 1 2 24
5715 5722 5716 5723
-VS
7702
TDA7490
3
1
1492
+11D +11D
FILAMENT
PULSES
FILAMENT
LINE
DEFLECTION
PANEL ON CRT
NECK
(OPTIONAL)
A3
CRT
DAF
F1
AUTO
SCAVEM
F2
I
5400 5401
+141V
+5V2
+11D
HOT
COLD
LOT
HOT COLD
-15V-LOT
+13V-LOT
EW
5430
5
1
5410
7421
3465
6464
6465
3464
3400
3305
3809
11VDC
3341
3301
3401
9401
5400
3404
3403
LINE
OUTPUT
STAGE
9410
5465
3
3463
3499
6462
3461
12
9
6460
+11D
TO
3450
3451
6400
FOCUS 2
FOCUS 1
EHT TO ANODE CRT
+218V
3460
5461
3462
3498
3635
5463
1495
6
FILAMENT
2
7
1424 1424
8
6463
3
1
3
1
FRAME
DEFLECTION
E/W DRIVE
A4
COLD HOT
3449
7620
TDA8177
4
2
+11D
+8Vb
+13V-LOT
+13V-LOT
+8V-S
+141V
-15V-LOT
-15V-LOT
7813
2
9
10
7
1240
+8V_+12V
+8V
+200A
VSYM
VSYM
+8V_SVM
+8V_SVM
+200V
6
1492
3
1
3807 3808
CL 36532008_008.eps
070503
PRIMARY
SIDE
6110
3115
3116
+8V6-SWITCH
7130
7131
7140
7141
CONTROL
6113
1969
6111
2.5A
85
5101
7103 OR
7104
9
10
11
12
3
6107
3113
6122
2
1
5
4
1
2
D
G
S
+5V-SWITCH
CONTROL
3114
3124
D
G
S
1402
T1A
1968
2A
1930
1000mA
1U01
1800mA
+5.2V_MP
VTUN
+11V_STBY
+11V
+8V6
+5.2V_MP1
+5V
+5V
+8V
+8V
+5V
+5V
+5.2V_MP
+11V-STBY
STANDBY
HOT COLD
HOT
COLD
65355507 5514
2512
+
+
2511
+
2515
+VBATT
GND-AUD
6
5506 OR
5612
7
9
10
5
4
3
1
+16V+19V
-16V-19V
SUP-ENABLE
AUDIO SUPPLY
5509 6536 5513
2542
+
+
2543
1
6
1940
6
7
5
4
3
6
7
5
4
3
1206 1S02
5
4
3
1146
36
1205
36
1S15
+5.2V
+5.2V
+8V
+11V5
STANDBY
+5V
+8V
+5V_CON
STANDBY
5902
+8V
5S02
+8V_AUD
5S01
+8V_VDP
5S04
5S05
+5V_VDP
5S03
+5V_AUD
+8V
5903
5U02
5U05
5U01
6U02
7U04
+11V5
+11V5
4
5
3
2
1
1147
4
5
3
2
1
1I70
VTUN
+11V5
5
3
1
1U02
+3V3_DCDC FBX
+3V3_DCDC FBX
7
+11V
+5V_SW
5
3
1
1U02
7
44
1120
1120
+5.2V_MP
VTUN
+5.2V_MP
+5.2V_MP
+11V
+11V
+33V
+5V2
+5V2
+11V
+33V
+5V2
+3V3_FAULT
+8VA
+8V
+8V
+5V2
+5V2
+8V
+16V+19V
-16V-19V
+VBATT
SUP-ENABLE
COLD
HOT
COLD
+13V-LOT
-15V-LOT
LINE
DRIVE
HOT
+5.2V_MP
VTUN
+11V
+5.2V_MP
VTUN
+11V
+5.2V
+5V
+5.2V_MP1
+8V
+8V
+11V5
STANDBY
+11V5
+11V
+8V
+8V6
1x1x
1x
2x
1x
1x
8x
1x
1x
3x
1x
2x
8x
2x
2x
1x
17x
20
21
19
18
17
20
21
19
18
17
1253
3338
1800
CONTROL
G
D
S
7U03
G
D
S
5U06
3329
5
4
3
1146
3A03
3P74
3P88
+5VA
+5VF
+5VA
5744
+11V_AUD
PICNIC
B3A
FALCONIC
B3B
EAGLE
B3C
B12
5731
5733
+3V3_INT
+3V3_FBX
+3V3FA
+8V-AUD
+3V3PR
5713
5737
+3V3FM
7726
7727
+3V3P
5724
5738
5742
+3V3_FBX
+3V3_FBX
5745
5727
5726
5729
5714
5736
+3V3A
11-7713
24-7713
5416
+8V_CON
5415
5403
7407
IRFR9024N
+5V2_CON
+5V
5A06
+5VF
+5DB
+5DA
+5V_AUD
5723
+5VA
5721
+8V_CON
5748
5756
7301
TDA9330H
HOP
5302
39
5301
17
+8VS
OTC
B5A
OTC-FLASH
B5C
TUN1/TUN2
B13
7001
SAA5801H
OTC
9,19,20,38,49,
75,101,111
+5V_CON
+5V2_CON
+8V_CON
+3V3_INTOTC
OUT
IN
+3V3_INTOTC
+3V3_INTOTC
104
HOP
B4
+8VS
+8V_VDP
3304
+5VS
+5V_VDP
AUDIO DEMODULATOR
B6A
DOLBY DIGITAL DECODER
B6B
PIP MUPPET
B15C
B14A
DOLBY
PROLOGIC
B6C
7A02
MSP3
AUDIO
PROC.
7706
5706
5746
5747
5719
5753
+2V5FB
+2V5B
+2V5B
+3V3
_DCDC FBX
5718
31
5A01
+5M
5A38
5A00
5A03
7005
+8VC
+8VC
+11V_AUD
+5DB
+5DA
+8VC
+11V_AUD
+5DB
+5DA
+3V3_E
+3V3FCD
5PB0
+3VD
5PA9
+3V
+3.3V
+3V3_FAULT
B12
+3V3_FAULT
B12
+3V3_FAULT
B12
+3V3_FAULT
B12
+3V3_FAULT
B12
+3V3_FAULT
B12
+3V3_FAULT
B12
+3V3_FAULT
B12
+3V3_FAULT
B12
+3V3_FAULT
B12
+3V3_FAULT
B12
+3V3_FAULT
B12
+3V3_FAULT_PIP
+3V3_FAULT
5I01
+3V3_FAULT_PIP
B12
+3V3_FAULT
+3V3FC1
+3V3FC2
+1V5_E
+1V5FCA
+1V5FCC
3400
7307
TDA9181
6.5
+5VCOM
IF/IO
B2
+8VP
3402
+5VCOM
+5VS
+8V_VDP
7323
TDA9320H
HIP
5405
45
5404
11
+8Vp
5743
5728
7720
+2V5_E
+2V5FCA
+2V5FCD
5725
57225749
+11V_S
+5V
+3V3_FBX
+8V_AUD
+5V_AUD
STANDBY
+5V
+5VF
+8V
+8V_CON
+5V2
+5V2_CON
+5V_CON
+5V2_CON
+8V_CON
+8V_VDP
+5V_VDP
+8V_VDP
+5V_VDP
+5VPIP
+5VPIP
+3V3_SIM
2x
5716
5717
+3V3_INT
To 7717
To 7719
+3V3_FBX
+2V5B
+5VA
+5VA +5VA
+8V_CON
9PB2
9317
PIP I/O
LCD BOARD
RADIO
PANEL
FOR MORE
SUPPLY LINE
DETAILS SEE
RADIO PANEL
DIAGRAM
K
EJECT
LCD
DISPLAY
B15B
PIP IF/IO
B15A
5P51
+5VD
+5VPIP
14-7P55
+8VPIP
+5VPIP
+8VPIP
+5V
AUDIO I/O
B14D
+5V
+5V
+8V
+8V
T2
DVD
ENGINE
FOR MORE
SUPPLY LINE
DETAILS SEE
DVD ENGINE
MANUAL
+5V
+5V
T3
T4
+5V_2V_MP
+5V_PCF
+5V_2V_MP
+3V3_DVD
+3V3_DVD
+5V_DVD
+11V_S
+3V3_DVD
+5V_DVD
+5V_DVD
+11V_S
+12V_DVD
+11V_S
+12V_DVD
+12V_DVD
+12V_AUDIO
+12V_AUDIO
+12V_DVD
+12V_DVD
+5V
+5V
+33V
+33V
+11V_S+11V
+5.2V_MP
+5V_PCF
ANTI MOIRE
DTV REGULATOR
B5B
+5V_CON
+5V_CON
I/O EUR
B14B
+11V
+11V_S
+11V_S
+5V
3IB4
3IC1
7I07
3IB5
1X
+5V
+5V2
2FH I/O
B14C
+5VIO
+5V
3P02
5P03 5P00
5102
5P01
+8VPIP
C-7P05
3P01
3003
+8V
+8V
+8VHIP
3P00
3IN4
+11V_S
+11V_S
+11V
+5V
+5V2
+5VHIP
3081
3080
3042
1406
T630mA
3078
+12V_STBY
+12V_AUDIO
+5V_SWENABLE
+5V
3139
+5V
3140
+5V
+12V_PREAMP
+12V_AUDIO
+5V
3079
+8VPIP
1X
1X
+5V
N.C.
16
24
24
16
1260
1x
1x
1x
1260
+5V
+5V
16
2
1205
7000
LCD_BACKLIGHT
+5V
+5V
+5V
3
1
3
1
1264 1264
6202
6407
6401
6402
7005
6101
5
1
2
+12V_DVD
2x
+3V3_DVD
+11V_F
1x
+5.2V_MP
1x
+5V_DVD
1x
54025406
D
S
G
CONTROL
7409
D
S
G
CONTROL
VOLTAGE
REGULATOR
7400
11 5.6
STAND-BY
SUPPLY
A2

Related product manuals