EasyManua.ls Logo

Philips BP2.2U - Ssb: DC;DC (B1 A)

Philips BP2.2U
151 pages
Print Icon
To Next Page IconTo Next Page
To Next Page IconTo Next Page
To Previous Page IconTo Previous Page
To Previous Page IconTo Previous Page
Loading...
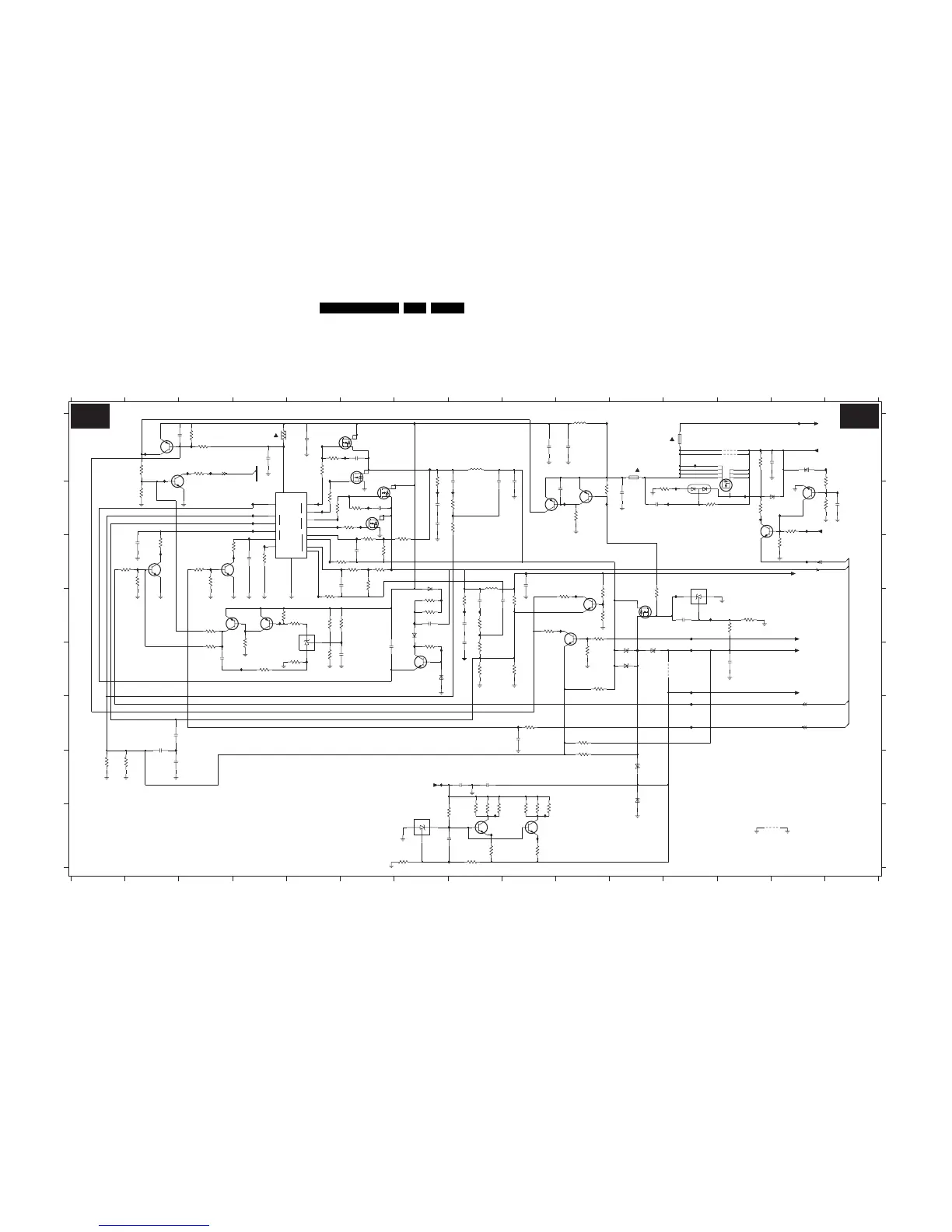
Circuit Diagrams and PWB Layouts
EN 41BP2.3U AA 7.
SSB: DC/DC
VCC
L2
+1
-1
1
2
+2
-2
2
VFB
GATE
IS
COMP
GATE
GND
1
BST
ROSC
H2
L1
H1
14 15
12
IU79 B11
IU80 D12
IU81 D12
IU83 A15
IU86 A7
IU88 F9
IUA0 E4
1V0
0V3
0V3
G
H
1U01 A11
1U04 A12
2U09 F2
+2V5 STABILIZER
12345678910111213
2U27 B7
2U28 B7
2U29 D8
2U30 E8
2U31 A6
2U32 B6
2U37 F9
0V
3V3
789101112345
IU51 H8
IU52 H9
IU58 D10
IU59 D10
IU60 D7
IU61 G3
IU62 A3
IU63 A3
IU65 D4
IU66 D4
IU67 D6
IU68 E3
IU69 E5
IU78 B10
2U38 E5
2U40 G8
2U41 G8
2U42 B11
6
2U15 C4
2U16 A4
2U17 A5
2U18 C6
2U19 B8
2U20 D8
2U21 D8
2U22 C9
2U23 F2
2U24 B9
2U25 A10
2U26 D7
3U07 C6
3U08 C6
3U09 D5
3U10 C6
3U11 E7
3U12 B8
3U13 B8
IU53 H9
IU54 B7
IU55 D8
IU56 D10
IU57 D10
C
D
E
F
G
H
A
B
C
D
E
F
3U31 D3
3U32 E4
3U33 E3
3U34 B14
3U35 C14
3U36 H7
2U10 G2
2U11 E6
2U12 C5
2U13 C2
2U14 A2
2U58 B11
2U71 B15
2U72 B10
2U73 D12
2U85 B8
3U00 C2
3U01 C2
3U02 C2
3U03 C3
3U04 C3
3U05 C3
3U06 C4
3U64 H8
3U65 H8
13 14 15
A
B
3U19 F9
3U20 D8
3U21 B7
3U22 A4
3U23 A5
3U24 A5
3U25 B5
3U26 B6
3U27 B5
3U28 B6
3U29 D4
3U30 D5
BOOSTER
RES
2U45 A9
2U46 E13
2U47 H7
2U50 A13
2U55 E3
3U42 E5
3U43 B13
3U44 A13
3U45 D5
3U46 E5
3U52 B14
3U53 B14
3U54 D10
3U55 D10
3U56 D10
3U62 H7
3U63 H8
6U07 G11
6U08 E11
3U14 D8
3U15 E8
3U16 E8
3U17 E9
3U18 D9
3U71 H8
3U80 E4
3U82 C7
3U83 C6
3U84 B12
3U85 A3
3U86 A3
3U87 A2
3U88 A3
3U89 B2
3U93 D9
3U94 D10
7U11 E5
7U13-1 B3
7U13-2 A2
3U37 G1
3U38 G1
3U39 G10
3U40 B12
3U41 D5
3UA3 D11
3UA4 D13
3UA5 D13
3UA6 F10
3UA7 E10
3UA8 D7
3UA9 D7
5U00 A8
5U02 A10
5U03 C8
6U05 E11
6U06 E11
0V
DC / DC
RES
FU02 B4
FU03 A7
FU05 F12
FU06 C9
FU07 E12
3U66 H9
3U67 H9
3U68 H9
3U69 H9
3U70 H8
6U22 D7
6U23 D7
7U00 B4
7U01-1 A6
7U01-2 A6
7U03-1 B6
7U03-2 B6
7U05-1 C2
7U05-2 C4
7U07 E7
7U10-1 D3
7U10-2 D4
12V/1.2V CONVERSION
12V/3.3V CONVERSION
RES
3U95 E10
3U96 C6
3U97 C6
3UA1 B10
3UA2 B10 7U17 H7
7U18 H8
7U19 H9
7U27 C12
7U28 D11
7U29-1 B10
7U29-2 B9
9U03 H14
9U04 A13
9U05 A13
9U06 E12
FU01 A14
12V SWITCH
+2V5D LINEAR STABILIZER
6U11 B14
6U12 A14
6U17 G11
6U18 B12
6U21 E7
FU19 F12
FU23 A3
IU01 A13
IU02 B13
IU03 B2
IU04 B4
IU05 B4
IU06 B4
IU07 B4
IU08 C4
IU09 C3
IU10 C4
0V
7U14-1 B13
7U14-2 B14
7U15-1 D10
7U15-2 D10
7U16 B13
IU11 C2
IU12 C2
IU13 D5
IU36 B6
IU37 B14
IU38 G7
IU40 D8
IU41 D8
IU42 A10
IU43 A12
IU44 C6
IU45 C6
IU46 B12
IU47 B12
IU48 H8
IU49 H8
IU50 H8
FU08 D12
FU09 E11
FU13 C7
FU15 C14
FU18 F12
IU14 C6
IU15 C5
IU16 B5
IU17 B5
IU18 A5
IU19 A5
IU20 A2
IU21 B8
IU22 B8
IU23 A6
IU24 A5
IU25 C5
9U06
0V
RES
12V UNDER-VOLTAGE DETECTION
IU26 D7
IU27 E7
IU28 E7
IU29 B6
IU30 B6
IU31 B5
IU32 B5
IU33 B15
IU34 B14
IU35 B13
IU52
7U03-1
SI4936ADY
78
2
1
3U67
GND-SIG
IU55
2K2
3U95
150R
3U44
22u
2U24
1M0
1K0
3U29
3U55
10K
IU08
6U11
BZX384-C12
10K
3U93
3U53
IU63
3U69
4R7
330R
IU12
FU02
IU07
100n
2U55
10K
IUA0
3U80
3UA1
1K0
2U23
100p
1%
1K0
3UA4
1%
IU13
3U41
33K
100n
3U86
10K
2U12
3U14
6K8
100n
2U15
IU50
IU79
SI4936ADY
7U03-2
56
4
3
6K8
3U07
10K
3U03
7U10-1
BC857BS
2
6
1
2U30
1n0
IU22
2U46
1u0
IU60
GND-SIG
IU48
6K8
3U83
100n
2U26
IU17
IU53
3U87
IU54
10K
2U13
100n
9U05
IU88
IU80
+5V2-STBY
FU07
IU86
1U01
3AT 420
3U21
10R
3
A
1
K
2
R
7U11
TS2431
3U30
2K2
FU09
2
6
1
IU19
BC847BS
7U14-1
BC817-25W
FU01
7U07
22K
3U01
1%
GND-SIG
560R
3U37
3U89
10K
SI4835BDY
7U16
+12VS
IU45
IU42
IU44
10R
3U20
2U19
100n
IU25
5U00
10u
GND-SIG
IU37
1n0
2U28
3U84
10R
IU57
150R
3U63
3U68
150R
BC847B
7U18
GND-SIG
1u0
2U11
3U31
10K
10K
3U33
BAV99 COL
6U18
IU15
2U41
IU16
1K0
1u0
3U15
78
2
1
FU08
GND-SIG
SI4936ADY
7U01-1
IU32
FU13
6U05
2U18
STPS2L30A
IU38
100n
IU78
IU81
2U71
100n
IU47
GND-SIG
+2V5D
1n0
2U47
2
6
1
22u
2U25
BC847BS
7U15-1
3U66
150R
FU23
res
FU19
STPS2L30A
6U08
6
1
2R2
3U25
7U05-1
BC847BS
2
IU02
IU43
GND-SIG
3U04
22K
2U22
22u
6K8
3U96
3U82
6K8
9U03
2U45
220R
22u
10R
3U02
FU18
3U27
5
3
4
BC847BS
7U15-2
GND-SIG
1K0
3U12
2U32
3n3
3U08
3K3
1K0
3UA7
2U72
100n
1%
1K0
3U56
IU01
3U11
220R
2R2
3U28
GND-SIG
FU05
7U14-2
5
3
4
IU83
BC847BS
100n
2U20
2U17
22u
IU51
3n3
2U85
3U32
10K
6U22
BAS316
7U19
BC847B
3K3
3U10
IU56
IU27
1u0
2U16
10R
3U24
STPS2L30A
6U07
7U13-2
BC847BPN
IU69
IU67
100K
3U40
IU66
BC857BS
5
3
4
IU24
7U10-2
3U22
10R
IU59
5U02
10u
2U31
IU05
3U88
3n3
100R
IU18
IU23
IU14
3U42
10R
3U45
1M0
IU62
100n
2U14
1%
10K
3U85
3U18
220R
FU15
6K8
3U13
10R
3U54
2U40
1u0
STPS2L30A
res
GND-SIG
6U06
res
1%
7U13-1
BC847BPN
3U39
1K0
2U27
1n0
T3A
1U04
420
IU33
IU35
GND-SIG
3UA5
47R
5
3
4
9U04
BC847BS
7U05-2
3U23
4R7
470n
2U37
IU34
4R7
3U70
IU68
IU10
1% 1K0
3U17
150R
3U65
3U00
33K
6U23
BAS316
1u0
2U50
2U73
1n0
BZX384-C18
6U21
IU03
IU61
IU09
IU40
IU41
IU46
3U43
47K
3U64
150R
1u0
2U58
7U17
TS2431
3
A
1
K
2
R
3UA8
IU58
IU04
68R
470n
2U42
+12VSW
39K
3U06
1K0
3U62
5U03
10u
3U09
6K8
IU11
3U46
12K 1%
100K
3UA2
BC857BS
7U29-2
3UA3
2K2
7U29-1
BC857BS
IU20
6U17
BZX384-C3V3
+5V
IU49
3U97
6K8
IU06
220R
3U05
22K
3U19
100n
2U38
11
5
1213
14
7
10
4
8
9
1
16
2
15
3
6
Φ
7U00
NCP5422ADR2
GND-SIG
IU21
1K0
3U52
6K8
3U38
+2V5
4K7
3U16
IU26
IU31
IU29
IU30
1
K
2
R
+3V3
7U27
TS2431
3
A
5
6
4
3
7U28
PHD38N02LT
res
1%
7U01-2
SI4936ADY
3UA6
1K0
100p
2U09
3UA9
68R
IU28
+1V2
1K0
3U71
IU36
47K
3U35
2U21
3n3
GND-SIG
3U34
47K
GND-SIG
BZX384-C12
6U12
3K3
3U94
2U10
100n
FU03
3U36
1M0
FU06
IU65
4R7
3U26
1n0
2U29
VSW
ENABLE-3V3
ENABLE-1V2
SUPPLY-FAULT
POD-MODE
8204 000 8433.6
F_15400_016.eps
260405
B1A B1A

Table of Contents

Related product manuals