EasyManua.ls Logo

Philips BP2.2U - SSB: Main Tuner & OOB Tuner (B2 B)

Philips BP2.2U
151 pages
Print Icon
To Next Page IconTo Next Page
To Next Page IconTo Next Page
To Previous Page IconTo Previous Page
To Previous Page IconTo Previous Page
Loading...
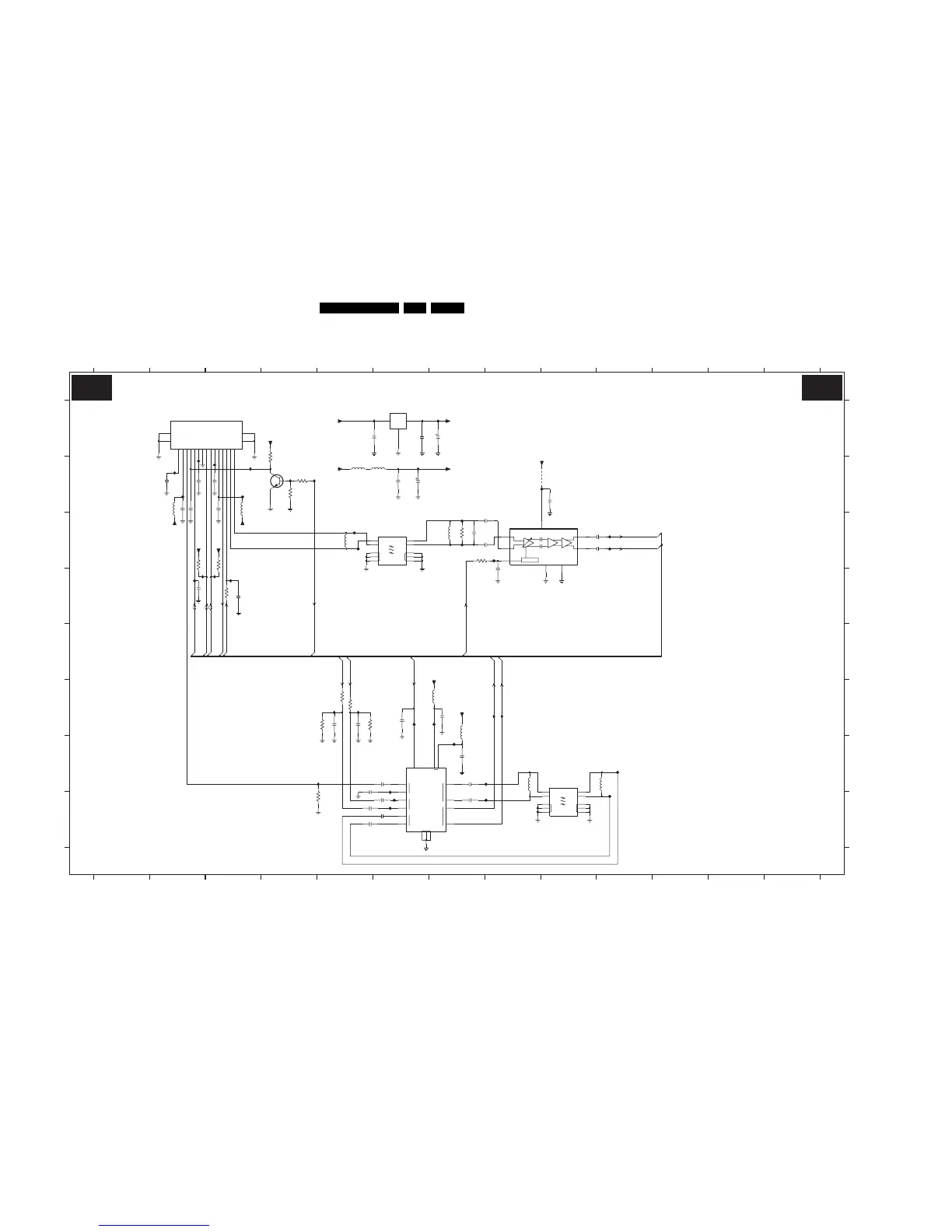
Circuit Diagrams and PWB Layouts
EN 45BP2.3U AA 7.
SSB: Main Tuner & OOB Tuner
AGC CONTROL
COM
OUTIN
IGND
O
GND GND
I
OGND
IGND
O
GND GND
I
OGND
OSCIN
MIXOUT
AMPIN
AGCIN
AMPOUT
2
VCC
GND
VAGC
1
1
1
1
2
1
22
2
RES
RES
AT49 H6
F
G
H
1T04 A2
1T41 C6
1T44 G9
2T01 B2
2T02 D3
2T04 C7
2T05 F5
2T06 F5
2T07 G7
2T08 A7
2T09 B2
2T10 F6
12345678910111213
12345678910111213
A
B
C
D
E
F
G
H
A
B
C
D
E
2T11 D2
2T12 F7
2T13 B2
2T14 G6
2T15 G5
2T16 H6
2T17 A5
2T18 A6
2T19 H7
2T20 B3
2T21 H6
2T23 H5
2T24 B6
RES
2T25 B6
2T27 H5
2T28 G7
2T35 B2
2T43 B9
2T45 C8
2T48 C10
2T51 C8
MAIN DIG TUNER C0
2T53 C10
2T58 B3
2T98 D8
3T02 D3
3T03 F5
3T04 F5
3T05 F5
3T06 C7
3T07 C7
3T08 F5
3T09 B4
3T10 C2
3T11 C3
3T12 B4
3T13 B4
RES
RES
RES
3T25 H4
5T42 C5
5T44 G9
5T45 B3
5T46 G8
5T47 F6
5T48 F7
5T49 B2
5T50 B5
5T51 B6
5T53 C7
7T00 A6
7T12 B4
7T41 C8
7T43 G6
9T04 B8
AT41 C7
AT43 C7
AT44 G10
AT45 H10
AT46 G8
AT47 H8
AT48 H6
MAIN TUNER + OOB TUNER
AT51 C10
AT52 C10
AT56 C5
AT57 C5
FT01 B3
FT02 F6
FT03 G7
FT04 D3
FT05 F6
IT28 B2
IT29 B3
IT30 G5FT06 D2
FT07 A7
FT08 B2
FT09 C8
FT41 B8
IT00 A6
IT01 F5
IT02 F5
IT03 G6
IT04 D2
IT05 D3
IT06 B3
RES
IT07 F8
IT08 F8
IT09 B4
IT25 B6
IT26 B4
IT27 B2
IT30
IT28
IT29
IT27
IT25
IT26
10n
2T09
AT48
AT43
2T21
10n
BC847BW
7T12
+5VTUN
4K7
3T13
4K7
3T09
IT02
10n
2T15
4K7
3T12
2T12
1u0
FT09
AT41
2T98
10n
2T10
100n
+5V
+5V-OOB
3T02
1K0
1u8
2 INPUT1
3
INPUT2
7OUTPUT1
6
OUTPUT2
4 VAGC
VCC
1
5T46
UPC3218GV
7T41
8
GND1
5
GND2
2T14
10n
AT47
10n
2T16
+5V-OOB
3T04
10R
+5V-OOB
100n
2T24
2T25
330u 6.3V
2T43
1u0
2T51
10n
FT07
100n
2T02
IT03
3T25
75R
10
NC
3
OOB
5
RF_GC
8
SCL
9
SDA
VTUN
11
4
FM-T
14
IF_1
15
IF_2
IF_AGC
13
12
IF_OUT
16
17
18
19
1T04
TD1316O/FGHP
TUNER
2
+5V
7
AS
1
DC_PWR
DNU
6
1u8
IT06
5T53
10n
2T20
2T13
10n
100n
5T45
2T01
FT41
+5VTUN
10V
2T11
10n
2T08
10u
5T51
9T04
10n
2T23
FT02
10n
2T28
IT08IT07
5T42
1u8
1
32
7T00
LD1117DT
2T19
10n
2T53
10n
100n
2T58
+5VTUN
IT01
+5VTUN
AT57
10n
2p2
2T48
2T45
10n
2T04
FT03
4K7
3T11
100n
2T18
+8V6-SW
5T50
9
11 13
1
14
7
8
44M
1T44
X7351P
24
6
2T27
10n
5T48
FT04
AT46
AT56
3K9
3T07
1u8
5T44
FT05
3T10
4K7
AT49
82p
2T06
2T05
82p
2T17
100n
AT51
IT09
100n
2T35
+5V-OOB
FT08
5T49
FT01
AT45
4
11
14
15
165
6
3
7
8
CATV
OUT OF BAND
UPC3220GR
7T43
1
2
13
12
10
9
8
+5VTUN
TUNER
Φ
1T41
2
4
69
11 13
1
14
7
X7351P
44M
3T03
10R
5T47
+5VTUN
3T06
1K0
IT05
10R
3T05
AT52
AT44
3T08
10R
IT00
2T07
1u0
FT06
IT04
TUNERAGC-MON
I2C-SDA-TUNER-MAINNXT
FS-OUTN
FM-TRAP
FDC-AGC
FAT-IF-AGC-MAIN
I2C-SCL-TUNER-MAINNXT
FDC-ADC-INN
IF-TER2
FAT-ADC-INN-MAIN
FAT-ADC-INP-MAIN
AUX-IF-AGC-MAIN
FS-OUTP
FDC-ADC-INP
8204 000 8426.4
F_15400_020.eps
260405
B2B B2B

Table of Contents

Related product manuals