EasyManua.ls Logo

Philips BP2.2U - SSB: POD: TS Buffering (B10 D)

Philips BP2.2U
151 pages
Print Icon
To Next Page IconTo Next Page
To Next Page IconTo Next Page
To Previous Page IconTo Previous Page
To Previous Page IconTo Previous Page
Loading...
EN 74BP2.3U AA 7.
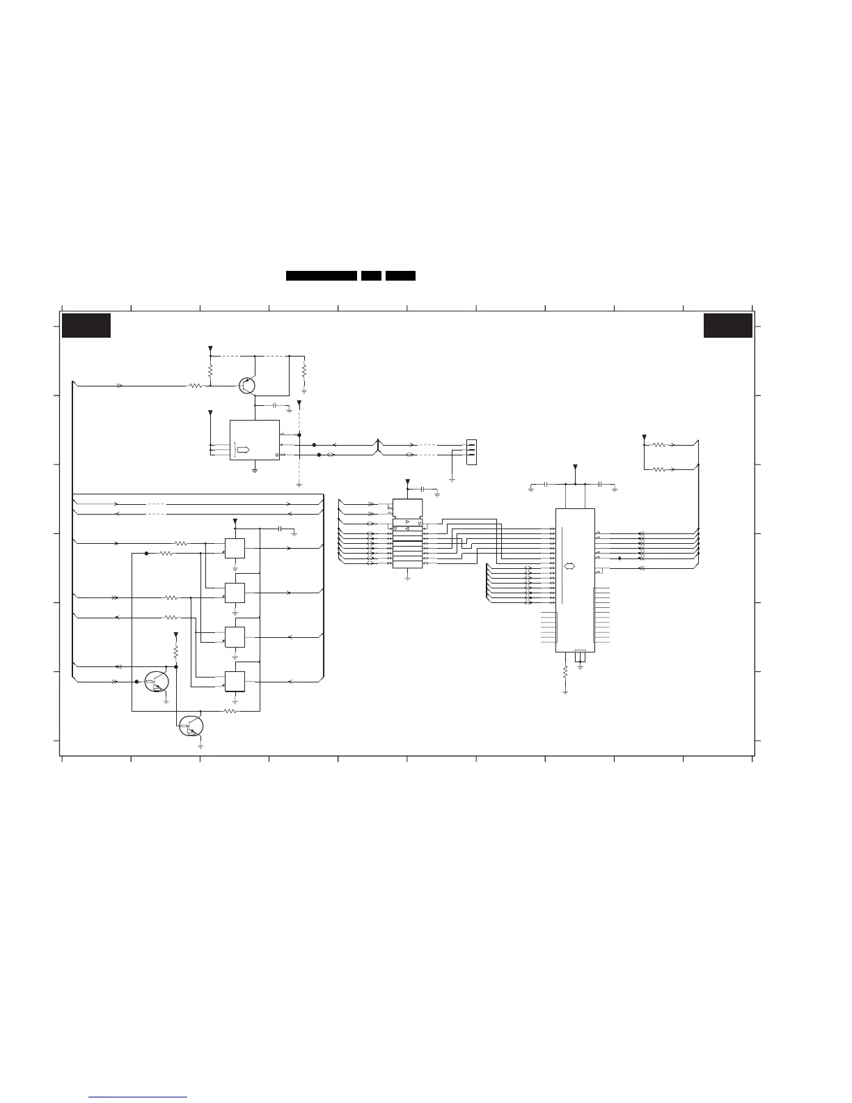
Circuit Diagrams and PWB Layouts
SSB: POD: TS Buffering
SCL
ADR
0
1
2 SDA
WC
G3
1
2
3EN2
3EN1
1
X1
1
1
X1
1
1
X1
1
0
1
2
3
4
5
6
7
CLE
ALE
CE
RE
WE
VCCQ
NC
8
9
10
11
12
13
14
15
I/O
BY
RY
GND
WP
VCC
VSS
NC
1
X1
1
7P15-4 E3
7P16 F2
IP16 D9
FP34 B4
FP35 B4
9P16 B4
9P17 C4
9P18 C2
9P19 C2
9P39 B6
9P40 B6
9P41 A3
9P42 A4
FP22 B4
FP23 D2
FP32 E2
FP33 F2
C
D
3P80 B9
3P81 C9
3P82 F8
3P83 D2
3P84 D2
3P85 D2
3P86 E2
3P88 E2
7P14 B3
7P15-1 C3
7P15-2 D3
7P15-3 E3
45
RES
RES
RES
7P17 F3
7P18 A3
7P80 C8
7P81 C5
78910
A
B
C
D
E
F
A
B
F
1P02 B6
2P34 B4
2P35 C4
2P80 C8
2P81 C8
2P82 C6
3P36 A3
3P37 A4
3P38 A2
2345678910
123
M24C64
MAIN NVM
FOR FACTORY USE
6
E
3P57 F3
RES
POD: TS BUFFERING
RES
RES
1
3P86
100R
3P57
10K
1
2
3
6
5
84
7
7P14
EEPROM
Φ
(8Kx8)
3
7P17
PDTC114EU
7P15-2
74HC4066PW
5
7
14
4
3P80
10K
3P81
2K2
+3V3
+3V3
3P82 10K
+3V3
15
14
13
12
11
1
10
19
20
3
4
5
6
7
8
9
18
17
16
7P81
74LVC245A
2
3P84
100R
+3V3-STANDBY
+5V2-STBY
+3V3-STANDBY
FP32
3P37
100K
9P429P41
10K
3P36
3P38
10K
9P40
9P39
+5V2-STBY
3P88
10K
714
11
10
7P15-4
74HC4066PW
12
100n
2P34
9
7P15-3
74HC4066PW
6
714
8
7P16
PDTC114EU
FP23
100n
2P82
9P19
25
48
18
19
+3V3-STANDBY
5
10
11
14
15
8
7
12
3713
22
23
24
34
35
36
38
39
2
3
4
32
40
42
44
46
27
29
1
20
21
16
6
26
28
31
33
41
43
45
47
30
Φ
EEPROM
(32Mx16)
TC58DVM92F1TGI0
7P80
17
9
9P17
IP16
9P16
FP22
9P18
FP33
13
714
1
2
100n
2P35
7P15-1
74HC4066PW
100n
2P80
100R
3P83
1P02
B3B-PH-SM4-TBT(LF)
1
2
3
45
100R
3P85
BC857BW
7P18
FP35
FP34
RESET-MAIN-NVM
2P81
100n
RXD-VIPER
TXD-UP
RXD RXD-VIPER
TXD TXD-VIPER
RXD-UP
UART-SWITCH
SCL-UP-VIP
SDA-UP-VIP
STBY-WP-NAND-FLASH
XIO-RWn_WEn
XIO-ACK
XIO-AS_REn
XIO-A17_D9
XIO-A16_D8
XIO-A23_D15
XIO-A22_D14
XIO-A21_D13
XIO-A20_D12
XIO-A19_D11
XIO-A18_D10
XIO-A0_CLE
XIO-SEL0
XIO-A1_ALE
XIO-ACK
XIO-SEL0
XIO-AS_REn
XIO-SEL0
PCI-AD24
PCI-AD25
PCI-AD26
PCI-AD30
PCI-AD28
PCI-AD29
PCI-AD27
PCI-AD31
SCL-UP-VIP
SDA-UP-VIP
UART-SWITCHn
RXD
UART-SWITCHn
TXD
TXD-VIPER
8204 000 8434.6
B10D B10D
F_15400_050.eps
260405

Table of Contents

Related product manuals