EasyManua.ls Logo

Philips FM24 - Page 44

Philips FM24
122 pages
Print Icon
To Next Page IconTo Next Page
To Next Page IconTo Next Page
To Previous Page IconTo Previous Page
To Previous Page IconTo Previous Page
Loading...
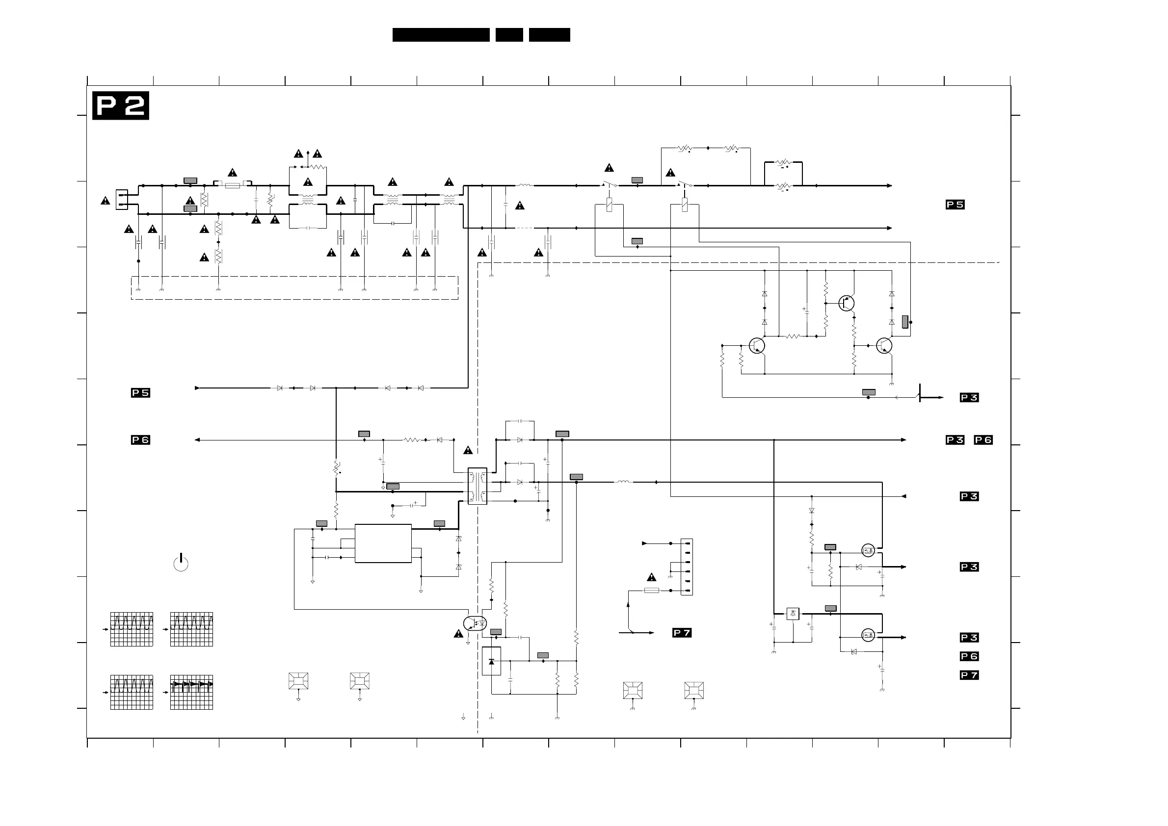
44FM24 7.
Electrical Diagrams and PWB Layouts
Power Supply Panel: Filter Standby
t
+t
V
+t
+t
t
VR37
600V
6W7
1%
VR37
ERC12
600V
6W7
1MA/495V
1%
600V
I514 I7
I515 G11
I516 G12
I517 H12
I518 E6
I519 F9
VR25
MFLM PR02
I421 B6
I422 B6
I501 E4
I502 E5
I503 E5
I504 E5
CN6
D
I505 E6
I506 E7
I507 F7
I508 G4
I509 G4
I510 G6
I511 G6
I512 H7
I513 H7
F509 G9
F510 H9
I400 A4
I401 A3
I402 A5
I403 B4
I404 A6
I405 B6
I406 A9
I407 B9
I408 A10
I409 A10
I410 A12
I411 C11
RES
PROTECTION
VCC
MAINS
L 250V
1V3
PROTECTION
5V
I412 D10
I413 C12
I414 D12
I415 D12
I416 D12
I417 C13
I418 B2
I419 A8
I420 B8
F405 B2
F406 B1
F407 B2
F408 B2
F409 B3
F410 B3
F411 D13
F412 E12
F500 F5
F501 F5
F502 E8
F503 F8
F504 F7
F505 F7
7465 C12
7470 D13
7500 G5
7501 H6
7502 I7
7530 G12
7531 H12
7540 H11
9403 B7
F400 C1
F401 B1
F402 B2
F403 B2
F404 B2
FROM
3V2
5401 B4
5402 B5
5403 B7
5404 B6
5500 F6
5505 F9
6460 D11
6461 C11
6470 D13
6471 C13
6501 G6
6502 G6
6503 E6
6504 E7
SWITCH
H 250V
FROM
PRECONDITIONER
2V2
GROUND
FROM
GROUND
SWITCH
6505 F7
6510 E3
6511 E4
6512 E5
6513 E6
6520 F11
6530 G12
6531 I12
7460 D11
3452 A11
3453 A11
3460 D10
3461 D10
3463 D11
3465 D12
3467 C12
3469 D12
3470 D12
3501 H7
3502 H7
3503 I8
3504 I8
3505 H8
GROUND
MAINS
NC
1V3
GROUND
NC
COLD
CONTROL
3V3
S
PDP
STANDBY SUPPLY
HOT
3506 F4
3507 F4
3508 E5
3520 G11
3530 G12
2503 F5
2504 G4
2505 F5
2507 E7
2508 F7
2509 F7
2510 F7
2511 H7
2512 I7
2513 G4
2530 G11
2532 G12
2533 I12
2540 H11
INPUT
LLC_SUPPLY
TO
(DISPLAY)
S
COLD
PROTECTION
TO
AUX_SUPPLY
PROTECTION
2541 H11
3400 B3
3401 B2
3402 B2
3403 C2
3404 A4
3450 A10
3451 A10
1404 I9
1405 I10
1450 B8
1460 B10
2400 B3
2401 B5
2402 B2
2403 B1
2404 B4
2405 B4
2406 B5
2407 B5
2408 B7
2409 B7
VPR2
NORMAL . .
6V1
LLC_SUPPLY
RES
(314V)
AUX_SUPPLY
MEASURED DC-VOLTAGES
2410 B7
2411 B5
2412 B6
2465 C11
13 14
A
B
C
D
E
F
G
H
I
A
B
C
RES
STANDBY (. . .)
TO
COLD
(6V2)
LLC_SUPPLY
FILTER_STBY
5V
1401 H9
1402 A4
8V1
3V3
3456
G
PROTECTION
8V1
PRECONDITIONER
789101112
34567891011121314
12
VR37
FROM
GROUND
TO
D
(1V3)
TO
95-264Vac
410V
5V
D
E
F
G
H
I
0201 I5
0203 I4
0306 G9
0308 B1
1400 B3
G
TO
GND
3V3
8V7
12
10R
3508
HOT
FILTER
RELAY CONTROL
4K7
3503
I510
MECHPART
0201
400V_HOT
25
2513
100n
F400
BYG10
6512
SOURCE3
SOURCE4
7
SOURCE5
8
7465
BC857BW
7500
TNY256
BYPASS
1
DRAIN
5
ENABLE
4
SOURCE1
2
SOURCE2
36
1
2
3
4
5
6
PH-B
0306
3470
10K
I415
7470
BC817-25W(COL)
3452
B57464
BZT03-C
10K
3467
6502
I505
2407
470p
SHIELDING 3.3
1405
2465
100u
25
250
I422
3403
4M7
6503
RS1G
470p
2411
250
I410
I511
BAS316
6470
5401
CU28D3
12
34
232266293
3450
3400
2322595
470p
2408
250
9403
250
2409
470p
19181
1400
T6.3A
470R
3502
3504
9
I413
CE165T
5500
1
2
3
46
7
8
100u
2533
25
F500
F404
I501
+5V_STBY_SW
I514
100K
3530
2400
470n
4K7
3460
BAS316
6520
I411
5403
150u
I409
25
100u
2541
16
2511
100n
B2P3-VH
0308
1
2
232266293
BZX384-C18
6530
2M2
3507
3506
I414
470p
2405
250
I504
6513
BYG10
1K5
3505
F401
10R
3520
2
1
3
BZX384-C18
6531
I402
TL431CZ
7502
I502 I503
232266293
3451
DSP
1402
3404
220R
19372
1401
T2A
4
450
47u
2503
I517
I412
5402
CU28D3
12
3
3465
10K
6510
BYG10
I420
I512
100u
2532
25
6460
BAS316
351m
2505
I405
I513
7530
STD16NE06L
F412
2403
250
F410
F501
F406
100R
3501
F409
I506
+3V3_STBY_SW
50
6471
BAS316
+9V_STBY
100p
2507
3463
10K
I516
3401
1M
I419
100n
2512
16
0203
HEATSINK
I400
F405
F411
100-230VAC2
F407
1000
2406
47p
BAS316
6461
10K
3461
7460
BC817-25W(COL)
I406
I515
I403
I401
F510
I417
BZT03-C
6501
100-230VAC1
I408
I507
F408
I404
25V_HOT
I407
7540
L7805
GND
IN OUT
I518
F402
+9V_STBY_SW
I416
2410
470n
161m
2510
34
250
2412
470p
CU28D3
5404
12
6504
RS1G
2401
470n
1404
SHIELDING 3.3
3469
4K7
2530
10u
100
BYG10
6511
50
2509
100p
7531
STD16NE06L
SDT
1460
21
34
F505
6505
SB340
1450
21
34
F403
SDT
I509
50
2504
1n
I418
I421
+3V3_STBY_SW
2540
100u
25
I519
F502
39u
5505
4M7
3402
F509
TCET1102
7501
1
4
32
I508
2508
4u7
50
47p
2404
1000
B57464
3453
250
2402
F503
AC3
GROUND GROUND
AC5
AC5
F504
AC2
SUPPLY_ON
VCC
AC2
AC2
AC3
GROUND GROUND
AC5
GROUND GROUND GROUND GROUNDGROUND
AC3
AC4
AC3
CL 26532055_002.eps
010502
F510
200 V / div DC
10µs / div
I406
100 V / div DC
10ms / div
F404
I504 = 19V
I508 = 1V3
I513 = 2V2
I514 = 2V5
I516 = 8V1
I517 = 5V
F500 = 380V
F412 = 4V2
F411 = 0V
I407 = 0V
F502 = 8V7
F503 = 3V3
100V / div DC
10ms / div
F407
100V / div DC
10ms / div
www.freeservicemanuals.info
31/8/2014
Digitized in Heiloo, Holland

Related product manuals