EasyManua.ls Logo

Philips PM2517X - Display; Power Supply

Philips PM2517X
104 pages
Print Icon
To Next Page IconTo Next Page
To Next Page IconTo Next Page
To Previous Page IconTo Previous Page
To Previous Page IconTo Previous Page
Loading...
18
3.2.5.
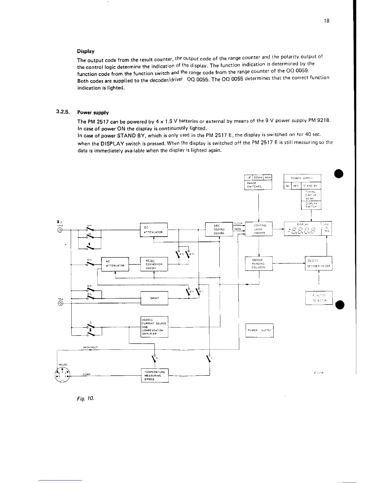
Display
The output
code
from the
result counter,
the
output
code of
the
range
counter
and
the
polarity
output
of
the control
logic determine
the
indication
o{
the
display
The
function
indication
is
determined
by the
function code
from the
functaon.*11"5
6pd
lhe
range
code
from
the
range
counter
of the Oo
0059'
Both
codes are
supplied
to the
dec oderldriuer
OO
0055.
The
OO
0055
determines
that the
correct
function
indication is lighted.
Power
supply
The
PM
2517 can
be
powered
by
4 x 1.5
V
batteries
or exrernal
by
means
of
the
I v
power
supply
Plvl 9218.
In
case of
power
ON
the display
is
continuously
lighted.
In
case
of
power
STAND
BY, which
is only
used
in
the
Plvl
2517
E,
the display
is
switched
on for
40
sec
when
the
DlSpLAy switch
is
pressed.
When
the
display
is switched
off
the
PM 2517
E is
still
measuring so the
data is immediately
available
when the
display
is
lighted
again.
Fig.
1O.

Table of Contents

Related product manuals