EasyManua.ls Logo

Philips PM2517X - 3.4.6. OO 0061 AC to DC convertor; 3.4.6.1. General

Philips PM2517X
104 pages
Print Icon
To Next Page IconTo Next Page
To Next Page IconTo Next Page
To Previous Page IconTo Previous Page
To Previous Page IconTo Previous Page
Loading...
48
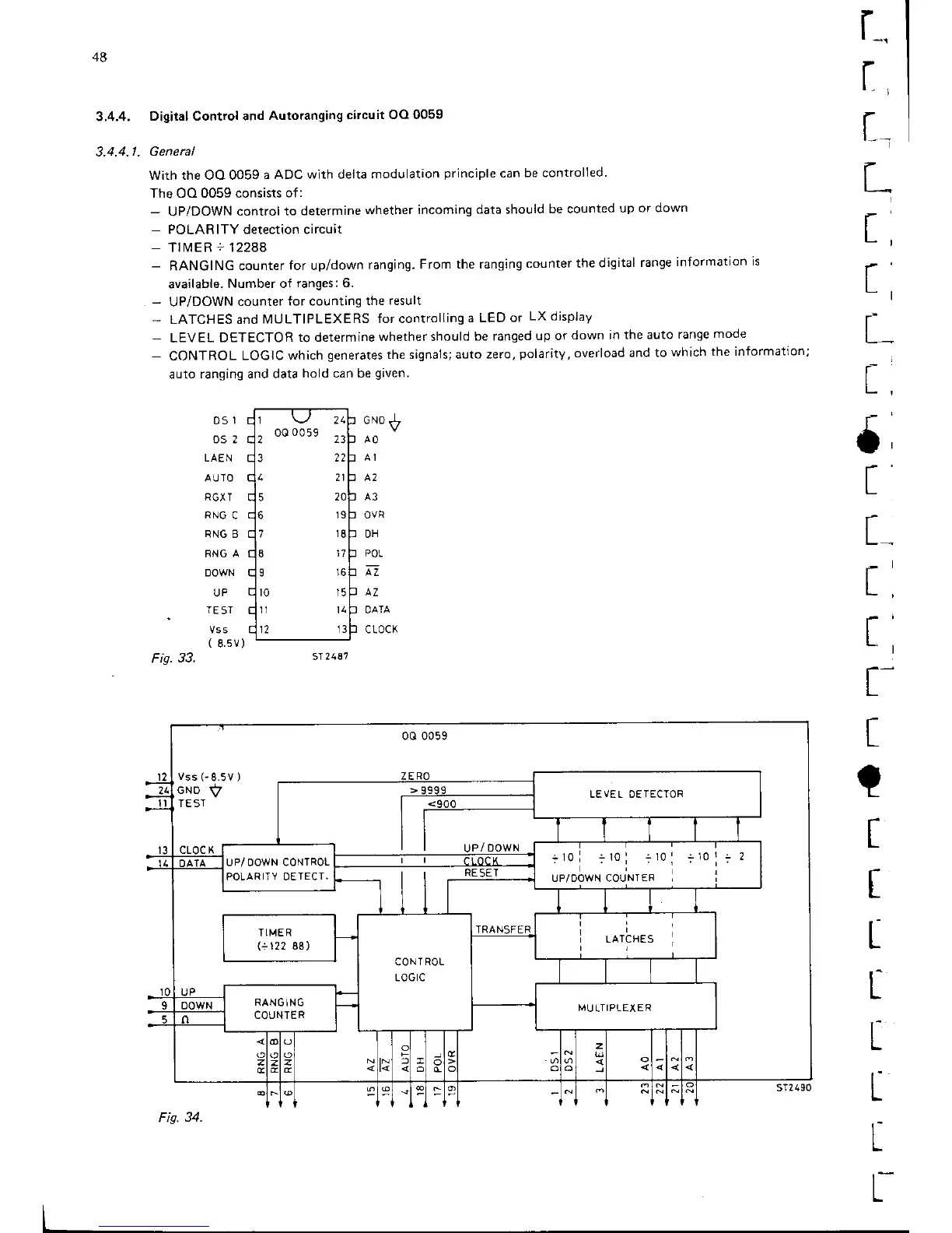
3.4.4.
Digital Control and
Autoranging
cilcuit OO 0059
3.4.4.1.
General
with the oo oo59
a ADc
with delta
modulation
principle
can
be controlled.
The OO 0059 consists
of:
-
UP/DOWN
control
to determine
whether incoming
data should
be counted
up
or down
-
POLAR ITY detection circuit
-
T|\4
E R
+
12288
-
RANGING counter
for up/down
ranging.
From the ranging
counter the
digital
range
information
is
availabls.
Number of
ranges: 6.
-
UP/DOWN
counter
for counting
the result
-
LATCHES and
IMULTIPLEXERS
for controlling
a LED
or
LX display
-
LEVEL
DETECTOR
to determine
whether should
be ranged
up or
down in
the auto
range
mode
-
CONTROL
LOGIC
which
generates
the signals; auto
zero,
polarity,
overload
and to
which
the information;
auto
ranging and data
hold can be
given.
r-.
r,
r
r--
t_
L,
t,
t_
t
5,
t
t_
t,
t;
t-
r
L
?
t
t
L
L
t
t_
L
L_
DS
1
052
LÄEN
AUTO
RGXT
RNG
C
RNG 8
RNG
A
DOWN
.
TEST
(
8.5V
)
Fig.33.
GNO
!t
AO
ovR
DH
POL
OATA
CLOCK
0a
00
59
23
22
21
19
18
17
16
15
l3
vss
(-8.5V
)
GNo
V
TEST
:loi
:l0i
ir0i
UP/ DOWN CONTROL
POLARITY OETECT.
MU
LTIPL
EX E
R
RAN
G
ING
COUNTER
Fis.
34.

Table of Contents

Related product manuals