EasyManua.ls Logo

Philips Q549.2E LA - SSB: PNX5100 - Debug

Philips Q549.2E LA
141 pages
Print Icon
To Next Page IconTo Next Page
To Next Page IconTo Next Page
To Previous Page IconTo Previous Page
To Previous Page IconTo Previous Page
Loading...
EN 110Q549.2E LA 10.
Circuit Diagrams and PWB Layouts
2009-May-08
SSB: PNX5100 - Display-Interfacing
EN
GPIO
0
12
11
10
9
8
7
6
5
4
3
2
1
13
14
15
C
L
IC03 G3
ICG1 C4
ICG2 C2
ICG3 C2
ICG4 D4
ICG5 D4
ICG6 D5
ICG7 E2
ICG8 E2
32V
32V
ICGA E2
ICGH H12
ICGK G13
ICGM G12
ICGN G11
ICGP G11
ICGR G10
9CG1 B3
E
9CG4 H13
9CG7 G10
9CG8 G10
ICGV B8
ICGW C3
ICHA B8
ICHB B8
ICH1 G9
ICH2 G9
ICH3 H9
ICH4 A8
ICH5 D10
ICH6 D11
ICH7 D11
ICH8 D12
ICH9 D13
FCG1 B5
FCG2 E6
FCG3 E6
FCG4 E6
FCG5 E6
FCG6 H13
FCG7 E13
FCG8 B4
IC01 E3
3CHG E13
WIRE BRIDGE
ICG9 E2
F
6
IC02 G3
K
G
8
15
RES
7CG4 H12
7CG5 G12
7CG6-1 G13
7CG6-2 G13
7CG8 B12
7CH0 D12
7CH1-1 D13
7CH1-2 D13
9CG0 B3
3CGG E3
209
N
K
13
9CG9 H10
9CH0 E13
BCG0 E6
BCG1 E6
ICGY B12
ICGZ B8
All rights reserved. Reproduction in whole or in parts
is prohibited without the written consent of the copyright
BCG2 E6
BCG3 E6
BCG5 A5
BCG6 B5
FCG0 A5
3CH7 C2
3CH8 D11
3CH9 D11
3CHA D13
3CHB D12
3CHC D11
3CHD D11
3CHE E11
3CHF E12
2CGD G11
1
6
RESERVED
19
11
O
5
5CG2 B4
5CG3 B4
6CG0 C3
6CG2 C5
7C00-3 A9
7C03 G4
7CG0 B2
7CG1 C3
7CG2 C4
3CG0-4 C3
3CG1 C2
3CG5 D4
3CG6 E5
3CG7 E5
3CG8 E5
3CG9 E5
3CGA E3
3CGF E3
C
3
7
M
B
3CGH E3
3CGJ E3
3CGN H11
3CGP H12
H
3CGT G11
3CGV G13
3CGZ B12
3CH0 B12
3CH1 B12
3CH2 C4
3CH3 G11
3CH4 H11
3CH5 G11
2CG2 C4
2CG3 C2
2CG4 D5
2CG5 F5
2CG6 F5
2CG7 F5
2CG8 F5
2CGB H12
2CGC H12
11
owner.
E
D
18
14
4
5CG0 A4
5CG1 A4
2CH1 E12
3C37 G3
3C38 G3
3C39 G3
3C42 G9
3C43 A7
3C44 B8
3CG0-2 D5
3CG0-3 D5
C
D
E
F
G
H
I
A
B
9
CAPACITOR OR
10
12 13
NOTE : CAN BE
3CGR H13
3CGS G12
N
L
M
18
P
G
C
2CG1 B5
2345678910
2CG0 A5
J J
152
10
16
2CH0 E11
O
RES
RES
12 13 14
A
B
17
12345678
9
87
5
C
12
D
A
I
14
F
P
1
10 11 12 13 14
1
17
I
D
E
F
G
H
I
1C01 A5
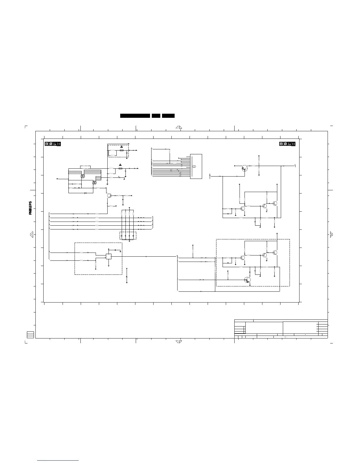
PNX5100 : DISPLAY-INTERFACING
VDISP-SWITCH
1C02 B5
2C03 H5
2C04 G4
2
2043
B
A
9161
11
H
7CG5
1
3
2
+VDISP
RES
BC847BW
2CGC
1u0
RES
47R
3CG1
ICH4
1K0
3CGR
1
3
2
BCG0
7CH0
BC847BW
100p
2CG5
ICGA
T3.0A
1C01
+3V3
FCG0
BC847BPN(COL)
7CG6-2
5
3
4
2
6
1
+12VD
7CH1-1
BC847BPN(COL)
3CGZ
10K
+3V3
ICG3
RES
10K
3CH1
9CG7
RES
10K
3CH8
RES
3CH4
10K
ICH5
FCG2
4K7
1C02
3.0A T
RES
3CH5
3CG8
RES
RES
9CG4
47R
ICGP
7CG1
SI3441BDV
3C38
47R
ICGM
ICH9
100n
2CG1
ICG8
BCG2
4K7
3CHC
RES
15K
3CHF
RES
FCG5
RES
1u0
2CH1
3CGG
47R RES
47R
3CGH
RES
9CH0
RES
220u 25V
2C03
ICGV
5CG2
30R
4
1u0
2CGB
7CH1-2
BC847BPN(COL)
5
3
3CGF
3CG0-2
47K
27
RES47R 1K0
3CHE
RES
FCG1
2
6
1
BC847BPN(COL)
7CG6-1
ICH3
IC02
ICHB
9CG9
ICH8
ICG2
2CG6
100p
BCG3
2CG2
22u
RES
ICGH
47R
3C37
10K
3C39
9CG8
47R
RES
RES
3CG6
ICGR
47K
3CHA
FCG4
ICH1
5
4
+3V3
7C03
2
3
1
470p
2CGD
74LVC1G125GW
RES
6CG2
ICG4
BCG1
LTST-C190KGKT
+3V3
ICH2
BCG6
470K
+3V3
3CGT
10K
3C42
+12VD
ICG6
ICH6
ICG1
12K
3CHB
9CG0
5CG1
RES
30R
3CG5
4K7
7CG4
PDTC114EU
BCG5
RES
RES
3CG9
10K
2CH0
470p
ICGK
ICGY
1u0
2CG3
+3V3F
100R
3CGA
2CG0
3CGS
470K
100n
ICHA
RES
RES
3CGP
15K
2K2
IC01
3CHD
RES
54
IC03
47K
3CG0-4
30R
5CG0
2K2
3CH2
RES
+VDISP1
FCG7
9CG1
ICGN
3CHG
1K0
ICG9
47K
3CG0-3
36
100n
2C04
C26
B25
B26
A26
A25
A24
AE24
AF25
B24
A23
B23
C23
B22
C22
AF26
C24
GPIO
Φ
PNX5100E
7C00-3
RES
7CG0
SI4835DDY
FCG8
2CG4
100n
FCG6
PDTA114EU
7CG8
27K
3CH9
+12VD
3CG7
ICG7
ICGZ
RES47R
100R
3C43
100R
3C44
+3V3
3CGJ
47R RES
3CH7
47K
+3V3
BZX384-C5V6
6CG0
47K
CHECK
8204 000 8928
TV543 R2 LDIPNX
DISPLAY INTERF PNX5100
A2130
3CGV
32008-10-10
Maelegheer Ingrid
2008-11-21
ROYAL PHILIPS ELECTRONICS N.V. 2008
89
SETNAMECHN
CLASS_NO
SUPERS.
2
NAME
DATE
5CG3
30R
100R
3CH0
+VDISP2
FCG3
100p
2CG8
ICG5
ICGW
ICH7
10K
3CGN
100p
2CG7
+3V3
+3V3
1
3
2
+3V3
3CH3
BC847BW
7CG2
BACKLIGHT-CTRL
BACKLIGHT-PWM-ANA-SSB
BACKLIGHT-OUT2
2K2
RES
BACKLIGHT-BOOST
BACKLIGHT-CTRL
CTRL4-PNX5100
CTRL-DISP4
BACKLIGHT-OUT
CTRL-DISP4
CTRL-DISP3
CTRL-DISP2
CTRL4-PNX5100
CTRL3-PNX5100
CTRL2-PNX5100
CTRL1-PNX5100
LCD-PWR-ON
BACKLIGHT-PWM-ANA-DISP
BACKLIGHT-CTRL
BOOST-CTRL
BACKLIGHT-CONTROL-FPGA-IN
FAN-CTRL-1
FAN-CTRL-2
BOOST-CTRL
CTRL1-PNX5100 CTRL-DISP1
CTRL2-PNX5100
CTRL3-PNX5100
CTRL4-PNX5100
LCD-PWR-ON
BACKLIGHT-PWM-ANA-SSB
18310_525_090302.eps
090302

Table of Contents

Related product manuals