EasyManua.ls Logo

Philips Q549.2E LA - SSB: Analogue Externals C

Philips Q549.2E LA
141 pages
Print Icon
To Next Page IconTo Next Page
To Next Page IconTo Next Page
To Previous Page IconTo Previous Page
To Previous Page IconTo Previous Page
Loading...
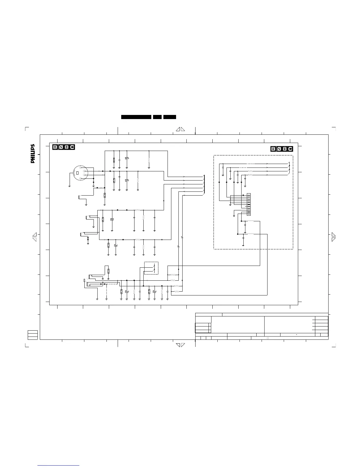
Circuit Diagrams and PWB Layouts
EN 129Q549.2E LA 10.
2009-May-08
SSB: Analogue Externals C
C
CVBS
SVHS IN
I
9
H
FE91 D7
FE98 B8
IE58 C4
IE66 E5
9E14 A8
9E32 F2
9E34 F3
BE20 A3
12
F
C
IE72 D5
LEFT
J
5
B
BE21 B2
2E55 B7
All rights reserved. Reproduction in whole or in parts
BE22 B2
BE23 C3
BE24 D2
BE25 D2
BE26 F3
FE25 F5
FE56 A2
FE86 B7
FE21 B2
FE22 C3
FE23 D3
FE24 F3
3E77 D4
3E78 D4
3E79 F3
3E80 F4
FE87 B7
1
A
G
HEADPHONE
64
C
1005 B2
A
3E81 C4
3EC0 B8
3EC1 A8
3
E
FE88 B7
FE89 B8
FE90 C8
6E43 D3
6E44 F4
6E45 F3
9E13 A8
2E40 F5
2E42 C3
2E45 D5
2E53 A7
2
H
IE67 F5
64
E
2E54 A7
5
2E56 B8
2E57 D8
2E58 D8
2E80 D5
BE27 F4
BE28 F2
FE17 D2
FE18 F2
FE20 B2
3E26-4 F5
3E74 A4
3E75 B4
3E76 C4
A
B
C
D
RIGHT
1311
D
10
Y/CVBS
95
1006 B3
1007 A3
1010 F4
1E11-1 C1
5E00 C8
5E01 D8
6E20 A3
6E21 C3
6E41 B3
2E35 A3
2E36 B3
2E37 D3
2E39 F4
E
F
1000 F3
1002 E2
1003 D3
7
D
FOR ITV
12
LEFT
TO SIDE I/O
123 6789
2E97 C4
2E98 D4
3E26-1 E5
3E26-2 F5
3E26-3 F5
6789
10
RESERVED
C
3
FOR ITV
J
is prohibited without the written consent of the copyright
RIGHT
813
7
21
1E11-2 C2
1E11-3 D2
1E14 B1
1E15 E2
1M36 B8
E
F
A
B
C
D
8
ANALOGUE EXTERNALS C
I
1004 C2
G
owner.
F
IE66
4
B
12345
11
4V100u
2E80
FE20
1006
V_NOM
12V
FE23
6E41
CDS4C12GTA
BE25
RES
2E97
100p
2E39
1n0
12V
9E14
8
CDS4C12GTA
6E44
1E11-3
RED
9
7
12V
9E32
CDS4C12GTA
6E20
2E36
100p
3E78
1K0
3E79
1K0
2E57
100p
IE58
2E98
BE21
RES
100p
FE22
9E34
V_NOM
3EC1
1007
100R
33R
27
IE67
FE88
3E26-2
100p
2E56
9E13
100R
3EC0
6
7
8
9
1
10
11
2
3
4
5
B11B-PH-K
1M36
1002
V_NOM
6
FE56
3E26-3
33R
3
BE28
FE89
30R
5E00
BE26
1000
V_NOM
3E76
100K
FE17
RES
45
FE25
3E26-4
33R
IE72
FE21
V_NOM
3E80
1K0
1010
2E37
1n0
FE87
100p
FE91
2E55
BE24
2E40
1n0
BE20
12V
CDS4C12GTA
6E21
RES
3E77
100K
FE98
3E81
1K0
30R
5E01
1n0
2E42
1004
V_NOM
100p
2E58
RES
3E74
75R
1
2
BE23
1E11-1
YELLOW
12V
BE22
CDS4C12GTA
6E45
5
1
3
4
2
1E14
MDC-013V1-B
100p
2E35
2E53
100p
18
3E26-1
33R
1003
V_NOM
6
4
5
FE24
1E11-2
WHITE
BE27
1005
V_NOM
6E43
CDS4C12GTA
12V
3
4
5
7
8
MSJ-035-10A B AG PPO
1
2
DATECHECK
8204 000 8930
TV543 R2 LDIPNX
ANA + SIDE I/O
A3130
1E15
RES
32008-10-10
Maelegheer Ingrid
2008-11-21
ROYAL PHILIPS ELECTRONICS N.V. 2007
2008-01-18
34
SETNAMECHN
CLASS_NO
SUPERS.
2
NAME
3E75
75R
FE18
2E45
100u 4V
100p
2E54
FE90
RC-IN
RC-OUT
FE86
AUDIO-IN5-L
AUDIO-IN5-R
FRONT-C
FRONT-Y_CVBS
AUDIO-IN5-L
AUDIO-IN5-R
AUDIO-HDPH-L-AP
AUDIO-HDPH-R-AP
FRONT-Y_CVBS
FRONT-C
18310_544_090303.eps
090303

Table of Contents

Related product manuals