EasyManua.ls Logo

Philips S37SD-YD02 - Page 50

Philips S37SD-YD02
77 pages
Print Icon
To Next Page IconTo Next Page
To Next Page IconTo Next Page
To Previous Page IconTo Previous Page
To Previous Page IconTo Previous Page
Loading...
Block Diagrams, Test Point Overview, and Waveforms
EN 50 SDI PDP6.
6.2.7 PSU 50" HD v3
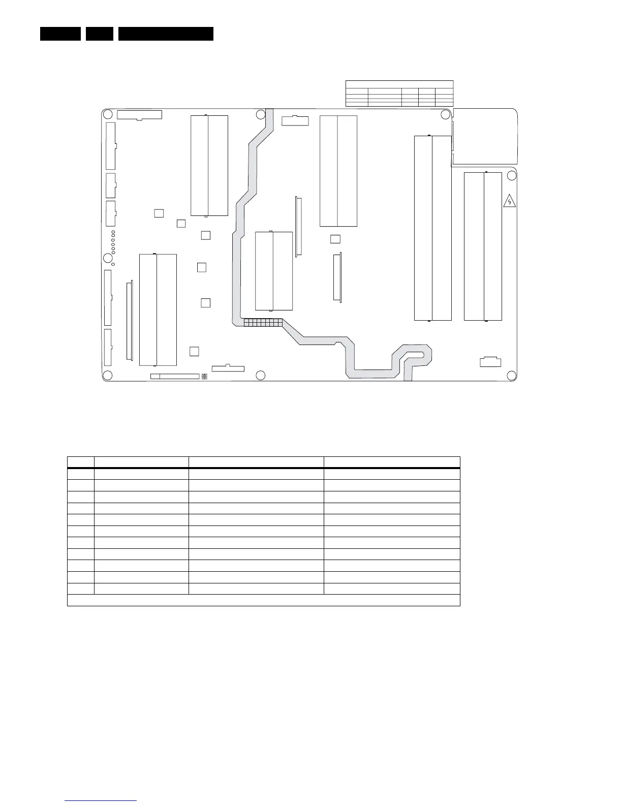
Figure 6-15 PSU layout
Table 6-7 Adjustment voltage level overview
VG
VS
VA
VR8005
VR8009
VR8004
SX
SY
CN8002
CN8003
D5VL
V6
GND
GND
GND
GND
V5
V5
V0
V5
V9
GND
GND
GND
GND
GND
GND
GND
GND
D6V
V6
Yscan
Vset
CN8006
VA
VA
VA
VA
BUFFER
1
CN8006
GND
D6V
D3V3
V6
V0
V0
+5V2
IV-2
CN8004
HJC8003
12V
GND
D5V_5W
GND
GND
8V8
+9V_STBY
GND
GND
POWER_OK
+5V_RELAY_IDZ
STAND_BY
1
IV-3
DC_PROT_IN
PIRO
GND
GND
GND
GND
THERMAL_DET
+5V2
1
CN8007
S/N
H8008
VR8007
D3V3
+5VSB
VR8208
VR8006
D5V
Vedj
Vuo
SL
GND
GND
GND
GND
D3V3
D3V3
VS_ON
CN8008
A55V CODE : LJ44-00065A
P5-503-PH
AC INPUT
N
I
L
CN8001
100-240V ~ 50/60Hz BA
WARNING
FOR CONTINUED PROTECTION AGAINST RISK OF FIRE,
REPLACE ONLY WITH SAME TYPE AND RATING OF FUSE.
CAUTION
H8001
TOP
H8002
PCB NAME
VER. NO.
SHEET
FILE NAME
P5-503-PHINZI
00M5510408191
1 OF 6
P5-503-PHINZ1 .PCB
DESIGN
CHECK
APPROVE
00MS5510408191
DIPPING
UL6500:E240806.UL60950:E166582
H8003
HOT (LIVE)
CN8009
DC_VCC
GND
GND
VPFC
IV - 1
COLD (ISOLATED)
H8005
COMP.SILK SCREEN
-P 1/6 -
H8004
PBA Rev HOT (LIVE)
COLD (ISOLATED)
ABCDEFGH
I
123456779
VR8001
VPFC
HC8001
DONGAH ELECOMM
No Output voltage (V) Voltage Setting (Normal Load) Output Voltage Variable Point
1 PFC 385V ± 2V 370V ~ 400V
2 VS 175V ± 1% 160V ~ 185V
3 VA 70V ± 1% 65V ~ 80V
4 VE 160V ± 2% 150V ~ 170V
5 VSET 173V ± 2% 160V ~ 180V
6 VSCAN -60V ± 2% -55V ~ -75V
7 D5VL 5.2V ± 2% 4.0V ~ 6.0V
8 D3V3 3.3V ± 2% 2.8V ~ 4.0V
9 VCC 15V ± 5% Fixed
10 5V2 5.4V ± 3% 3.5V ~ 6.0V
11 9V_Standby 8.5V ~ 9.5V Fixed
Check voltage label on the PDP for correct values.

Related product manuals