EasyManua.ls Logo

Pilous ARG 290 Plus - 4. Installation; 4.1. Space Requirements

Default Icon
38 pages
Print Icon
To Next Page IconTo Next Page
To Next Page IconTo Next Page
To Previous Page IconTo Previous Page
To Previous Page IconTo Previous Page
Loading...
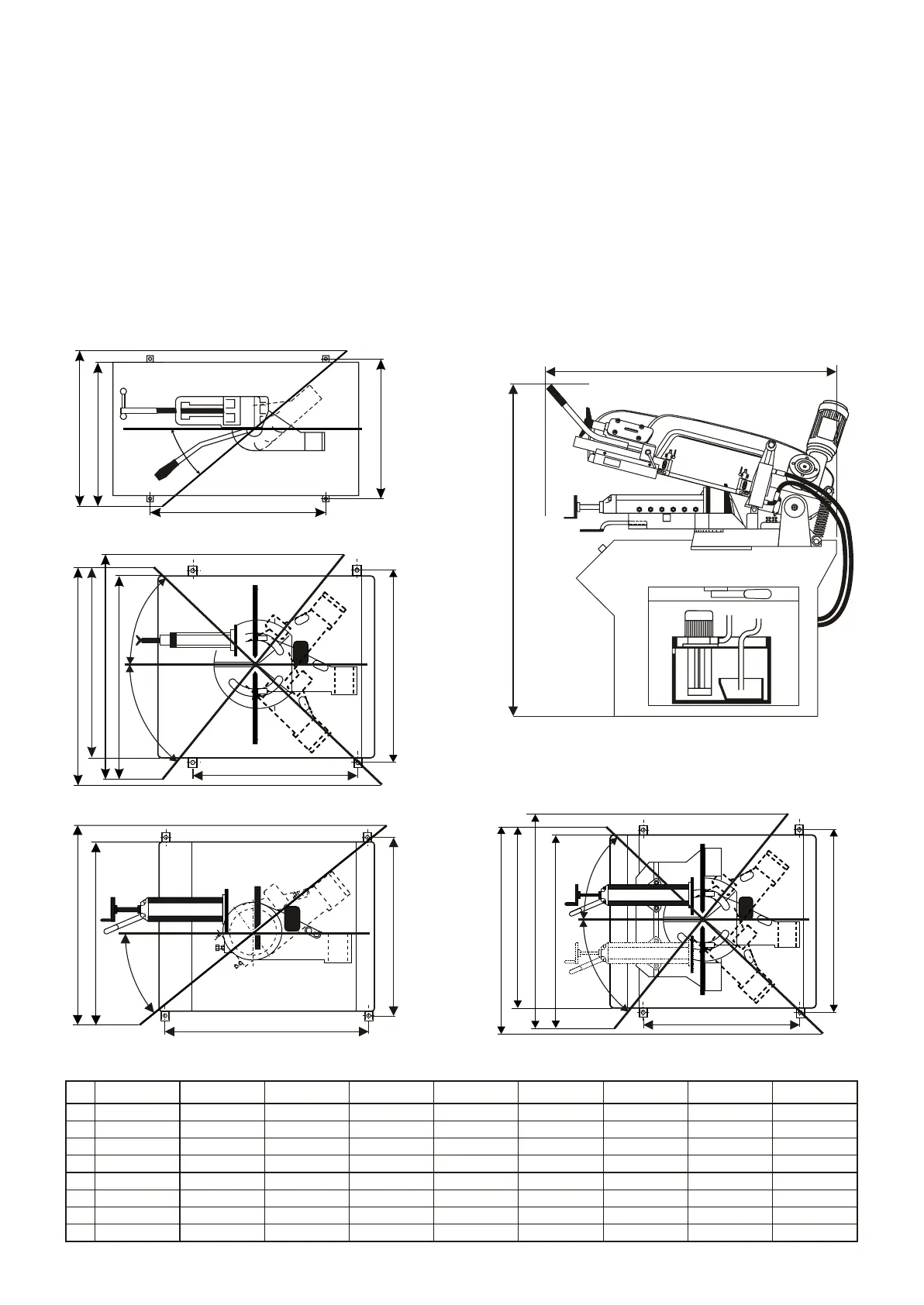
4. Installation
4.1. Space Requirements
The machine may be installed on any suitable even hall floor (concrete surface). Observe the permissible floor load.
Recommendations / assumptions:
a) Allow for sufficient work feed space, work removal and the machine maintenance - the operators' working area should be 1
m around the machine and 0,5 m around the roller conveyor.
b) Install roller conveyors and/or a case for cut pieces for a safe handling of work pieces and to prevent endangering by falling
cut pieces, if any.
c) Install a lifting mechanism for heavy work pieces.
d) Provide for good lighting of the workplace.
D max.
C max.
A
60°
45°
B
E
F
G
H
ARG 230 Plus, ARG 240 Plus, ARG 290 Plus
ARG 230 Standard, ARG 230, ARG 240
A
45°
B
E
F
0 0
90 - 60
A
B
E
F
ARG 180
A
60°
45°
B
G
H
E
F
ARG 200 PLUS, ARG 220 PLUS
ARG 230
Standard
ARG 180 ARG 200 Plus ARG 220 Plus ARG 230 ARG 240 PlusARG 240ARG 230 Plus ARG 290 Plus
720 720 720 730 845 850 845 850 905A
625 625 625 635 940 950 940 950 1005B
1800 1820 1830 1910 1880 1895 1940 1945 2040C
1240 1230 1230 1580 1633 1621 1795 1745 1690D
1050 1100 950 1028 1115 1030 1125 1098 1210
E
1160 1250 1650 1238 1190 1030 1200 1098 1270F
x 920 1070 x x 894 x 1258 1335G
x 980 1230 x x 1330 x 1368 1430H

Table of Contents

Related product manuals