EasyManua.ls Logo

Pit Boss PB150PPS - Diagrama de Cableado Eléctrico

Pit Boss PB150PPS
90 pages
Print Icon
To Next Page IconTo Next Page
To Next Page IconTo Next Page
To Previous Page IconTo Previous Page
To Previous Page IconTo Previous Page
Loading...
ESPAÑOL
82
TASA DE ENTRADA
DE COMBUSTIBLE:
0,5 / 1,1 /
ÍNDICE
  
  
  
  
  
  
  
   
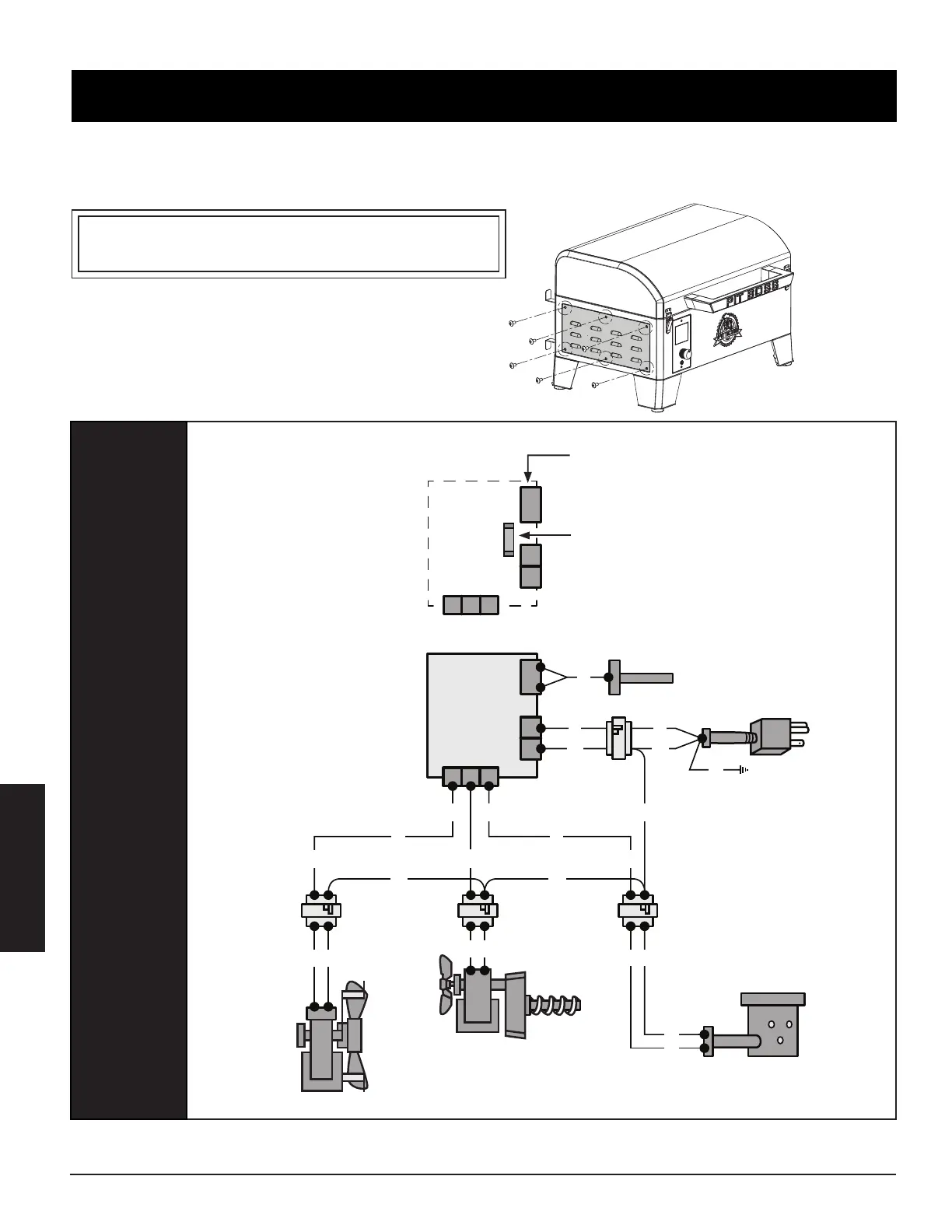
El sistema del Tablero de control digital es una pieza de tecnología compleja y valiosa. Para proteger contra las subidas de tensión
y los cortocircuitos, consulte el diagrama de cableado para asegurarse de que la fuente de alimentación sea suficiente para que
la unidad funcione correctamente.
PB – REQUISITOS ELÉCTRICOS
110-120V, 60HZ, 220W, ENCHUFE DE 3 PATILLAS CON CONEXIÓN A TIERRA
NOTA: los componentes eléctricos, que han superado las pruebas de seguridad y los servicios de
certificación de producto, cumplen la tolerancia de prueba de ± 5-10 por ciento.
P
P
G
Y
Y
Y P
K
S
W
K
W
G
W
W
W
G G
WW
W
W
Y Y
SISTEMA DE IGNICIÓN/
CALENTADOR DE
CARTUCHO HD
200, 120, 26 
0375”  5000”
CHIMENEA
SISTEMA DE
IGNICIÓN
VENTILADOR
DE TIRO
120, 50/60,
01 ,

CABLE DE ALI-
MENTACIÓN CON
CONEXIÓN A TIERRA
1, 105°/221°,
183 
ALIMENTADOR DE
ESPIRAL Y MOTOR
120, 50/60, 022 ,
  2 
TIERRA
SONDA DE LA
BARBACOA
R
R R
TERMINALES DE LA
SONDA DE LA PARILLA
FUSIBLE RÁPIDO
DE 5A
TABLERO DE CONTROL
LOCALICE Y EXTRAIGA LOS
SEIS TORNILLOS DEL PANEL
DE ACCESO SITUADO EN EL
LATERAL DE LA TOLVA.

Table of Contents

Other manuals for Pit Boss PB150PPS

Related product manuals