EasyManua.ls Logo

Planar PS5562 - Dimensions; Ps4662 T

Planar PS5562
70 pages
Print Icon
To Next Page IconTo Next Page
To Next Page IconTo Next Page
To Previous Page IconTo Previous Page
To Previous Page IconTo Previous Page
Loading...
Planar PS Series User Guide 56
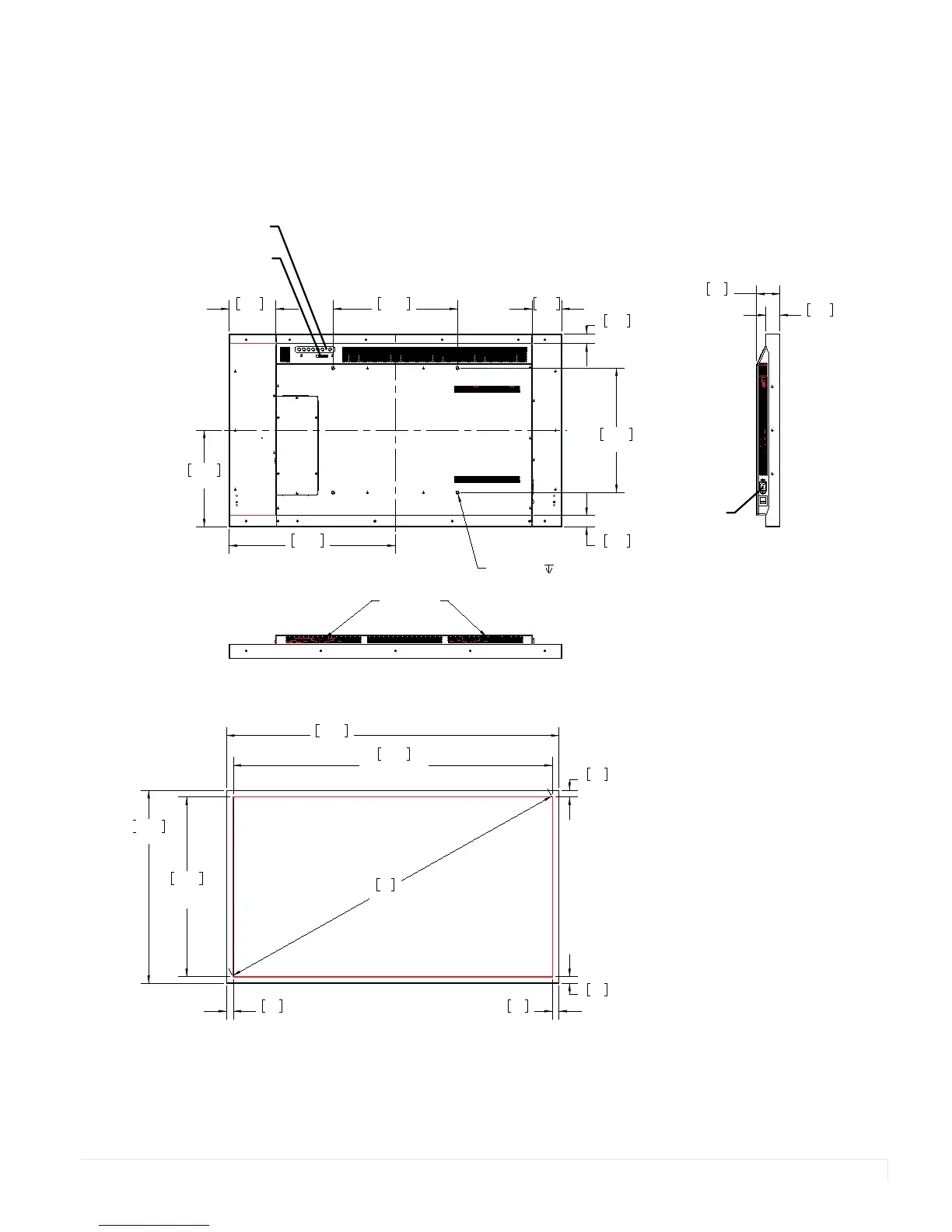
Dimensions
PS4662T
15.75
400.0
15.75
400.0
5.93
150.7
3.73
94.9
1.25
31.76
1.43
36.25
4X M8x1.25 15mm
21.04
534.5
12.21
310.3
KEYPAD
IR SENSOR
1.77
45.0
2.9
74.79
AC POWER IN
(IEC C14)
2X SPEAKER2X SPEAKER
24.43
620.5
22.72
577.0
ACTIVE AREA
40.35
1025.0
ACTIVE AREA
42.08
1068.9
.86
21.8
.86
21.8
.86
22.0
.86
22.0
46
1176

Related product manuals