EasyManua.ls Logo

Planar PS5562 - Ps6562

Planar PS5562
70 pages
Print Icon
To Next Page IconTo Next Page
To Next Page IconTo Next Page
To Previous Page IconTo Previous Page
To Previous Page IconTo Previous Page
Loading...
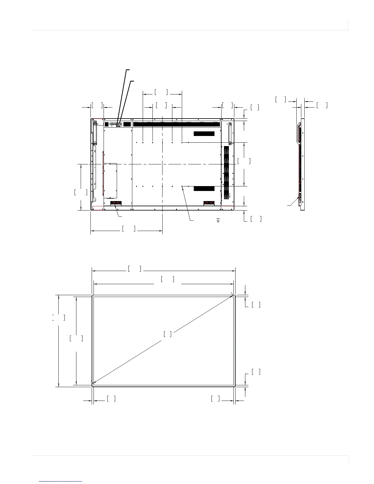
PS6562
Planar PS Series User Guide 59
PS6562
4X M8x1.25 15mm
5.17
131.4
15.75
400.0
5.17
131.4
.91
23.1
15.75
400.0
1.57
39.9
16.52
419.6
28.82
732.1
7.87
200.0
KEYPAD
IR SENSOR
2X SPEAKER
1.29
32.7
3.22
81.7
AC POWER IN
(IEC C14)
56.31
1430.4
ACTIVE AREA
31.71
805.4
ACTIVE AREA
65
1640
57.65
1464.2
33.04
839.2
.67
16.9
.67
16.9
.67
16.9
.67
16.9

Related product manuals