EasyManua.ls Logo

Planar PS5562 - Troubleshooting Common Issues; Symptoms, Causes, and Solutions

Planar PS5562
70 pages
Print Icon
To Next Page IconTo Next Page
To Next Page IconTo Next Page
To Previous Page IconTo Previous Page
To Previous Page IconTo Previous Page
Loading...
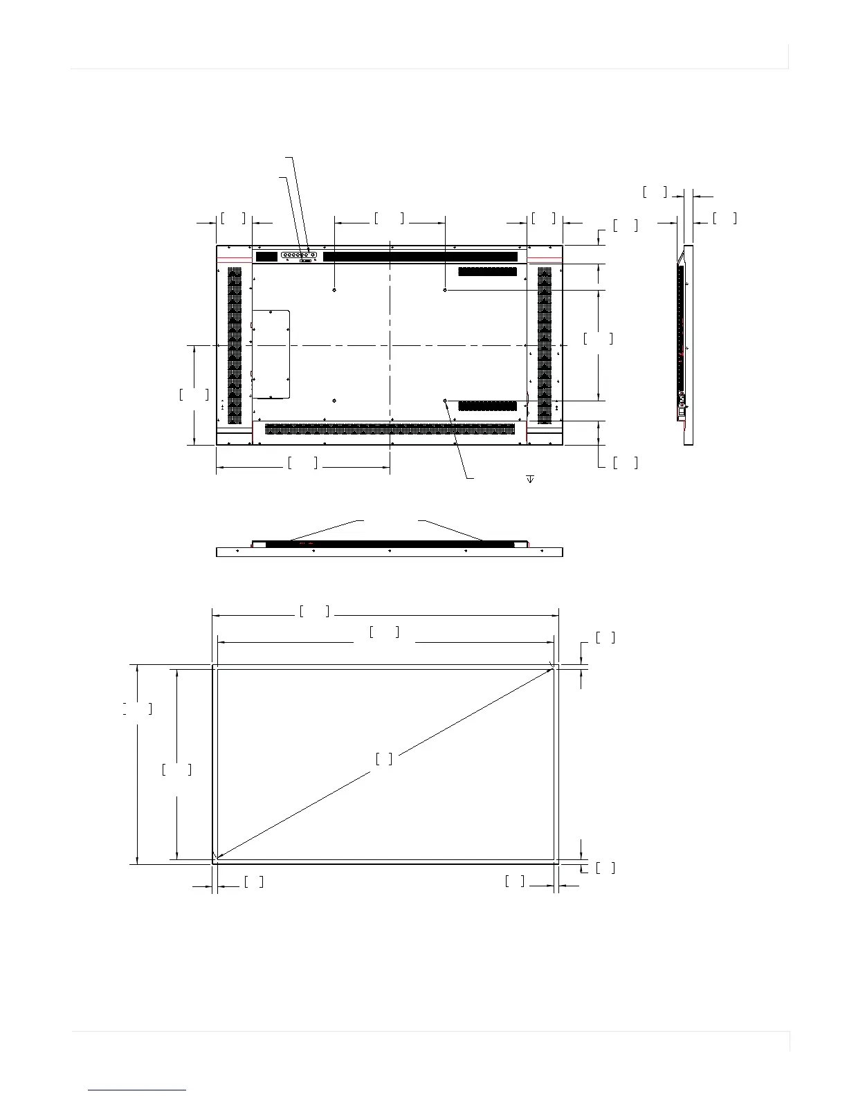
PS5562
Planar PS Series User Guide 57
PS5562
5.10
129.6
15.75
400.0
5.13
130.4
2.62
66.6
15.75
400.0
3.44
87.4
4X M8x1.25 15mm
14.23
361.4
24.65
626.0
KEYPAD
IR SENSOR
1.33
33.9
2.26
57.4
2X SPEAKER2X SPEAKER
.71
18.0
49.29
1252.0
28.46
722.8
.71
18.0
.71
18.0
.71
18.0
55
1397
27.04
686.8
ACTIVE AREA
47.87
1216.0
ACTIVE AREA

Related product manuals