EasyManua.ls Logo

Planar PS5562 - Ps5562 T

Planar PS5562
70 pages
Print Icon
To Next Page IconTo Next Page
To Next Page IconTo Next Page
To Previous Page IconTo Previous Page
To Previous Page IconTo Previous Page
Loading...
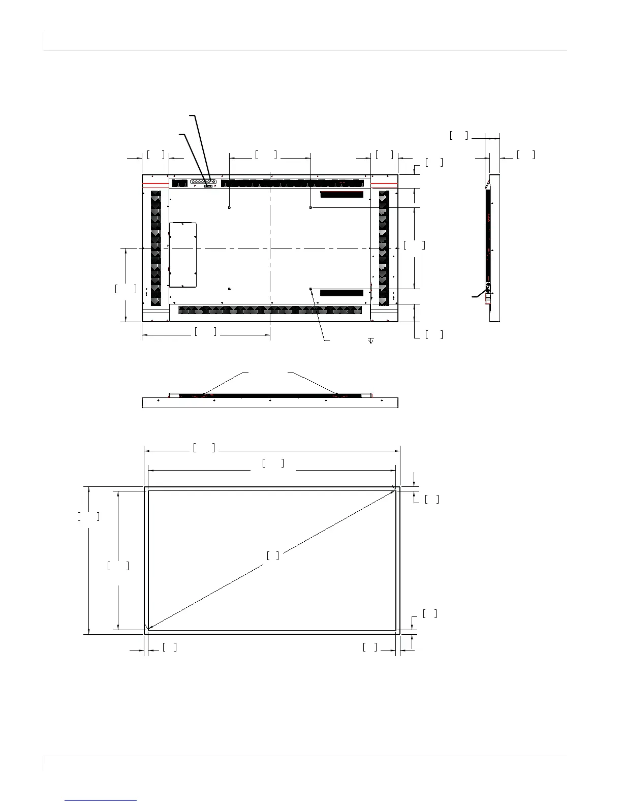
PS5562T
58 Planar PS Series User Guide
PS5562T
5.24
133.2
15.75
400.0
5.24
133.2
2.72
69.0
15.75
400.0
3.44
87.4
4X M8x1.25 15mm
14.28
362.6
24.79
629.6
IR SENSOR
KEYPAD
1.96
49.9
2.89
73.4
AC POWER IN
(IEC C14)
2X SPEAKER2X SPEAKER
49.57
1259.2
28.55
725.2
26.89
683.0
ACTIVE AREA
47.91
1217.0
ACTIVE AREA
55
1396
.83
21.1
.83
21.1
.83
21.1
.83
21.1

Related product manuals