EasyManua.ls Logo

Planar PS5562 - Ps6562 T

Planar PS5562
70 pages
Print Icon
To Next Page IconTo Next Page
To Next Page IconTo Next Page
To Previous Page IconTo Previous Page
To Previous Page IconTo Previous Page
Loading...
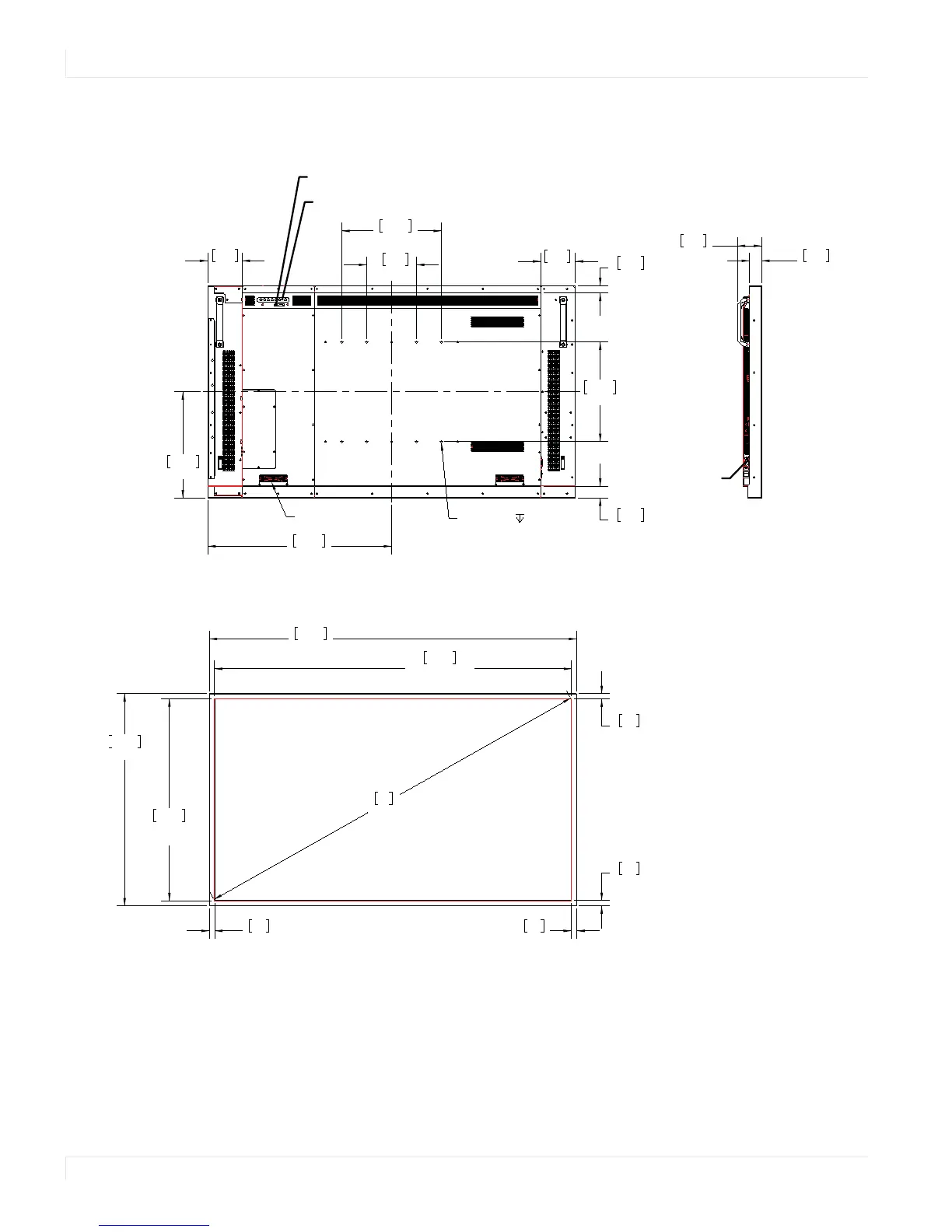
PS6562T
60 Planar PS Series User Guide
PS6562T
15.75
400.0
15.75
400.0
5.42
137.7
5.46
138.7
1.18
29.9
1.84
46.7
8X M8x1.25 15mm
16.79
426.4
29.07
738.4
7.87
200.0
KEYPAD
IR SENSOR
2X SPEAKER
1.90
48.2
3.83
97.2
AC POWER IN
(IEC C14)
56.50
1435.2
ACTIVE AREA
31.94
811.2
ACTIVE AREA
65
1646
58.14
1476.8
33.57
852.8
.86
21.9
.86
21.9
.86
21.9
.86
21.9

Related product manuals