EasyManua.ls Logo

Plus M-11series - Page 8

Default Icon
15 pages
Print Icon
To Next Page IconTo Next Page
To Next Page IconTo Next Page
To Previous Page IconTo Previous Page
To Previous Page IconTo Previous Page
Loading...
8
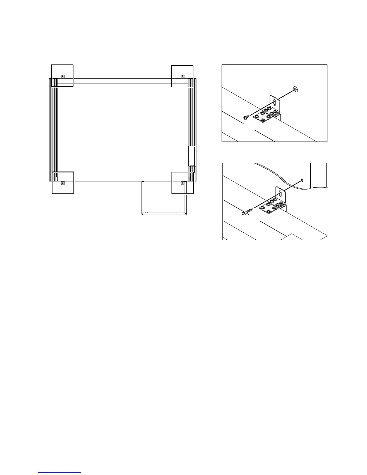
(4) Attaching and anchoring the Copyboard to a wall or wall support fitting.
(The anchoring method will differ depending on the wall mounting method.)
Installing on a Concrete Wall
Anchor nut, etc.
M6 screw
Mounting to a Post
M6 wood screw

Related product manuals