EasyManua.ls Logo

PoolPak AW 1400 - Curb Mounting

Default Icon
62 pages
Print Icon
To Next Page IconTo Next Page
To Next Page IconTo Next Page
To Previous Page IconTo Previous Page
To Previous Page IconTo Previous Page
Loading...
28 EGW06-PCPEG-20140813
TM
TM
Section IV: Installation
CURB MOUNTING
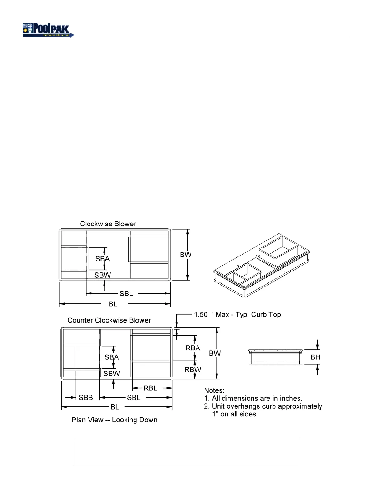
Illustrated in gure 4-2 is a curb that has been designed specically for the PoolComPak™ product line. The outside
dimensions of the curb are such that the base of PoolComPak™ extends over the edge of the curb all the way around.
This aids in preventing rainwater from getting between the base of the PoolComPak™ and the curb.
It is the installing contractors responsibility to complete the following:
Flash the curb into the roof
Insulate the curb
Connect the supply and return duct to the curb’s duct support rails.
Connect condensate drain line with appropriate trap
Seal the curb to the bottom of the PoolComPak™ using the gasket supplied with the curb
Provide counter ashing between curb and PoolComPak™ unit.
Seal the pool water pipes where they go through the curb
If specied when ordering, all water piping connections can be made through the curb. These water connections include:
pool water, condensate, auxiliary hot water coil (optional).
If the PoolComPak™ is to be mounted on a curb, the unit must be ordered with the “outdoor” option. PoolComPak™
Units produced for curb mounting receive special weatherizing and insulation that non-curb mounted PoolComPak™
Units do not receive.
Figure 4-2. PoolComPak™ Curb Assembly
PCP_EG_CurbDimensionsIdentication_20121204.tif
NOTE
If the factory is not notied that a PoolComPak™ is to mounted outdoors, the unit
will not be weather tight, it will leak and it will not be properly insulated.

Table of Contents

Related product manuals