EasyManua.ls Logo

Pro-face GP-4201T - Page 110

Pro-face GP-4201T
241 pages
Print Icon
To Next Page IconTo Next Page
To Next Page IconTo Next Page
To Previous Page IconTo Previous Page
To Previous Page IconTo Previous Page
Loading...
Specifications
110
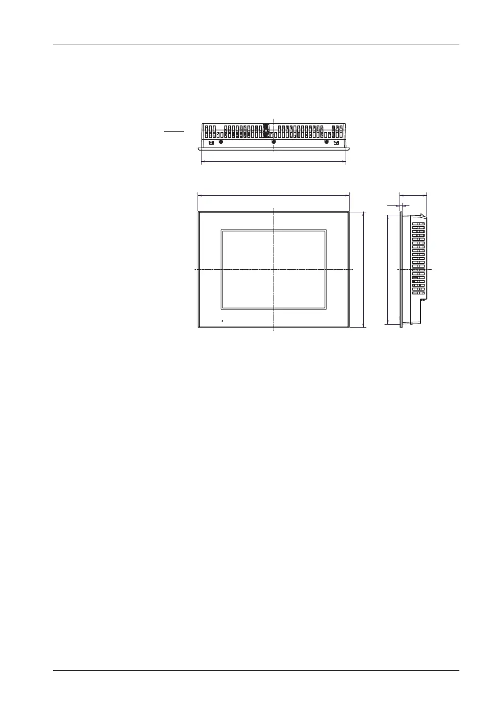
External Dimensions: GP-4501TW
1 Front
2 Right Side
3 Top











PP
LQ




Table of Contents

Related product manuals