EasyManua.ls Logo

Pro-face GP-4201TM - Page 232

Pro-face GP-4201TM
241 pages
Print Icon
To Next Page IconTo Next Page
To Next Page IconTo Next Page
To Previous Page IconTo Previous Page
To Previous Page IconTo Previous Page
Loading...
232
10
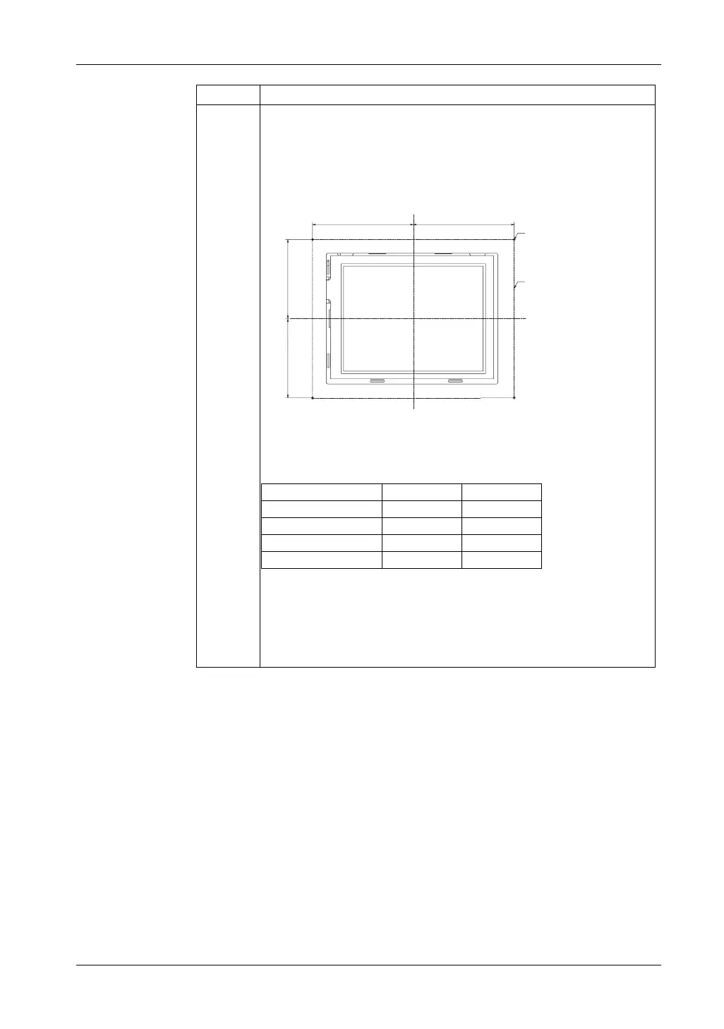
When installing the GP unit with the flat mount orientation, affix the
Overlay to
the front of the GP unit.
In advance, align the four corners of the
Overlay outline on the panel as
shown in the figure, and then mark these corners.
Peel off the removable paper layer from the
Overlay, align the Overlay with
the four marks, and then affix the
Overlay to the panel.
1) Locations to mark (four locations)
2)
Overlay outline
e) Display area
Note: Use the
Overlay manufactured by Pro-face. Use one of the following
models.
z PFXZGPFSR6W1 (for the PFXGP4301TADR)
z PFXZGPFSR7W1 (for the PFXGP4401TADR)
z PFXZGPFSR10W1 (for the PFXGP4501TADR)
z PFXZGPFSR12W1 (for the PFXGP4601TADR)
Step Procedure Details
); );
)<
)<
H
mm
(i
n.
)
(dimensional tolerance: ±0.2mm [0.01 in.])
FX FY
PFXGP4301TADR 84.0 (3.31) 66.0 (2.60)
PFXGP4401TADR 99.7 (3.93) 78.6 (3.09)
PFXGP4501TADR 133.3 (5.25) 105.5 (4.15)
PFXGP4601TADR 158.5 (6.24) 118.7 (4.67)

Table of Contents

Related product manuals