EasyManua.ls Logo

Pro-face GP-4402WW - Page 44

Pro-face GP-4402WW
62 pages
Print Icon
To Next Page IconTo Next Page
To Next Page IconTo Next Page
To Previous Page IconTo Previous Page
To Previous Page IconTo Previous Page
Loading...
Installation and Wiring
44
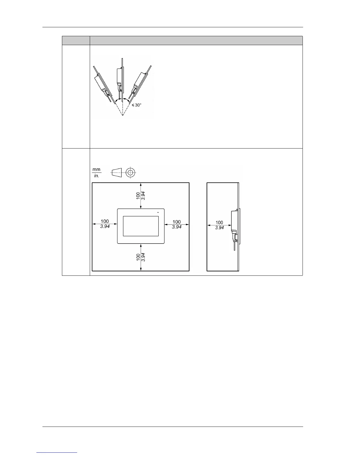
6 When installing the panel in a slanted position, the panel face should not incline more than 30:
When installing the panel in a slanted position, and the panel face inclines more than 30, the
ambient temperature must not exceed 40 C (104 F). You may need to use forced air cooling
(fan, A/C) to ensure that the ambient operating temperature is 40 C or below.
7 For easier maintenance, operation and improved ventilation, install the panel at least 100 mm
(3.94 in) away from adjacent structures and other equipment:
Step Action

Other manuals for Pro-face GP-4402WW

Related product manuals