EasyManua.ls Logo

Pyronix ENFORCER V11 - Installation Guide; Mains and Earth Wiring

Pyronix ENFORCER V11
16 pages
Print Icon
To Next Page IconTo Next Page
To Next Page IconTo Next Page
To Previous Page IconTo Previous Page
To Previous Page IconTo Previous Page
Loading...
7
ENFORCER V11 INSTALLATION GUIDE
INSTALLATION GUIDE
Please note:
It is recommended that the Engineer Menu is accessed prior to opening a powered Enforcer.
If any new peripherals are installed such as communications modules, expanders or arming devices, the
whole system should be powered down mains and battery prior to installing.
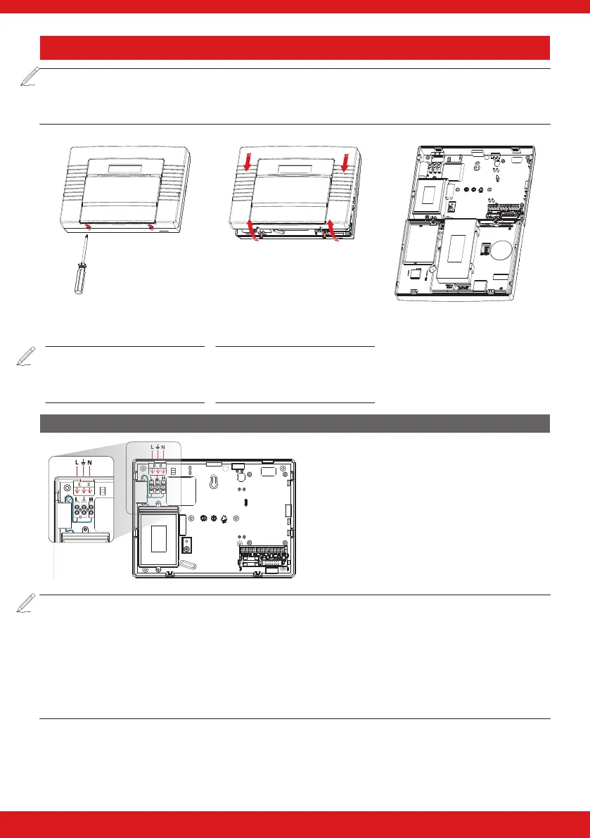
1. Slightly unscrew the two screws
located at the bottom.
Please note: Do not fully
unscrew as these can be used as
a ‘hanger’ to the rear casing as
shown in Step 3.
2. Unhinge the front from the top
and pull down to disconnect.
Please note: Take care when
removing as modems, I/O
boards etc. may be connected to
the front.
3. Hang the front on the opening
screws at the bottom if required.
Shown above.
MAINS AND EARTH WIRING
It is important that the electrical earth connection is
connected when connecting the 230VAC mains supply
to the Enforcer.
Please note:
 Do not locate the mains cables next to internal cabling.
 Ensure that the control panel is not mounted on any metal surfaces.
That the mains cables should not be internally ‘looped’. This may interfere with the wireless antennas.
Where possible it is recommended that all mains cables should be installed through the area nearest the
mains terminals as shown above.
The panel should be mounted at least 1 metre away from any source of electrical or radio interference
including but not limited to, mains consumer units, solar PV control equipment etc.
 If cable management is an issue, a spacer is available: ENF/SPACER-WE

Other manuals for Pyronix ENFORCER V11

Related product manuals