EasyManua.ls Logo

Rangemaster Elise 90 Induction - Page 34

Rangemaster Elise 90 Induction
40 pages
Print Icon
To Next Page IconTo Next Page
To Next Page IconTo Next Page
To Previous Page IconTo Previous Page
To Previous Page IconTo Previous Page
Loading...
30
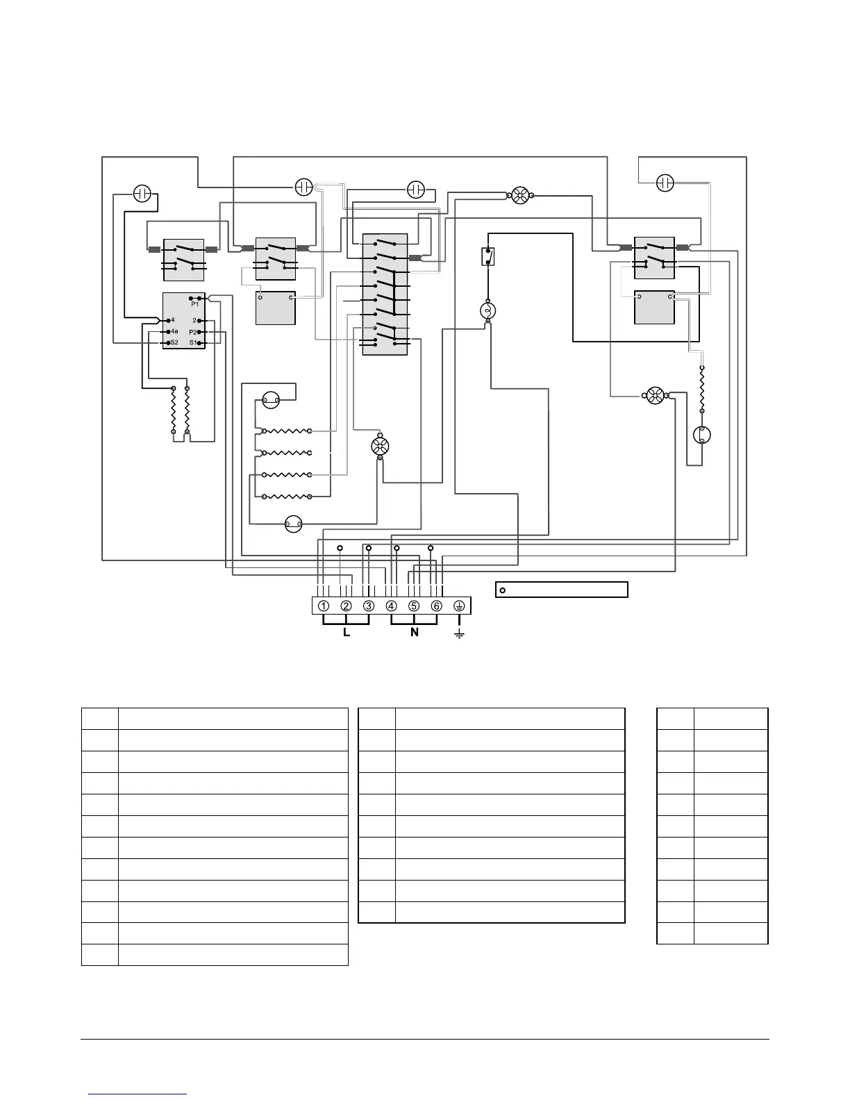
Oven
Key
The connections shown in the circuit diagram are for single-phase. The ratings are for 230 V 50 Hz.
Code Colour
b Blue
br Brown
bk Black
or Orange
r Red
v Violet
w White
y Yellow
g/y Green/yellow
gr Grey
1 2
P028728
6
P6
5 P5
4
P4
7 P7
8 P8
2
P2
1
P1
3 P3
P095199
1
2
P2
P1
1 2
P095199
1
2
P2
P1
E
P095199
1
2
P2
P1
or
1
2 4 5
- Connection to the Induction Unit
y
v
y
or
v
v
v
br
br
bk
wb
w
w
b
b
b
b
bk
bk
b
b
b
br
w
br
b
r b
b
w
w
y
y
or
w
gr
r
r
br
or
y
r
w
gr
b
b
b
b
bb
b
b
b
b
r r
r
br
b
br
br
r
v
r
y
bk
bk
bk
v
b
b
b
b
b
v
b
b
b
A1
A2
A3
B1
B2
B3
B6
B7
B8
G
C1
B5
I
B4
C2
C3
C4
G
G
H
H
H
G
F2
F1
Code Description
A1 Grill Front Switch
A2 Grill Energy Regulator
A3 Grill Elements - Left-hand / Right-hand
B1 Left-hand Oven Thermostat Switch
B2 Left-hand Oven Thermostat
B3 Left-hand Multifunction Switch
B4 Left-hand Oven Top Element (Outer)
B5 Left-hand Oven Top Element (Inner)
B6 Left-hand Oven Fan Element
B7 Left-hand Oven Base Element
B8 Left-hand Oven Fan
Code Description
C1 Right-hand Oven Front Switch
C2 Right-hand Oven Thermostat
C3 Right-hand Oven Element
C4 Right-hand Oven Fan
F1 Oven Light Switch
F2 Left-hand Oven Light
G Indicator Neon
H Oven Thermal Preset
I Cooling Fan

Related product manuals