EasyManua.ls Logo

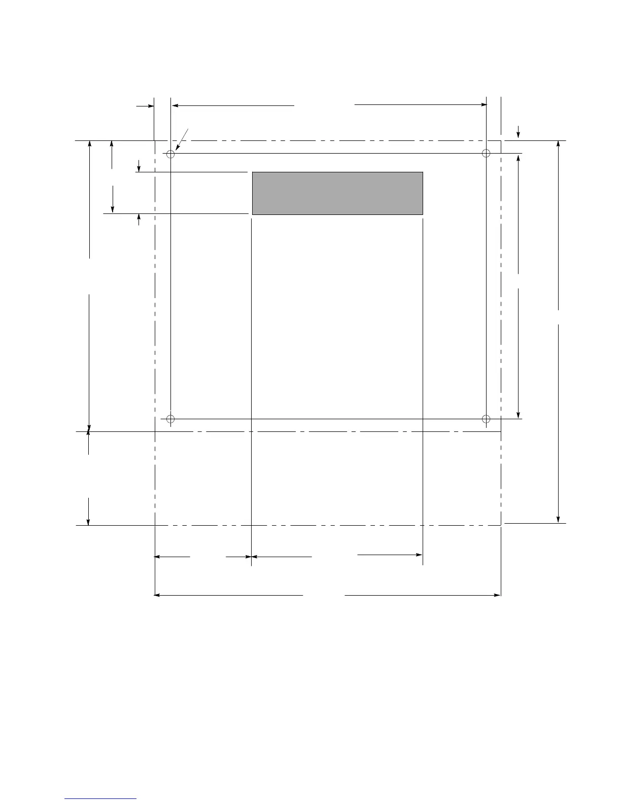
Remcor DB200 - Figure 3. Mounting Template

Default Icon
24 pages
Print Icon
To Next Page IconTo Next Page
To Next Page IconTo Next Page
To Previous Page IconTo Previous Page
To Previous Page IconTo Previous Page
Loading...
5 91679
NOTE:
SHADED AREA INDICATE OPENINGS
IN CABINET BOTTOM NEEDED FOR
UTILITIES AND BEVERAGE TUBING
27- 3/4-IN.
1- 1/8-IN.
20 -3/4-IN.
30-IN.
14-IN.
30-IN.
8-IN.
FRONT
7-IN.
23-IN.
7- 15/16IN.
4-1/2 IN.
1 -1/8-IN.
BACK
REMOVABLE
SINK
3/8 DIA. HOLE (4) PLCS
FIGURE 3. MOUNTING TEMPLATE