EasyManua.ls Logo

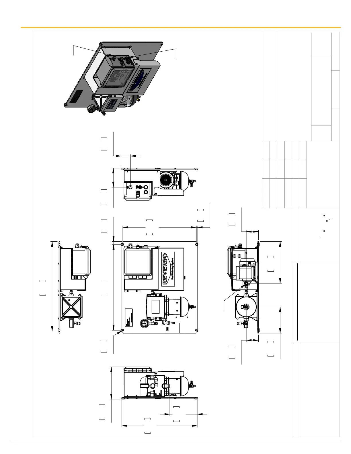
Reverso FPS-80 - FPS-210 Dimensions

Reverso FPS-80
20 pages
Print Icon
To Next Page IconTo Next Page
To Next Page IconTo Next Page
To Previous Page IconTo Previous Page
To Previous Page IconTo Previous Page
Loading...
19
Reverso Pumps, Inc.
FPS-210 Dimensions
66.50
26.18
0.79
R0.31
2.31
0.91
57.05
22.46
0.69
0.27
INLET
14.84
5.84
7.25
2.85
58.42
23.00
25.00
9.84
21.29
8.38
69.60
27.40
Power In
Ethernet Port
9.53
3.75
32.41
12.76
20.46
8.05
9.53
3.75
OUTLET
Fuel Polishing System - 210GPH
Marine Model - 120vAC - Basic
Digital Controller
DO NOT SCALE DRAWING
FPS-210-ER-R_A
SHEET 1 OF 4
2/2/2021
JC
UNLESS OTHERWISE SPECIFIED:
SCALE: 1:12
WEIGHT:
REV
DWG. NO.
A
SIZE
TITLE:
REVERSO PUMPS
NAME
DATE
COMMENTS:
Q.A.
MFG APPR.
ENG APPR.
CHECKED
DRAWN
DIMENSIONS ARE IN INCHES
TOLERANCES:
FRACTIONAL
1/64
ANGULAR: MACH
BEND
0.2
TWO PLACE DECIMAL
.01
THREE PLACE DECIMAL
.005
PROPRIETARY AND CONFIDENTIAL
THE INFORMATION CONTAINED IN THIS
DRAWING IS THE SOLE PROPERTY OF
REVERSO PUMPS
ANY REPRODUCTION IN PART OR
AS A WHOLE WITHOUT THE WRITTEN
PERMISSION OF
REVERSO PUMPS
IS PROHIBITED.
Part #: 21-2003-02
All Dimensions for Reference Only
Secondary Dimensions in Centimeters
TECHNICAL SPECIFICATIONS
Port Size - 1/2" MJIC
Weight - 45lbs. / 20.4 kg (estimated)
Power - 60Hz @ 120vAC
Flow Rate - 210 gph/ 795 Lph
JC
6/11/2020
Dimensions are the same for 220V AC, and versions with touchscreen or mechanical control panels.

Related product manuals