EasyManua.ls Logo

Reversomatic RERV-S200 - Wiring Diagram

Default Icon
16 pages
Print Icon
To Next Page IconTo Next Page
To Next Page IconTo Next Page
To Previous Page IconTo Previous Page
To Previous Page IconTo Previous Page
Loading...
PUSH FOR FAN
M
I N
U T E
S
LO
HI
INT
g)
g) Intermittent Switch
(IC 100-5V)
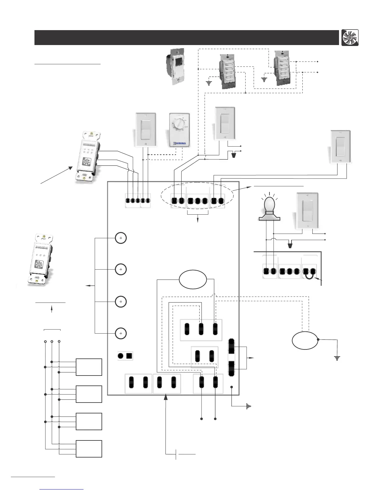
Wiring Diagram (Superior, Project, Economy and Maxum Series Unit)
5
CONTROL BOARD:
a) Timer Switch (TC100)
b) Wall Switch
c) Dehumidistat
d) Time Delay Switch (TC100-120 & TC100-120P)
e) Master On/Off Switch
for HRV/ERV
f ) Light
Optional Accessories (Not Supplied)
FAN2
FAN1
LINE
NEUTRAL
PUSH FOR F
AN
M
I
N
U
T
E
S
or
a)
b) c)
d)
Hi
Low
Light / Switch Option
120 Vac / 1 / 60Hz
Power Supply
Hi
Low
Furnace, Fan Coil,
Heat Pump
Interlock
4 - Speed Controller for Manual Balancing
and Air Flow Adjustment
120 VAC / 1 / 60Hz
Power Supply
Ground
Fuse
On
Off
e)
Low HighLow High
Exhaust
Fan Speed
Supply
Fan Speed
Supply Fan
Exhaust Fan
b)
Temp. Sensor
Safety Switch
Low Voltage
+5
DAT
C
Speed
Contact
L0/HI
SPEED
HV INPUT
Remote
0n/0ff
(HV-High Voltage)
NC
C
N0
Ext. Interlock
HIGH VOLTAGE
Damper Interlock
NC
C0M
N0
f)
HRV/ ERV
Hi / Low
Light
On / Off
120 Vac / 1 / 60Hz
Power Supply
Jumper
(remove jumper to install
master ON/OFF switch)
b)
L0/HI
Speed
HV Input
Remote
0n/0ff
HV
NC
C
N0
Ext. Interlock
HIGH VOLTAGE
FAN #1 - Single speed
(Bathroom Exhaust fan connection for “Project Series”)
Note:
Up to 4 Timer Switches (TC 100-5V)
can be
connected to control board of
HRV/ERV by using three 24 AWG (min.)
Copper wires as shown.
Maximum total wire length 75ft.
(see option 2)
Option 2:
Timer
Switch
2
Timer
Switch
3
Timer
Switch
4
to Control
Board
Note:
Make sure, the Line must be connected to
Line and Neutral connected to Neutral.
Unit will not function if not connected correctly.
RED
YEL
GND
RED
YEL
GND
C
+5
DAT
RED
YEL
GND
RED
YEL
GND
Model # RHRV-P100A
RHRV-P100P
RERV-P100
Note: Same power source must be
used if wall switches (b) & time delay switches (d)
are connected together in parallel.
TC100-120P
TC100-120
RED
BLACK
WHITE
Ground
120 Vac / 1 / 60Hz
Power Supply
(TC100-5V)
Important Note:- When installing timers or time delay switches, make sure
that they are for appropriate HRV/ERV models.
Ground
BLACK
WHITE
RED
Damper Motor
(Single Winding)
External Damper
Motor
Ground
Intermittent
OR Timer
RED
YEL
GND
Option-1
(Also available w/o OFF
mode)
Switch 1
and one intermittent switch (IC 100-5V)

Related product manuals