EasyManua.ls Logo

Riello Array AR 500 SE - Water, Condensate, and Gas Connections

Riello Array AR 500 SE
84 pages
Print Icon
To Next Page IconTo Next Page
To Next Page IconTo Next Page
To Previous Page IconTo Previous Page
To Previous Page IconTo Previous Page
Loading...
23
INSTALLATION
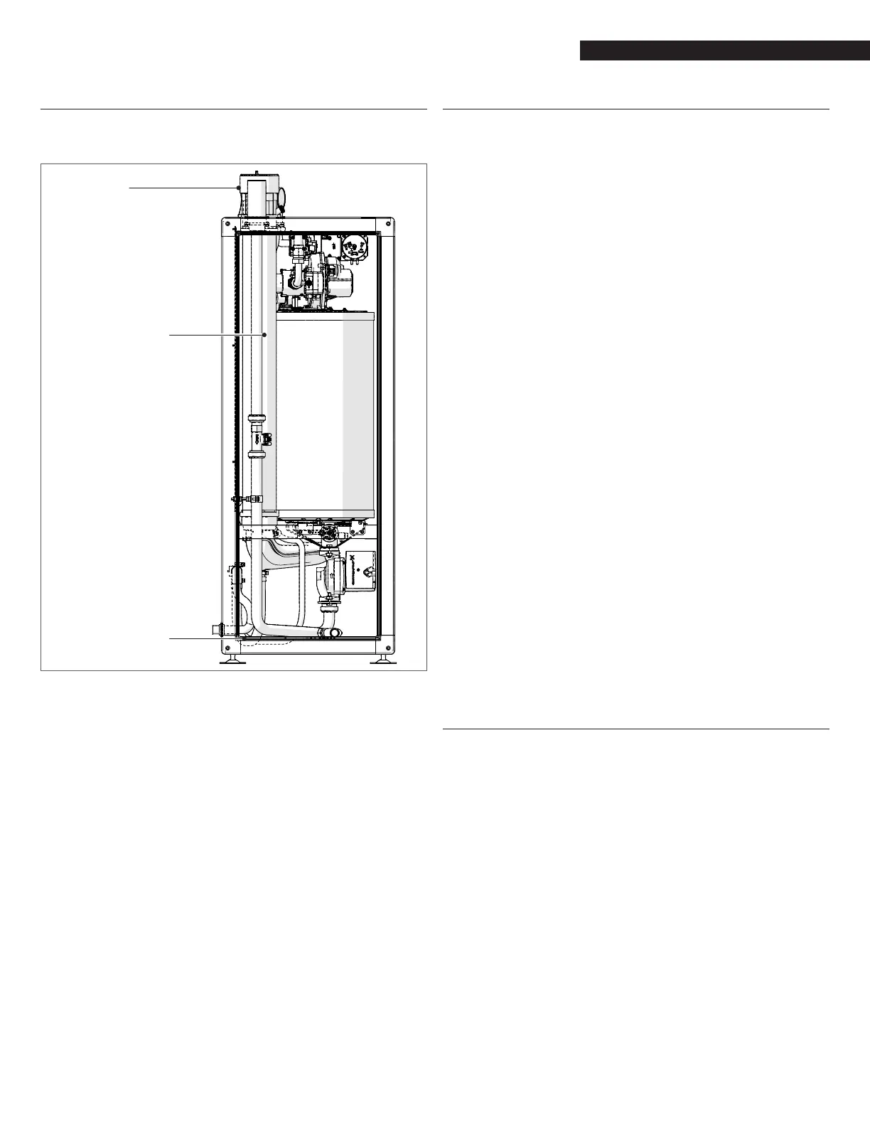
3.10 Condensate Drain and Piping
The Array AR SE is designed to condense water vapor from the ue
products.
Vertical Flue
Manifold
Syphon
Fill the syphon with
water from the top of
the vertical flue
manifold BEFORE
connecting the vent
piping
Fig. 18
Condensate drain and piping
9
WARNING: At the Start-up and after prolonged shutdown of
the boiler, the condensate traps and the syphon must be lled
with water prior to restarting it, otherwise combustion gases
may enter the room with a risk of an excessive level of carbon
monoxide.
The installation must have provisions for suitable drainage
or collection of the condensate exiting the boiler traps.
The condensate water shall be discharged at atmospher-
ic pressure, by dripping into a suitable drain, and shall be
neutralized prior to draining per local/national codes.
The condensate drain tube must pitch away from the boiler
(1/4” slope per foot) and must never reduce its diameter
downstream.
Never use copper pipes or other material not intended for
the specic purpose, because the acidic nature of the con-
densate will cause a rapid deterioration of the unsuitable
piping and/or exposed components.
Check that the condensate drain pipe is adequately sloping to-
wards the discharge point avoiding high points, which can in-
hibit the ow of the condensate. The condensate pipe must be
in
stalled in such a way so as to avoid the freezing of any liquid.
9
WARNING: Verify condensate disposal / neutralization is in ac-
cordance with local, state and federal regulations.
3.11 Water connection
9
NOTE: Before connecting the boiler the protection plugs must
be removed from the supply, return and condensate drain
pipes.
9
CAUTION: Before connecting the boiler, it is necessary to clean
the system. This step is required when the appliance replaces
another one on pre-existing systems.
In order to carry out this cleaning activity, if the old boiler is still
installed on the system, it is advisable to:
add a de-scaling additive.
Operate the system with the boiler on for around 7 days.
Discharge the dirty system water and ush the system one
or more times with clean water.
If the system is very dirty, repeat the last procedure one more time.
If the old boiler is not present or available, use a pump to circulate
the water + additive through the system for about 10 days and
perform a nal washing as described in the previous paragraph.
Once the cleaning has been completed, it is recommended to add
a suitable protective uid to the system’s water before installing
the boiler.
In order to clean the heat exchanger’s built-in water system,
please contact your local
R boiler distributor for further assis-
tance.
0
CAUTION: Do not use incompatible liquid detergents, including
acids (for instance, chloridric acid and similar) in any concen-
tration.
0
CAUTION: Do not subject the heat exchanger to cyclical pres-
sure changes because fatigue stress is very dangerous for the
integrity of system components.
The boiler, when used in connection with a refrigeration system,
must be installed so the chilled medium is piped in parallel with
the boiler with appropriate valves to prevent the chilled medium
from entering the boiler.
The boiler piping system of a hot water boiler connected to heat-
ing coils located in air handling units where they may be exposed
to refrigerated air circulation must be equipped with ow control
valves or other automatic means to prevent gravity circulation of
the boiler water during the cooling cycle.
3.12 Gas connections
Installation of the boiler and gas connection must comply with all
applicable codes and regulations imposed by the national, Federal
or local authorities and bodies. If no specic requirements are de-
ned, in the USA, the latest edition of the National Fuel Gas Code
ANSI Z223.1/NFPA 54 must be complied with. In Canada, installation
must be in accordance with the requirements of CAN/CSA B149.1,
Natural Gas and Propane Installation Code. Ensure the gas line is
sized adequately to deliver gas to the burner.
Before making the connection, check that:
9
The gas type is suitable for the appliance
9
If the appliance needs to be adapted for use with another gas
fuel, refer to section “Converting gas type”. For further infor-
mation please contact your local
R distributor.
9
Ensure the piping is thoroughly clean
9
The gas meter’s ow rate is capable of ensuring the simul-
taneous use of all the appliances connected to it. The ap-
pliance’s connection to the gas supply line must be carried
out in accordance with the latest edition of the National Fuel
Gas Code ANSI Z223.1/NFPA 54, in the USA, and CAN/CSA B149.1,

Table of Contents

Related product manuals