EasyManua.ls Logo

Riello G3 - Page 16

Riello G3
24 pages
Print Icon
To Next Page IconTo Next Page
To Next Page IconTo Next Page
To Previous Page IconTo Previous Page
To Previous Page IconTo Previous Page
Loading...
20013745
4
CN
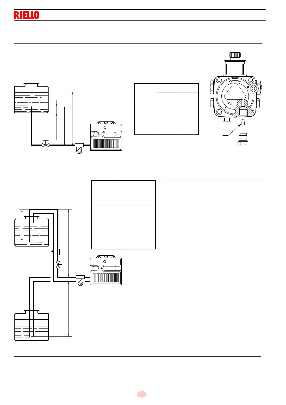
油路系统
警告 : 启动燃烧器之前,确保回油管无堵塞 . 任何堵塞会使泵的密封损坏 .
油泵进油真空度不能超 0.4 bar (30 cm
Hg).
大于这一值,气体可能从油中分离出来
.
油管一定要完全拧紧 . 回油管应回到油箱中
与入油管相同的水平高度
; 在这种情况下,
需止回阀
.
如果回油管回到比燃料表面高的位置必须
装一个止回阀
.
这种方法不如前一种方法因为阀门有可能
漏油
.
首次启动油泵
启动燃烧器直到油泵充 .
如在燃料到达油泵之前锁定 , 至少等 20 秒才
能再次启动
.
在供油管路上必须装滤 .
H
(m)
L (m)
I. D.
8 mm
I.D.
10 mm
0.5
1
1.5
2
10
20
40
60
20
40
80
100
警告
燃烧器油泵是按双管油系统运行设计的 .
若要单管运行,必须拆下旁路螺钉 (A), ( 参见图 ).
A
H
(m)
L (m)
I. D.
8 mm
I.D.
10 mm
0
0.5
1
1.5
2
3
3.5
35
30
25
20
15
8
6
100
100
100
90
70
30
20
H max. 4 m
H
H
max. 4 m
min. 0.1 m
D5219
D5220
D5199
H =高度差 .
L =供油管最大长度 .
I.D.=油管内径 .
油泵首次启动
松开真空压力表接口螺 (5, . 1,P.1) 直到有油流出为
.

Related product manuals