EasyManua.ls Logo

Riello MB 412/2 - Page 19

Riello MB 412/2
Print Icon
To Next Page IconTo Next Page
To Next Page IconTo Next Page
To Previous Page IconTo Previous Page
To Previous Page IconTo Previous Page
Loading...
5
20049406
D
Technische Beschreibung
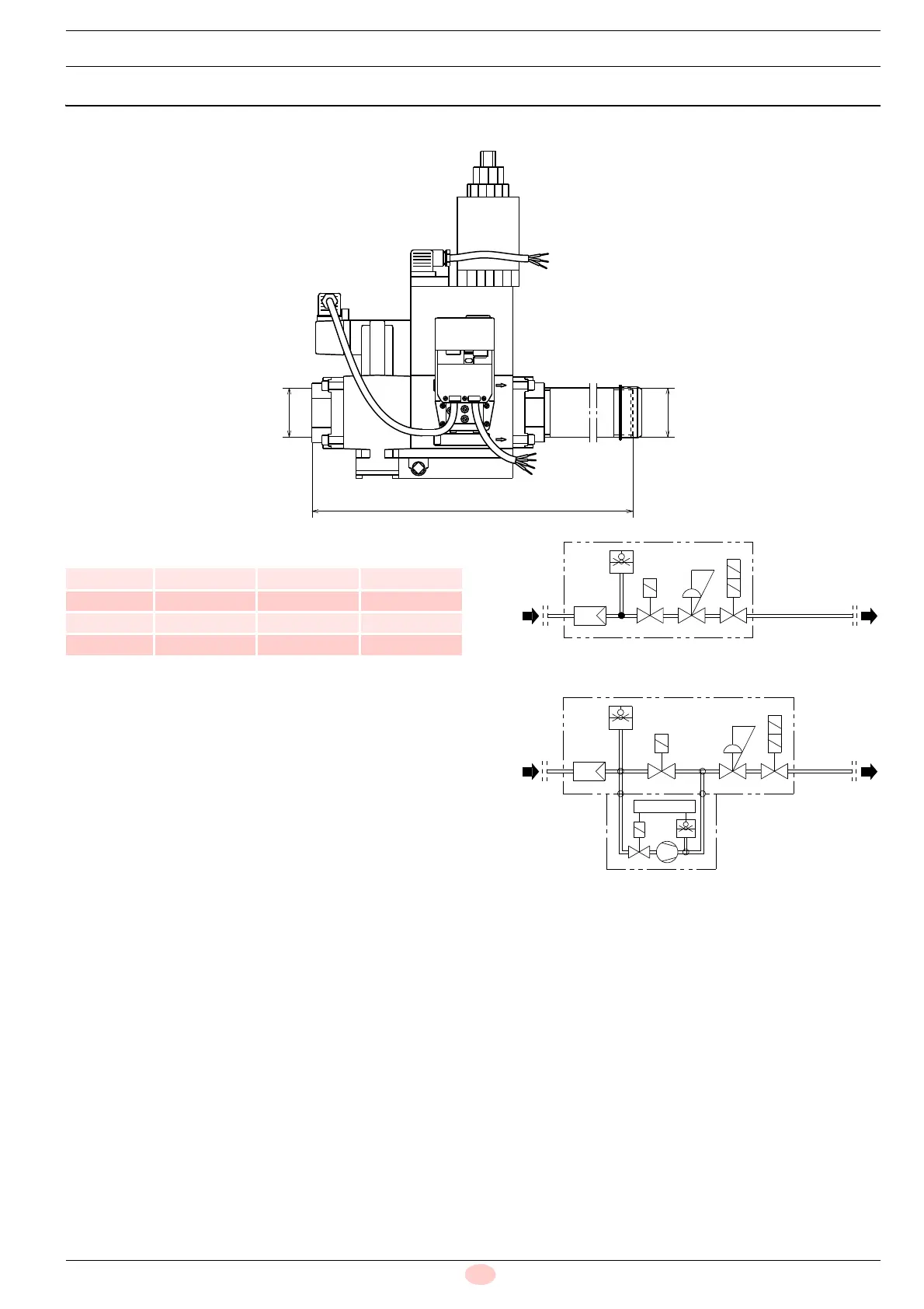
3.6 Abmessungen
Der Platzbedarf der Gasarmatur ist in Abb. 2 angegeben.
Tab. C
L
Ø E
Ø D
Abb. 2
20050114
Code L
ØD
(Netz)
ØE
(Brenner)
3970152 433 Rp 1”1/4 Rp 1”1/4
3970183 523 Rp 1”1/2 Rp 1”1/2
3970184 523 Rp 2” Rp 2”
3970185 523 Rp 2” Rp 2”
Abb. 3
D10044
< 360 mbar 4 - 20 mbar
D10039
< 360 mbar 4 - 20 mbar

Table of Contents