EasyManua.ls Logo

Riello MB 412/2 - Dimensioni Dingombro

Riello MB 412/2
Print Icon
To Next Page IconTo Next Page
To Next Page IconTo Next Page
To Previous Page IconTo Previous Page
To Previous Page IconTo Previous Page
Loading...
5
20049406
I
Descrizione tecnica
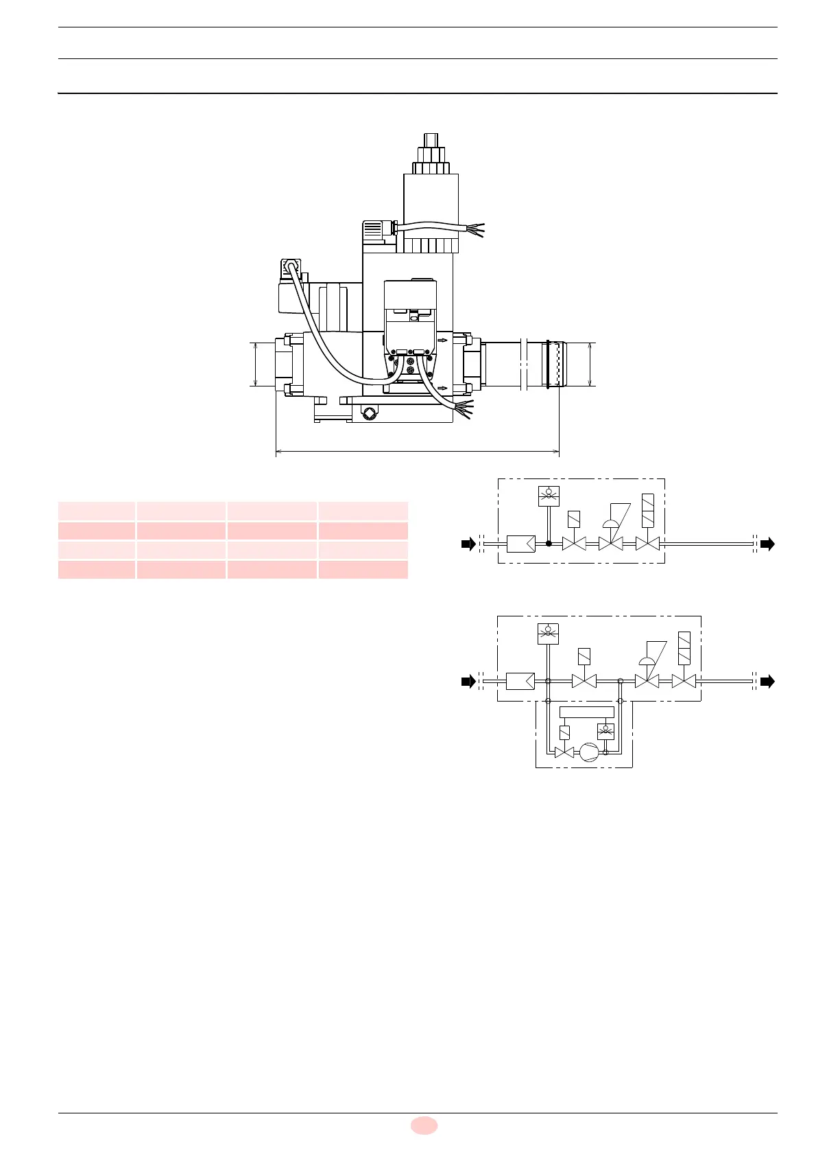
3.6 Dimensioni d’ingombro
L’ingombro della rampa è riportato in Fig. 2.
Tab. C
L
Ø E
Ø D
Fig. 2
20050114
Codice L
ØD
(Rete)
ØE
(Bruciatore)
3970152 433 Rp 1” 1/4 Rp 1” 1/4
3970183 523 Rp 1” 1/2 Rp 1” 1/2
3970184 523 Rp 2” Rp 2”
3970185 523 Rp 2” Rp 2”
Fig. 3
D10044
< 360 mbar 4 - 20 mbar
D10039
< 360 mbar 4 - 20 mbar

Table of Contents

Other manuals for Riello MB 412/2

Related product manuals