EasyManua.ls Logo

Roadmaster BrakeMaster 9000 - Proportioning Valve Installation: Connections; Mounting Valve Bracket to Frame; Grounding the Solenoid Valve; Connecting Brake Tees and Lines

Roadmaster BrakeMaster 9000
20 pages
Print Icon
To Next Page IconTo Next Page
To Next Page IconTo Next Page
To Previous Page IconTo Previous Page
To Previous Page IconTo Previous Page
Loading...
7
continued from preceding page
CAUTION
Check the brake fluid level often after the brake
line is disconnected, and while the proportioning
valve is being installed. Add brake fluid as neces-
sary to prevent the brake fluid level from falling low
enough to allow air bubbles into the master cylin-
der. If air is allowed into the brake system from the
master cylinder, all brakes, and any components
connected to the hydraulic brake system, must be
bled.
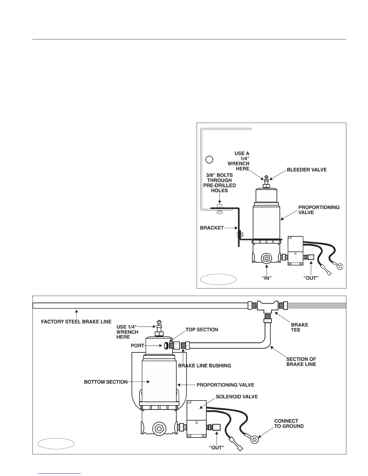
6. At the mounting location you have chosen, use the
two pre-drilled holes in the proportioning valve bracket
(Figure 15) as templates to mark and drill two 3/8" holes
through the frame.
Use the two supplied 3/8" bolts and nuts to attach
the proportioning valve to the frame, as shown in Figure
15.
7. Use a ring terminal to ground the solenoid valve
(Figure 16) by connecting one of the black wires from
the solenoid valve to any good chassis ground.
8. Determine the correct size of brake tee to use (both
¼" and 3/16" tees are included) and then connect it to
the two factory steel brake lines, as shown in Figure
16.
Note: if the brake tee is pointing up when the brake
lines are connected, less brake fluid will be lost.
9. Next, connect the brake tee (Figure 16) to the port
(Figure 16) on the proportioning valve, with one of the
provided sections of brake line (Figure 16). Two sizes of
brake line are provided for this purpose — ¼" and 3/16".
A. If the motorhome has ¼" brake lines — thread it
Install the proportioning valve
Figure 15
— END VIEW —
Figure 16
— SIDE VIEW —
into the fitting on the port on the proportioning valve.
B. If the motorhome has 3/16" brake lines — screw
the flair adaptor (Figure 17) onto the fitting on the port
on the proportioning valve. Then, attach the brake line
to the flair adaptor, as shown in Figure 17.
Note: the port can be rotated up to one full turn
counterclockwise for easier connection to the section
of brake line — hold the bottom section of the valve
(Figure 16) in place with adjustable pliers. With another
continued on next page

Related product manuals