EasyManua.ls Logo

Robland E300 - Allgemeine Abmessungen E-300; Lärm und Staub Emissionswerte

Default Icon
65 pages
Print Icon
To Next Page IconTo Next Page
To Next Page IconTo Next Page
To Previous Page IconTo Previous Page
To Previous Page IconTo Previous Page
Loading...
32 V0913 E 300 / E 2800
English Deutsch
Lärm und Staub Emissionswerte
Die nach ISO 7960 - Anhang D - ermittelten Arbeitsplatz bezogenen Lärm Emissionswerte
betragen an der Werkstückaufgabe der Maschine:
lärmemISSIonSwerte
Messungen gemäss Norm ISO 7960 gemäß Anhang D
Schalldruck
Ebene kontinuierlich
Akkustik-Druck
pro Index A
dB (A)
Schallleistung
dB (A) (MW)
Max.
Schalleistungspegel
per Index (C)
dB
Sägen 91 105 dB (A)(26,3) < 130
lärm und StAuB emISSIonSwerte
Der Höchstwert von 130 dB (A) wurde in keinem Fall überschritten. Die Maschine ist staubtechnisch
nach DIN 33 893 und BG-Grundsatz für die Prüfung der Staubemission (arbeitsplatzbezogene
Staubkonzentration) von Holzbearbeitungsmaschinen (GS-HO-05) gemessen worden.
Die ermittelten Messwerte zeigen, dass der TRK-Wert von 2mg/m3 sicher unterschritten wurde.
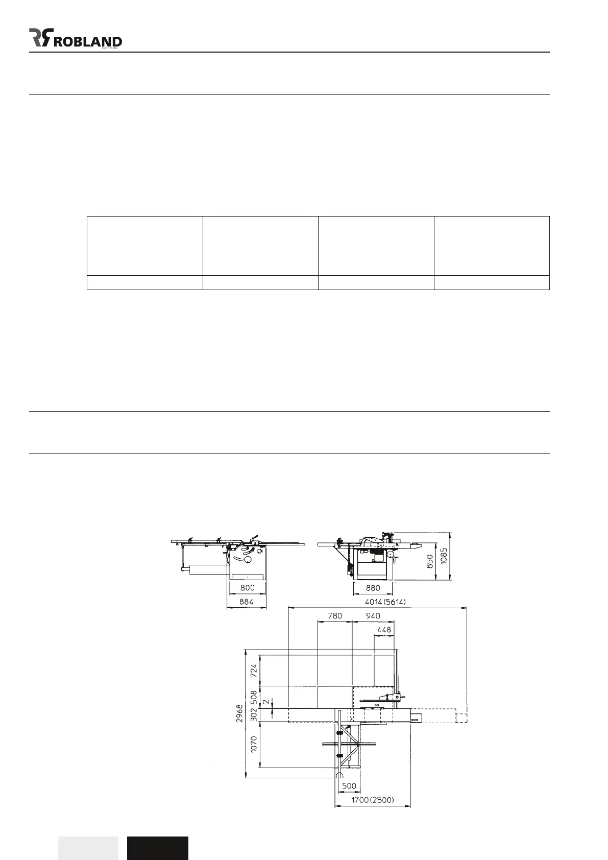
Allgemeine Abmessungen E-300

Table of Contents

Related product manuals