EasyManua.ls Logo

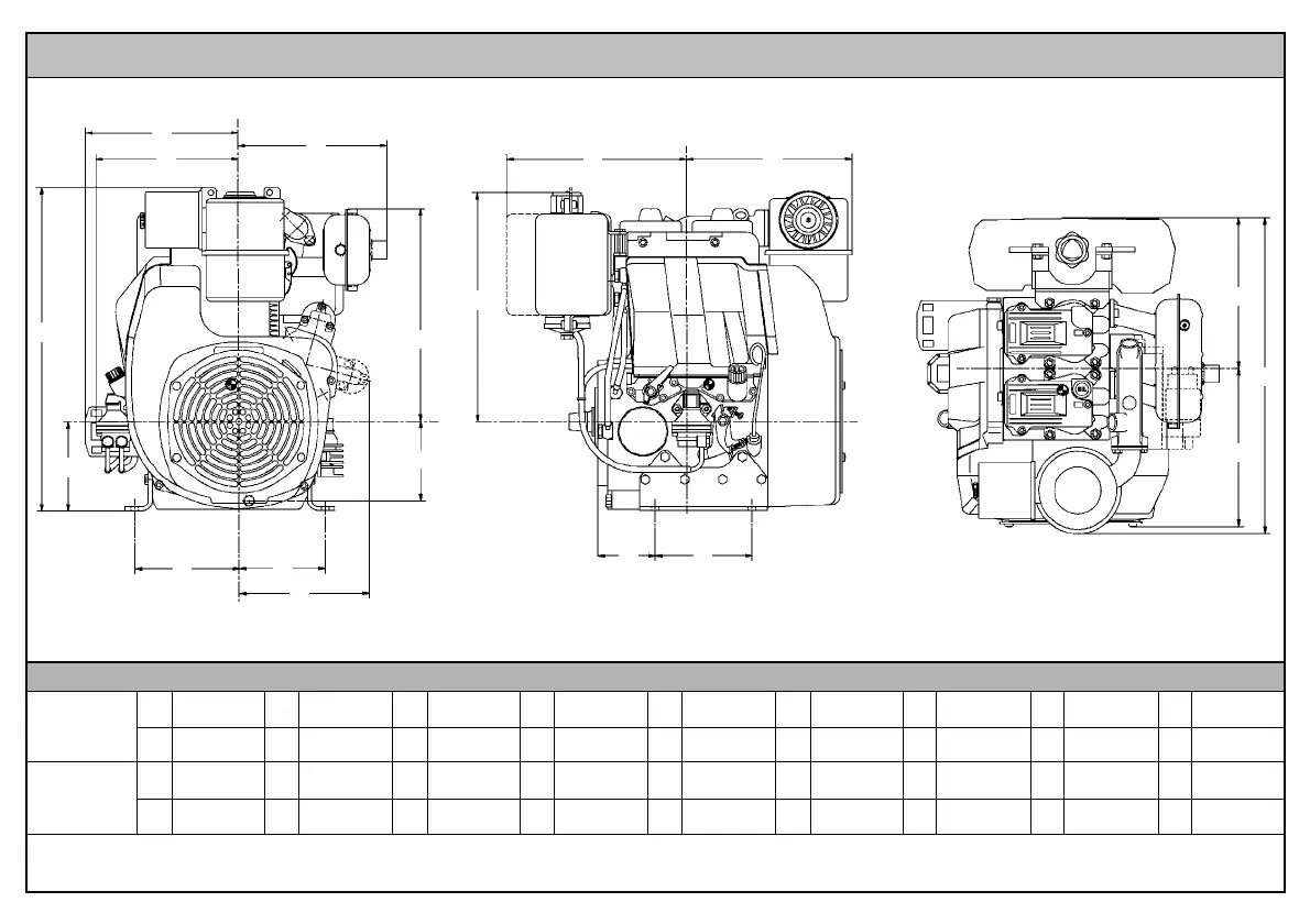
Ruggerini MD 190 E - DIMENSIONI DINGOMBRO - MESURES DENCOMBREMENT OVERALL DIMENSION - Einbaumaße DIMENSIONE EXTERIORES - DIMENÇÔES EXTERIORES

Default Icon
132 pages
Print Icon
To Next Page IconTo Next Page
To Next Page IconTo Next Page
To Previous Page IconTo Previous Page
To Previous Page IconTo Previous Page
Loading...
49
DIMENSIONI D’INGOMBRO - MESURES D’ENCOMBREMENT - OVERALL DIMENSION
EINBAUMAßE - DIMENSIONE EXTERIORES - DIMENÇÕES EXTERIORES
A
B
C
D
229
137
E
F
479.5
307.5
I
J
-
209
G
H
M
N
122
160
275
254
132
200
225
335.5
DIMENSIONI (mm) - MESURES (mm) - DIMENSION (mm) - EINBAUMAßE (mm) - DIMENSIONE (mm) - DIMEN0ÇÕES (mm)
K
L
O
P
87.5
148
A
B
C
D
229
137
E
F
498
326
I
J
235
-
G
H
M
N
122
160
275
254
132
200
243
354
K
L
O
P
87.5
148
A
B
C
D
E
F
G
H
I
J
K
L
M N
O P
Q
R
231
485
O
P
231
485
Q
R
MD 150
MD 190

Table of Contents

Related product manuals