EasyManua.ls Logo

Runva EWD8000 - Winch Assembly Drawing(Ewd12000

Runva EWD8000
24 pages
Print Icon
To Next Page IconTo Next Page
To Next Page IconTo Next Page
To Previous Page IconTo Previous Page
To Previous Page IconTo Previous Page
Loading...
20
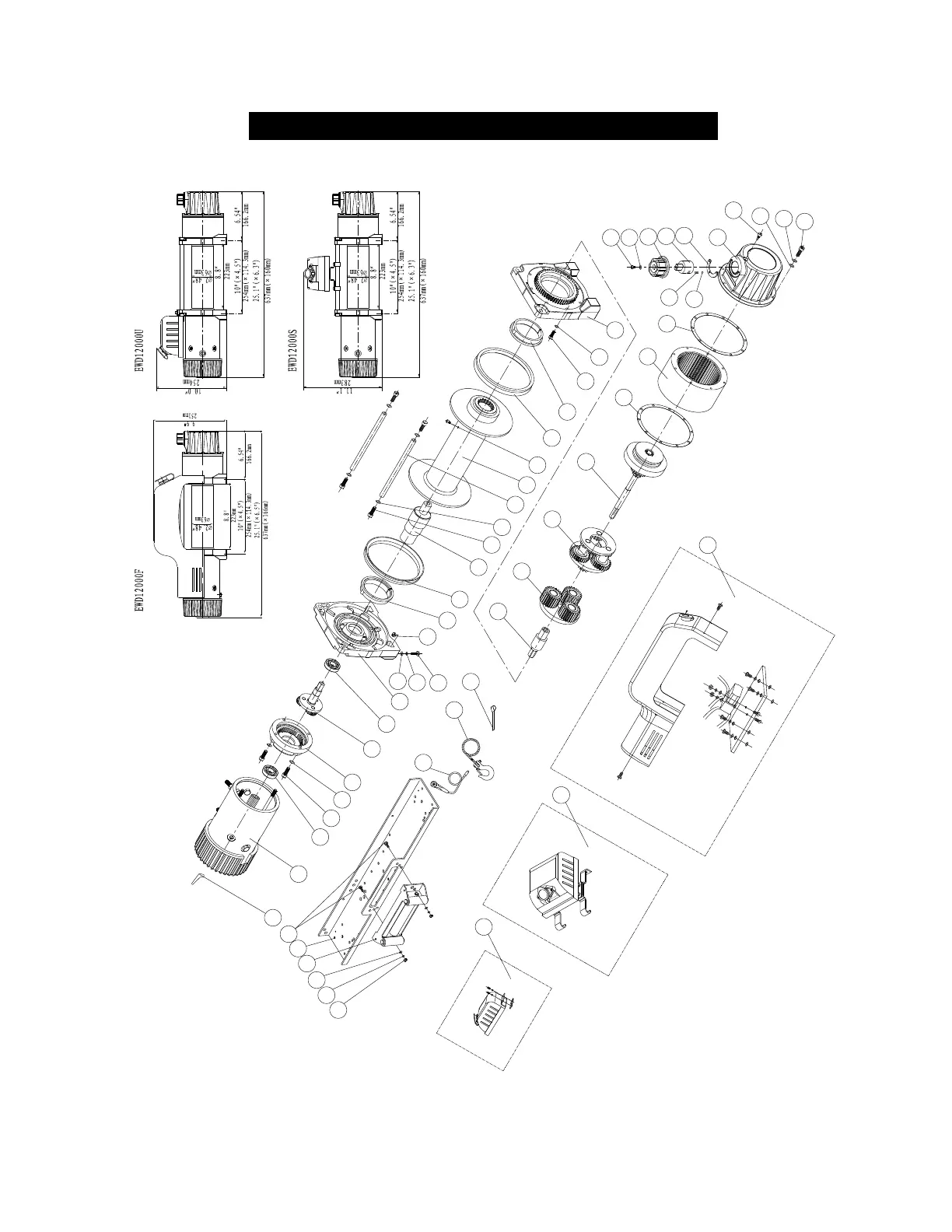
WINCH ASSEMBLY DRAWINGEWD12000
3
4
2
5
6
7
9
10
11
12
8
13
14
16
15
19
17
18
15
14
20
21
22
23
24
25
26
27
28
29
34
29
30
23
35
36
37
10
11
12
40
41
42
43
44
38
1
39
23
33
22
45
46
47
48
31
32

Related product manuals