EasyManua.ls Logo

Russound CA4 - System Configuration; Controller;Keypad Configuration

Russound CA4
32 pages
Print Icon
To Next Page IconTo Next Page
To Next Page IconTo Next Page
To Previous Page IconTo Previous Page
To Previous Page IconTo Previous Page
Loading...
11
Russound CA4 System Installation Manual
SYSTEm CONFIGURATION
/
/
/
/
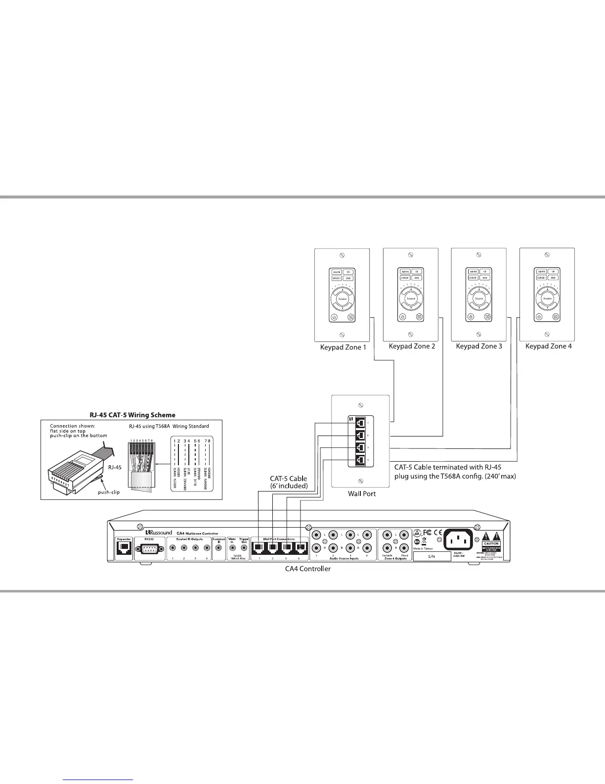
Keypad Conguration
Controller / Keypad Conguration
The CA4 Wall Port jacks are located on the rear of the controller. These RJ-45
ports must be connected to the corresponding jacks on the wall port. Each
keypad is then connected to the wall port.
All CAT-5 connections are made with RJ-45 connectors using the T568A
Wiring Standard conguration. For a clean installation use the included RJ-45
CAT-5 pass-through cables to connect from the controller wall port jack to
the corresponding one on the CA4-WP. Using the same wiring conguration
to terminate the ends, route a CAT-5 cable from the wall port to each of the
keypads. Cables from the controller to the wall port should not exceed 6 feet
(2m).
The maximum recommended CAT-5 cable length is 240 feet (73.2m) between
the wall port and the keypad.
Note: All four CAT-5 cables must be connected between the controller and
wall port for proper operation.
Caution: Cables between the wall port and the controller must match
numerically (#1 on Controller to #1 on Wall Port, etc.). Swapping cables to
dierent ports can damage the equipment.

Related product manuals